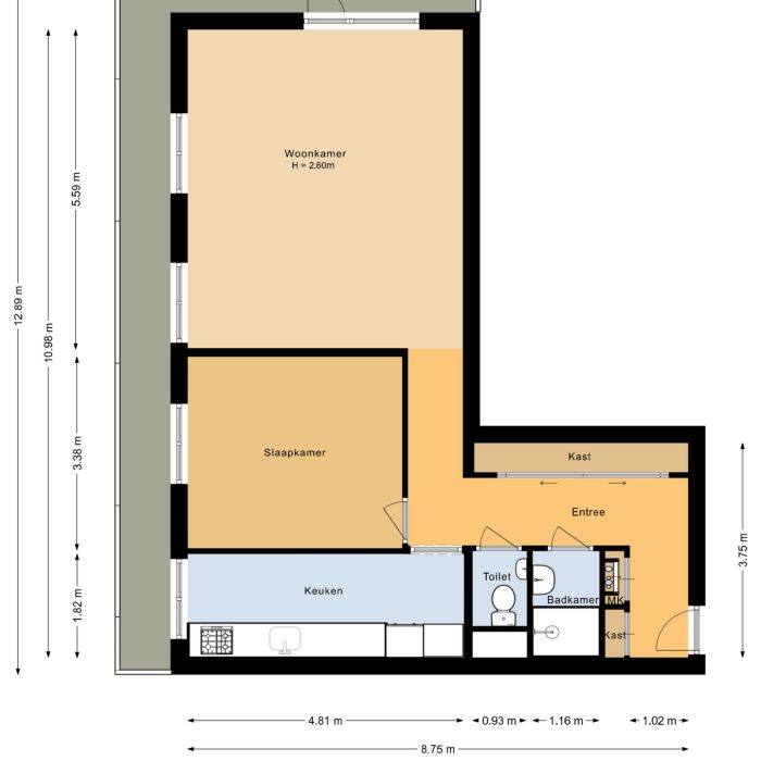
Dit is de ideale plek om je wooncarrière af te trappen! Wij zijn op zoek naar de gelukkige nieuwe bewoner(s) van een instapklaar hoekappartement in het complex De Wilgenhoek. Het ligt op de vijfde verdieping en heeft een balkon dat zich als een lint om het appartement wikkelt. Wel zo makkelijk als je de ramen wil lappen. En het uitzicht? Dat reikt over Purmerend én de uitgestrekte Beemsterpolder, zo heb je het beste van twee werelden. Dit verzorgde appartementencomplex ligt in de fijne, groene wijk Overwhere. Op loopafstand vind je het Wormerplein met een Vomar en diverse speciaalzaken. De bruisende binnenstad van Purmerend ligt om de hoek, met volop horeca, winkels en gezelligheid. En wil je de stad uit? Dan zit je met de bus (halte voor de deur!) binnen 30 minuten in hartje Amsterdam. Met de auto ben je er zelfs al in 20 minuten via de A7 of de Jaagweg. Een slimme indeling, vol licht en ruimte Via de centrale entree kom je in de hal van het complex. De lift brengt je moeiteloos naar de vijfde verdieping. Je stapt het appartement binnen via een ruime entree met handige inbouwkast en toegang tot het separate toilet en de badkamer met douche en wastafel. De moderne keuken is recent vernieuwd en heeft een speelse, halfopen opstelling. Hier kook je met plezier terwijl je kunt genieten van het uitzicht op de Beemster. Vanuit de hal loop je door naar de lichte woonkamer met grote raampartijen en toegang tot het balkon. Wat een fijne plek om te ontspannen! De slaapkamer grenst direct aan de woonkamer, waardoor je ‘s ochtends wakker wordt met een glimlach en uitzicht. Ook hier is het licht en rustig. Buiten chillen met uitzicht Het balkon loopt om de woonkamer en slaapkamer heen en biedt dus op elk moment van de dag wel een zonnig plekje. Begin je dag met koffie in de ochtendzon of sluit je dag af met een wijntje en uitzicht op de ondergaande zon boven de Beemster. Hier woon je letterlijk boven het alledaagse. Het appartement wordt verwarmd middels een collectieve blokverwarming, het voorschot zit in de maandelijkse VvE bijdrage. Totaal betaal je maandelijks € 275,74 waarvan € 74 het voorschot is voor de blokverwarming. Een leuk weetje; het appartement heeft een gemeenschappelijke ruimte op de begane grond. Hier kun je lekker biljarten onder andere. Bijzonderheden: - Instapklaar hoekappartement op de vijfde verdieping - Verzorgd complex met lift - VvE bijdrage € 275,74 (waarvan € 74 aan stookkosten) - Geheel voorzien van dubbele beglazing - Aparte berging op de begane grond, voorzien van elektra - Gezamenlijke fietsenstalling Ben je toe aan een frisse start in een appartement met uitzicht én gemak? Dan is dit je kans. Plan snel een bezichtiging met ons in en ervaar zelf hoe dit huis voelt. Kijk je alvast even mee in de woningvideo? Dit is de ideale plek om je wooncarrière af te trappen!

Kom in contact met Menno van Diepen
Status
Verkocht
Vraagprijs
€ 285.000,-
Woonoppervlakte
67 m2
Perceeloppervlakte
–
Externe bergruimte
5 m2
Gebouwgebonden buitenruimte
20 m2
Overige inpandige ruimte
0 m2
Inhoud
221 m3
Aantal kamers
2
Aantal slaapkamers
1
Vraagprijs: € 285.000,-
1 slaapkamers
Energielabel D
67 m2 woonoppervlak
– perceeloppervlak

Kom in contact met Menno van Diepen
[toon_buurt_intro]
Lorem ipsum dolor sit amet, consetetur sadipscing elitr, sed diam nonumy eirmod tempor invidunt ut labore et dolore magna aliquyam erat, sed diam voluptua. At vero eos et accusam et justo duo dolores et ea rebum. Stet clita kasd gubergren, no sea takimata sanctus est Lorem ipsum dolor sit amet. Lorem ipsum




























































Dit is de ideale plek om je wooncarrière af te trappen! Wij zijn op zoek naar de gelukkige nieuwe bewoner(s) van een instapklaar hoekappartement in het complex De Wilgenhoek. Het ligt op de vijfde verdieping en heeft een balkon dat zich als een lint om het appartement wikkelt. Wel zo makkelijk als je de ramen wil lappen. En het uitzicht? Dat reikt over Purmerend én de uitgestrekte Beemsterpolder, zo heb je het beste van twee werelden. Dit verzorgde appartementencomplex ligt in de fijne, groene wijk Overwhere. Op loopafstand vind je het Wormerplein met een Vomar en diverse speciaalzaken. De bruisende binnenstad van Purmerend ligt om de hoek, met volop horeca, winkels en gezelligheid. En wil je de stad uit? Dan zit je met de bus (halte voor de deur!) binnen 30 minuten in hartje Amsterdam. Met de auto ben je er zelfs al in 20 minuten via de A7 of de Jaagweg. Een slimme indeling, vol licht en ruimte Via de centrale entree kom je in de hal van het complex. De lift brengt je moeiteloos naar de vijfde verdieping. Je stapt het appartement binnen via een ruime entree met handige inbouwkast en toegang tot het separate toilet en de badkamer met douche en wastafel. De moderne keuken is recent vernieuwd en heeft een speelse, halfopen opstelling. Hier kook je met plezier terwijl je kunt genieten van het uitzicht op de Beemster. Vanuit de hal loop je door naar de lichte woonkamer met grote raampartijen en toegang tot het balkon. Wat een fijne plek om te ontspannen! De slaapkamer grenst direct aan de woonkamer, waardoor je ‘s ochtends wakker wordt met een glimlach en uitzicht. Ook hier is het licht en rustig. Buiten chillen met uitzicht Het balkon loopt om de woonkamer en slaapkamer heen en biedt dus op elk moment van de dag wel een zonnig plekje. Begin je dag met koffie in de ochtendzon of sluit je dag af met een wijntje en uitzicht op de ondergaande zon boven de Beemster. Hier woon je letterlijk boven het alledaagse. Het appartement wordt verwarmd middels een collectieve blokverwarming, het voorschot zit in de maandelijkse VvE bijdrage. Totaal betaal je maandelijks € 275,74 waarvan € 74 het voorschot is voor de blokverwarming. Een leuk weetje; het appartement heeft een gemeenschappelijke ruimte op de begane grond. Hier kun je lekker biljarten onder andere. Bijzonderheden: – Instapklaar hoekappartement op de vijfde verdieping – Verzorgd complex met lift – VvE bijdrage € 275,74 (waarvan € 74 aan stookkosten) – Geheel voorzien van dubbele beglazing – Aparte berging op de begane grond, voorzien van elektra – Gezamenlijke fietsenstalling Ben je toe aan een frisse start in een appartement met uitzicht én gemak? Dan is dit je kans. Plan snel een bezichtiging met ons in en ervaar zelf hoe dit huis voelt. Kijk je alvast even mee in de woningvideo? Dit is de ideale plek om je wooncarrière af te trappen!
Dit is de ideale plek om je wooncarrière af te trappen! Wij zijn op zoek naar de gelukkige nieuwe bewoner(s) van een instapklaar hoekappartement in het complex De Wilgenhoek. Het ligt op de vijfde verdieping en heeft een balkon dat zich als een lint om het appartement wikkelt. Wel zo makkelijk als je de ramen wil lappen. En het uitzicht? Dat reikt over Purmerend én de uitgestrekte Beemsterpolder, zo heb je het beste van twee werelden. Dit verzorgde appartementencomplex ligt in de fijne, groene wijk Overwhere. Op loopafstand vind je het Wormerplein met een Vomar en diverse speciaalzaken. De bruisende binnenstad van Purmerend ligt om de hoek, met volop horeca, winkels en gezelligheid. En wil je de stad uit? Dan zit je met de bus (halte voor de deur!) binnen 30 minuten in hartje Amsterdam. Met de auto ben je er zelfs al in 20 minuten via de A7 of de Jaagweg. Een slimme indeling, vol licht en ruimte Via de centrale entree kom je in de hal van het complex. De lift brengt je moeiteloos naar de vijfde verdieping. Je stapt het appartement binnen via een ruime entree met handige inbouwkast en toegang tot het separate toilet en de badkamer met douche en wastafel. De moderne keuken is recent vernieuwd en heeft een speelse, halfopen opstelling. Hier kook je met plezier terwijl je kunt genieten van het uitzicht op de Beemster. Vanuit de hal loop je door naar de lichte woonkamer met grote raampartijen en toegang tot het balkon. Wat een fijne plek om te ontspannen! De slaapkamer grenst direct aan de woonkamer, waardoor je ‘s ochtends wakker wordt met een glimlach en uitzicht. Ook hier is het licht en rustig. Buiten chillen met uitzicht Het balkon loopt om de woonkamer en slaapkamer heen en biedt dus op elk moment van de dag wel een zonnig plekje. Begin je dag met koffie in de ochtendzon of sluit je dag af met een wijntje en uitzicht op de ondergaande zon boven de Beemster. Hier woon je letterlijk boven het alledaagse. Het appartement wordt verwarmd middels een collectieve blokverwarming, het voorschot zit in de maandelijkse VvE bijdrage. Totaal betaal je maandelijks € 275,74 waarvan € 74 het voorschot is voor de blokverwarming. Een leuk weetje; het appartement heeft een gemeenschappelijke ruimte op de begane grond. Hier kun je lekker biljarten onder andere. Bijzonderheden: – Instapklaar hoekappartement op de vijfde verdieping – Verzorgd complex met lift – VvE bijdrage € 275,74 (waarvan € 74 aan stookkosten) – Geheel voorzien van dubbele beglazing – Aparte berging op de begane grond, voorzien van elektra – Gezamenlijke fietsenstalling Ben je toe aan een frisse start in een appartement met uitzicht én gemak? Dan is dit je kans. Plan snel een bezichtiging met ons in en ervaar zelf hoe dit huis voelt. Kijk je alvast even mee in de woningvideo? Dit is de ideale plek om je wooncarrière af te trappen!