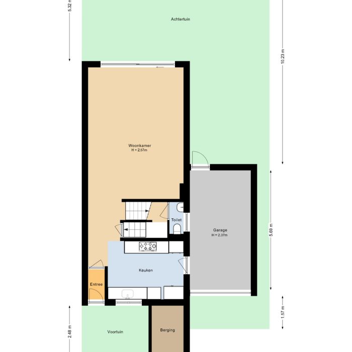
Heerlijk wonen in Amsterdam-West met een tuin op het zuiden. Welkom in deze lichte 4-kamer hoekwoning met uitbouw én een aangebouwde garage. Met een tuin op het zuiden en volop privacy woon je in een "on-Amsterdamse" oase van groen. Daarnaast is de erfpacht eeuwigdurend afgekocht, wat betekent dat je in de toekomst geen bijkomende kosten meer hebt. Ook de stookkosten zijn lekker laag want het is volledig geïsoleerd en op het dak liggen 14 zonnepanelen. Ook is het onderhoudsarm want het heeft rondom kunststof kozijnen. Deze lichte eengezinswoning ligt in de wijk Slotermeer Noord-Oost (Amsterdam-West) en biedt precies wat je nodig hebt: een ruime woonkamer met uitbouw richting de zonnige tuin, drie slaapkamers én een direct met het huis verbonden garage. Dus de garage zou je nog als extra woonruimte bij het huis kunnen trekken. Groene, rustige buurt met alles binnen handbereik De wijk voelt dorps aan, maar dan midden in de stad. Je loopt zo naar het OV, winkels, supermarkten, scholen, en speeltuinen. Sterker nog, achter het huis is een groot plein met een speeltuin en veel groen. Winkelcentrum Plein ’40–’45 met markt ligt om de hoek en naar Station Sloterdijk wandel je in een paar minuten. Op de fiets sta je binnen 15 minuten in het centrum. Ideaal voor gezinnen én stellen met plannen In de buurt vind je een fijne mix van jonge gezinnen, stellen en ouderen. De laatste jaren is de wijk flink vernieuwd en dat merk je: het is levendig, populair en er zijn meer koopwoningen. Alles wat je dagelijks nodig hebt- van BSO’s tot recreatie - is dichtbij. Voor stellen is het een fijne plek om te groeien; voor gezinnen biedt de woning genoeg ruimte zodat iedereen zijn eigen plekje heeft. In je vrije tijd kun je heerlijk terecht bij de Sloterplas, het Sloterpark of het Sloterparkbad. Laten we snel binnen gaan kijken! Begane grond: Via de entree aan de voorzijde kom je binnen in de hal, waar je ruimte hebt voor jassen en schoenen. Doe je schoenen maar uit want op de begane grond ligt vloerverwarming. Vanuit hier loop je direct de keuken in aan de voorkant van het huis. De keuken biedt voldoende werkruimte én is uitgerust met diverse inbouwapparatuur: een 5-pits kookplaat, oven, magnetron, vaatwasser en afzuigkap. Een praktische en complete keuken dus. Aan de achterzijde van het huis ligt de uitgebouwde woonkamer. Een heerlijke, brede leefruimte met grote schuifpui naar de zonnige tuin op het zuiden. Door het vele daglicht en de open verbinding met buiten voelt het hier meteen ruim en ontspannen. De kelder is een praktische bonusruimte: koel, ruim en voorzien van aansluitingen voor de wasmachine en droger. Ideaal als wasruimte én extra opslag. Wanneer je de trap op loopt dan is er na enkele treden een bordes met toegang tot het moderne toilet. Eerste verdieping: Vanuit de hal zijn de drie slaapkamers bereikbaar. De badkamer is voorzien van een douche, wastafel en een tweede toilet. De tuin is echt een heerlijke plek om te vertoeven. Je hebt hier volop zon en het perceel is extra breed dus er is ruimte zat voor een lekker loungebank, buitenkeuken en/of buitentafel. Aan de voorzijde van de woning vind je nog een aparte houten berging. Alles nog even op een rijtje: - Woonoppervlakte ca. 93 m² (NEN 2580 meetrapport aanwezig); - Aangebouwde garage/berging van ca. 17 m². Bereikbaar via keuken en voor- en achtertuin; - Bouwjaar 1955; - Zonnige achtertuin op het zuiden van 67 m². - 14 zonnepanelen; - Vloerverwarming op de begane grond; - Volledig geïsoleerd; - Energielabel B; - Erfpacht eeuwigdurend afgekocht; - Dicht bij buurtwinkels aan Plein '40-'45 en Bos en Lommerplein; - Recreatiegebieden Sloterpark, Sloterplas en De Bretten zijn op korte afstand bereikbaar; - Oplevering in overleg. Kortom: wonen in Amsterdam-West betekent genieten van rust en groen, terwijl alle faciliteiten binnen handbereik zijn. Wil je het huis nog beter leren kennen? Bekijk dan snel de video met onze makelaar Mariska en laat je inspireren. Wil je komen kijken? Neem gerust contact met ons op voor een uitgebreide bezichtiging.

Kom in contact met Richard Herlé-Ruys
Status
Verkocht
Vraagprijs
€ 650.000,-
Woonoppervlakte
93 m2
Perceeloppervlakte
170 m2
Externe bergruimte
0 m2
Gebouwgebonden buitenruimte
0 m2
Overige inpandige ruimte
24 m2
Inhoud
424 m3
Aantal kamers
4
Aantal slaapkamers
3
Vraagprijs: € 650.000,-
3 slaapkamers
Energielabel B
93 m2 woonoppervlak
170 m2 perceeloppervlak

Kom in contact met Richard Herlé-Ruys
[toon_buurt_intro]
Lorem ipsum dolor sit amet, consetetur sadipscing elitr, sed diam nonumy eirmod tempor invidunt ut labore et dolore magna aliquyam erat, sed diam voluptua. At vero eos et accusam et justo duo dolores et ea rebum. Stet clita kasd gubergren, no sea takimata sanctus est Lorem ipsum dolor sit amet. Lorem ipsum






























































Heerlijk wonen in Amsterdam-West met een tuin op het zuiden. Welkom in deze lichte 4-kamer hoekwoning met uitbouw én een aangebouwde garage. Met een tuin op het zuiden en volop privacy woon je in een “on-Amsterdamse” oase van groen. Daarnaast is de erfpacht eeuwigdurend afgekocht, wat betekent dat je in de toekomst geen bijkomende kosten meer hebt. Ook de stookkosten zijn lekker laag want het is volledig geïsoleerd en op het dak liggen 14 zonnepanelen. Ook is het onderhoudsarm want het heeft rondom kunststof kozijnen. Deze lichte eengezinswoning ligt in de wijk Slotermeer Noord-Oost (Amsterdam-West) en biedt precies wat je nodig hebt: een ruime woonkamer met uitbouw richting de zonnige tuin, drie slaapkamers én een direct met het huis verbonden garage. Dus de garage zou je nog als extra woonruimte bij het huis kunnen trekken. Groene, rustige buurt met alles binnen handbereik De wijk voelt dorps aan, maar dan midden in de stad. Je loopt zo naar het OV, winkels, supermarkten, scholen, en speeltuinen. Sterker nog, achter het huis is een groot plein met een speeltuin en veel groen. Winkelcentrum Plein ’40–’45 met markt ligt om de hoek en naar Station Sloterdijk wandel je in een paar minuten. Op de fiets sta je binnen 15 minuten in het centrum. Ideaal voor gezinnen én stellen met plannen In de buurt vind je een fijne mix van jonge gezinnen, stellen en ouderen. De laatste jaren is de wijk flink vernieuwd en dat merk je: het is levendig, populair en er zijn meer koopwoningen. Alles wat je dagelijks nodig hebt- van BSO’s tot recreatie – is dichtbij. Voor stellen is het een fijne plek om te groeien; voor gezinnen biedt de woning genoeg ruimte zodat iedereen zijn eigen plekje heeft. In je vrije tijd kun je heerlijk terecht bij de Sloterplas, het Sloterpark of het Sloterparkbad. Laten we snel binnen gaan kijken! Begane grond: Via de entree aan de voorzijde kom je binnen in de hal, waar je ruimte hebt voor jassen en schoenen. Doe je schoenen maar uit want op de begane grond ligt vloerverwarming. Vanuit hier loop je direct de keuken in aan de voorkant van het huis. De keuken biedt voldoende werkruimte én is uitgerust met diverse inbouwapparatuur: een 5-pits kookplaat, oven, magnetron, vaatwasser en afzuigkap. Een praktische en complete keuken dus. Aan de achterzijde van het huis ligt de uitgebouwde woonkamer. Een heerlijke, brede leefruimte met grote schuifpui naar de zonnige tuin op het zuiden. Door het vele daglicht en de open verbinding met buiten voelt het hier meteen ruim en ontspannen. De kelder is een praktische bonusruimte: koel, ruim en voorzien van aansluitingen voor de wasmachine en droger. Ideaal als wasruimte én extra opslag. Wanneer je de trap op loopt dan is er na enkele treden een bordes met toegang tot het moderne toilet. Eerste verdieping: Vanuit de hal zijn de drie slaapkamers bereikbaar. De badkamer is voorzien van een douche, wastafel en een tweede toilet. De tuin is echt een heerlijke plek om te vertoeven. Je hebt hier volop zon en het perceel is extra breed dus er is ruimte zat voor een lekker loungebank, buitenkeuken en/of buitentafel. Aan de voorzijde van de woning vind je nog een aparte houten berging. Alles nog even op een rijtje: – Woonoppervlakte ca. 93 m² (NEN 2580 meetrapport aanwezig); – Aangebouwde garage/berging van ca. 17 m². Bereikbaar via keuken en voor- en achtertuin; – Bouwjaar 1955; – Zonnige achtertuin op het zuiden van 67 m². – 14 zonnepanelen; – Vloerverwarming op de begane grond; – Volledig geïsoleerd; – Energielabel B; – Erfpacht eeuwigdurend afgekocht; – Dicht bij buurtwinkels aan Plein ’40-’45 en Bos en Lommerplein; – Recreatiegebieden Sloterpark, Sloterplas en De Bretten zijn op korte afstand bereikbaar; – Oplevering in overleg. Kortom: wonen in Amsterdam-West betekent genieten van rust en groen, terwijl alle faciliteiten binnen handbereik zijn. Wil je het huis nog beter leren kennen? Bekijk dan snel de video met onze makelaar Mariska en laat je inspireren. Wil je komen kijken? Neem gerust contact met ons op voor een uitgebreide bezichtiging.
Heerlijk wonen in Amsterdam-West met een tuin op het zuiden. Welkom in deze lichte 4-kamer hoekwoning met uitbouw én een aangebouwde garage. Met een tuin op het zuiden en volop privacy woon je in een “on-Amsterdamse” oase van groen. Daarnaast is de erfpacht eeuwigdurend afgekocht, wat betekent dat je in de toekomst geen bijkomende kosten meer hebt. Ook de stookkosten zijn lekker laag want het is volledig geïsoleerd en op het dak liggen 14 zonnepanelen. Ook is het onderhoudsarm want het heeft rondom kunststof kozijnen. Deze lichte eengezinswoning ligt in de wijk Slotermeer Noord-Oost (Amsterdam-West) en biedt precies wat je nodig hebt: een ruime woonkamer met uitbouw richting de zonnige tuin, drie slaapkamers én een direct met het huis verbonden garage. Dus de garage zou je nog als extra woonruimte bij het huis kunnen trekken. Groene, rustige buurt met alles binnen handbereik De wijk voelt dorps aan, maar dan midden in de stad. Je loopt zo naar het OV, winkels, supermarkten, scholen, en speeltuinen. Sterker nog, achter het huis is een groot plein met een speeltuin en veel groen. Winkelcentrum Plein ’40–’45 met markt ligt om de hoek en naar Station Sloterdijk wandel je in een paar minuten. Op de fiets sta je binnen 15 minuten in het centrum. Ideaal voor gezinnen én stellen met plannen In de buurt vind je een fijne mix van jonge gezinnen, stellen en ouderen. De laatste jaren is de wijk flink vernieuwd en dat merk je: het is levendig, populair en er zijn meer koopwoningen. Alles wat je dagelijks nodig hebt- van BSO’s tot recreatie – is dichtbij. Voor stellen is het een fijne plek om te groeien; voor gezinnen biedt de woning genoeg ruimte zodat iedereen zijn eigen plekje heeft. In je vrije tijd kun je heerlijk terecht bij de Sloterplas, het Sloterpark of het Sloterparkbad. Laten we snel binnen gaan kijken! Begane grond: Via de entree aan de voorzijde kom je binnen in de hal, waar je ruimte hebt voor jassen en schoenen. Doe je schoenen maar uit want op de begane grond ligt vloerverwarming. Vanuit hier loop je direct de keuken in aan de voorkant van het huis. De keuken biedt voldoende werkruimte én is uitgerust met diverse inbouwapparatuur: een 5-pits kookplaat, oven, magnetron, vaatwasser en afzuigkap. Een praktische en complete keuken dus. Aan de achterzijde van het huis ligt de uitgebouwde woonkamer. Een heerlijke, brede leefruimte met grote schuifpui naar de zonnige tuin op het zuiden. Door het vele daglicht en de open verbinding met buiten voelt het hier meteen ruim en ontspannen. De kelder is een praktische bonusruimte: koel, ruim en voorzien van aansluitingen voor de wasmachine en droger. Ideaal als wasruimte én extra opslag. Wanneer je de trap op loopt dan is er na enkele treden een bordes met toegang tot het moderne toilet. Eerste verdieping: Vanuit de hal zijn de drie slaapkamers bereikbaar. De badkamer is voorzien van een douche, wastafel en een tweede toilet. De tuin is echt een heerlijke plek om te vertoeven. Je hebt hier volop zon en het perceel is extra breed dus er is ruimte zat voor een lekker loungebank, buitenkeuken en/of buitentafel. Aan de voorzijde van de woning vind je nog een aparte houten berging. Alles nog even op een rijtje: – Woonoppervlakte ca. 93 m² (NEN 2580 meetrapport aanwezig); – Aangebouwde garage/berging van ca. 17 m². Bereikbaar via keuken en voor- en achtertuin; – Bouwjaar 1955; – Zonnige achtertuin op het zuiden van 67 m². – 14 zonnepanelen; – Vloerverwarming op de begane grond; – Volledig geïsoleerd; – Energielabel B; – Erfpacht eeuwigdurend afgekocht; – Dicht bij buurtwinkels aan Plein ’40-’45 en Bos en Lommerplein; – Recreatiegebieden Sloterpark, Sloterplas en De Bretten zijn op korte afstand bereikbaar; – Oplevering in overleg. Kortom: wonen in Amsterdam-West betekent genieten van rust en groen, terwijl alle faciliteiten binnen handbereik zijn. Wil je het huis nog beter leren kennen? Bekijk dan snel de video met onze makelaar Mariska en laat je inspireren. Wil je komen kijken? Neem gerust contact met ons op voor een uitgebreide bezichtiging.