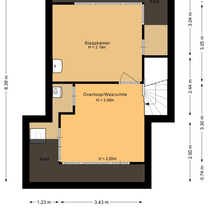
40 jaar (of meer) woongeluk! Verkopers hebben ruim 40 jaar met veel plezier gewoond aan De Krommert 77 in Oosthuizen. Wij snappen wel waarom! Je woont direct aan het grote park en je hebt aan beide kanten vrij uitzicht. Tel daarbij op een ruime garage en een zonnige tuin op het zuidwesten. Op de begane grond en eerste verdieping heeft het kunststof kozijnen met HR++ beglazing, en je snapt: dit is zo’n huis waar je niet meer weggaat. Welkom in Oosthuizen, een dorp waar ruimte en rust samenkomen. Aan de voorzijde kijk je uit over het uitgestrekte park, waar je elke dag een frisse neus haalt. Achter ligt het gezellige Kraaientuintje, het speeltuintje voor de kleintjes — een plek waar buren elkaar groeten en kinderen veilig buiten spelen. De basisschool ligt op loopafstand en is via rustige paadjes te bereiken, zonder drukke wegen over te steken. Hier woon je met een gerust hart. Stap binnen via de nette entree met modern toilet en meterkast. De keuken ligt aan de voorzijde en die is handig ingedeeld en klaar voor gebruik. De royale woonkamer is heerlijk licht door de brede raampartij. Vanuit je woonkamer heb je zicht op je zonnige tuin en zie je alleen maar groen van de bomen. Op de eerste verdieping vind je drie ruime slaapkamers. De badkamer is compleet, met een ligbad, wastafel en tweede toilet. Alles netjes en verzorgd. De tweede verdieping verrast je met nóg een ruime slaapkamer met dakkapel en een riante overloop met aansluiting voor de wasmachine. Ook op de overloop is een dakkapel geplaatst waardoor je deze perfect als extra slaap- of werkkamer kunt gebruiken. Het beschikt dus over twee dakkapellen maar eerlijk is eerlijk, deze zijn in matige staat en dienen aangepakt te worden. Met name de boeidelen zijn slecht. Extra bergruimte vind je in de twee knieschotten aan weerszijden. Ideaal voor seizoensspullen of koffers. Buiten is het minstens zo fijn. De tuin ligt perfect op het zuidwesten, dus zon liefhebbers kunnen hier hun hart ophalen. En dankzij de vrije ligging aan de achterzijde geniet je ook hier van volop privacy. Achterin vind je de extra brede garage. Deze is perfect voor de hobbyist, klusser of voor wie net wat meer opbergruimte nodig heeft. Nog even alles op een rijtje: * Fantastische ligging aan het park van Oosthuizen * Vrij uitzicht aan voor- én achterzijde * Zonnige tuin op het zuidwesten * Vier slaapkamers en een ruime overloop op de 2e verdieping * Kunststof kozijnen met HR++ beglazing (bg en 1e verdieping) * Extra brede garage * Kindvriendelijke buurt met speeltuin en basisschool om de hoek * Energielabel C Woon je hier straks net zo lang en gelukkig als de vorige bewoners?! Of zie je vooral kansen om het huis helemaal naar jouw smaak te maken?! Eén ding is zeker: met deze ligging wil je hier nooit meer weg dus maak snel een afspraak voor een uitgebreide rondleiding.
House for Sale, na 40 fijne en veilige jaren.
Waar is de tijd gebleven. Hier zijn onze kinderen geboren en opgegroeid, in een fijne wijk met een speeltuin en park naast de deur. De lagere school in het dorp is ideaal. Inmiddels zijn ze alle 3 afgestudeerd en uitgevlogen.
Zomers heerlijk buiten zitten in het zonnetje, is het in de achtertuin te warm, dan afkoelen in de voortuin met schuin uitzicht op het park, ideaal!
Altijd parkeerplek in de grote garage, waar naast de (elektrische) auto, ruimte is voor knutselwerken aan een stevige werkbank.
Wij verlaten Noord Holland om in de gemeente Twenterand een nieuwe fase in ons leven te starten.

Kom in contact met Richard Herlé-Ruys
Status
Verkocht
Vraagprijs
€ 400.000,-
Woonoppervlakte
116 m2
Perceeloppervlakte
133 m2
Externe bergruimte
22 m2
Gebouwgebonden buitenruimte
0 m2
Overige inpandige ruimte
0 m2
Inhoud
415 m3
Aantal kamers
6
Aantal slaapkamers
5
Vraagprijs: € 400.000,-
5 slaapkamers
Energielabel C
116 m2 woonoppervlak
133 m2 perceeloppervlak

Kom in contact met Richard Herlé-Ruys
[toon_buurt_intro]
Lorem ipsum dolor sit amet, consetetur sadipscing elitr, sed diam nonumy eirmod tempor invidunt ut labore et dolore magna aliquyam erat, sed diam voluptua. At vero eos et accusam et justo duo dolores et ea rebum. Stet clita kasd gubergren, no sea takimata sanctus est Lorem ipsum dolor sit amet. Lorem ipsum


























































40 jaar (of meer) woongeluk! Verkopers hebben ruim 40 jaar met veel plezier gewoond aan De Krommert 77 in Oosthuizen. Wij snappen wel waarom! Je woont direct aan het grote park en je hebt aan beide kanten vrij uitzicht. Tel daarbij op een ruime garage en een zonnige tuin op het zuidwesten. Op de begane grond en eerste verdieping heeft het kunststof kozijnen met HR++ beglazing, en je snapt: dit is zo’n huis waar je niet meer weggaat. Welkom in Oosthuizen, een dorp waar ruimte en rust samenkomen. Aan de voorzijde kijk je uit over het uitgestrekte park, waar je elke dag een frisse neus haalt. Achter ligt het gezellige Kraaientuintje, het speeltuintje voor de kleintjes — een plek waar buren elkaar groeten en kinderen veilig buiten spelen. De basisschool ligt op loopafstand en is via rustige paadjes te bereiken, zonder drukke wegen over te steken. Hier woon je met een gerust hart. Stap binnen via de nette entree met modern toilet en meterkast. De keuken ligt aan de voorzijde en die is handig ingedeeld en klaar voor gebruik. De royale woonkamer is heerlijk licht door de brede raampartij. Vanuit je woonkamer heb je zicht op je zonnige tuin en zie je alleen maar groen van de bomen. Op de eerste verdieping vind je drie ruime slaapkamers. De badkamer is compleet, met een ligbad, wastafel en tweede toilet. Alles netjes en verzorgd. De tweede verdieping verrast je met nóg een ruime slaapkamer met dakkapel en een riante overloop met aansluiting voor de wasmachine. Ook op de overloop is een dakkapel geplaatst waardoor je deze perfect als extra slaap- of werkkamer kunt gebruiken. Het beschikt dus over twee dakkapellen maar eerlijk is eerlijk, deze zijn in matige staat en dienen aangepakt te worden. Met name de boeidelen zijn slecht. Extra bergruimte vind je in de twee knieschotten aan weerszijden. Ideaal voor seizoensspullen of koffers. Buiten is het minstens zo fijn. De tuin ligt perfect op het zuidwesten, dus zon liefhebbers kunnen hier hun hart ophalen. En dankzij de vrije ligging aan de achterzijde geniet je ook hier van volop privacy. Achterin vind je de extra brede garage. Deze is perfect voor de hobbyist, klusser of voor wie net wat meer opbergruimte nodig heeft. Nog even alles op een rijtje: * Fantastische ligging aan het park van Oosthuizen * Vrij uitzicht aan voor- én achterzijde * Zonnige tuin op het zuidwesten * Vier slaapkamers en een ruime overloop op de 2e verdieping * Kunststof kozijnen met HR++ beglazing (bg en 1e verdieping) * Extra brede garage * Kindvriendelijke buurt met speeltuin en basisschool om de hoek * Energielabel C Woon je hier straks net zo lang en gelukkig als de vorige bewoners?! Of zie je vooral kansen om het huis helemaal naar jouw smaak te maken?! Eén ding is zeker: met deze ligging wil je hier nooit meer weg dus maak snel een afspraak voor een uitgebreide rondleiding.
40 jaar (of meer) woongeluk! Verkopers hebben ruim 40 jaar met veel plezier gewoond aan De Krommert 77 in Oosthuizen. Wij snappen wel waarom! Je woont direct aan het grote park en je hebt aan beide kanten vrij uitzicht. Tel daarbij op een ruime garage en een zonnige tuin op het zuidwesten. Op de begane grond en eerste verdieping heeft het kunststof kozijnen met HR++ beglazing, en je snapt: dit is zo’n huis waar je niet meer weggaat. Welkom in Oosthuizen, een dorp waar ruimte en rust samenkomen. Aan de voorzijde kijk je uit over het uitgestrekte park, waar je elke dag een frisse neus haalt. Achter ligt het gezellige Kraaientuintje, het speeltuintje voor de kleintjes — een plek waar buren elkaar groeten en kinderen veilig buiten spelen. De basisschool ligt op loopafstand en is via rustige paadjes te bereiken, zonder drukke wegen over te steken. Hier woon je met een gerust hart. Stap binnen via de nette entree met modern toilet en meterkast. De keuken ligt aan de voorzijde en die is handig ingedeeld en klaar voor gebruik. De royale woonkamer is heerlijk licht door de brede raampartij. Vanuit je woonkamer heb je zicht op je zonnige tuin en zie je alleen maar groen van de bomen. Op de eerste verdieping vind je drie ruime slaapkamers. De badkamer is compleet, met een ligbad, wastafel en tweede toilet. Alles netjes en verzorgd. De tweede verdieping verrast je met nóg een ruime slaapkamer met dakkapel en een riante overloop met aansluiting voor de wasmachine. Ook op de overloop is een dakkapel geplaatst waardoor je deze perfect als extra slaap- of werkkamer kunt gebruiken. Het beschikt dus over twee dakkapellen maar eerlijk is eerlijk, deze zijn in matige staat en dienen aangepakt te worden. Met name de boeidelen zijn slecht. Extra bergruimte vind je in de twee knieschotten aan weerszijden. Ideaal voor seizoensspullen of koffers. Buiten is het minstens zo fijn. De tuin ligt perfect op het zuidwesten, dus zon liefhebbers kunnen hier hun hart ophalen. En dankzij de vrije ligging aan de achterzijde geniet je ook hier van volop privacy. Achterin vind je de extra brede garage. Deze is perfect voor de hobbyist, klusser of voor wie net wat meer opbergruimte nodig heeft. Nog even alles op een rijtje: * Fantastische ligging aan het park van Oosthuizen * Vrij uitzicht aan voor- én achterzijde * Zonnige tuin op het zuidwesten * Vier slaapkamers en een ruime overloop op de 2e verdieping * Kunststof kozijnen met HR++ beglazing (bg en 1e verdieping) * Extra brede garage * Kindvriendelijke buurt met speeltuin en basisschool om de hoek * Energielabel C Woon je hier straks net zo lang en gelukkig als de vorige bewoners?! Of zie je vooral kansen om het huis helemaal naar jouw smaak te maken?! Eén ding is zeker: met deze ligging wil je hier nooit meer weg dus maak snel een afspraak voor een uitgebreide rondleiding.