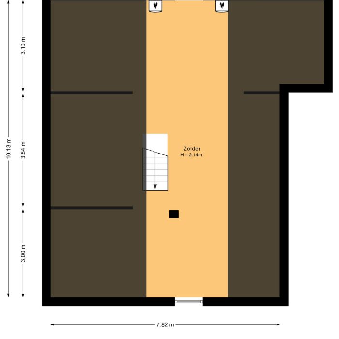
Wonen op een prachtig perceel in een woning waar je nu alle kanten mee op kunt! Etersheim 11 is zo'n plek waar ruimte, rust en mogelijkheden samenkomen. Met een perceel van maar liefst 2.277 m² heb je hier alle vrijheid om je woondromen waar te maken. Of je nu houdt van buitenleven, hobby's met ruimtebehoefte of gewoon lekker veel privacy: dit huis past zich moeiteloos aan jouw wensen aan. De woning zelf is royaal opgezet, biedt volop potentie om te moderniseren én ligt op een unieke locatie, vlak bij het Markermeer. De grote garage met oprit maakt het plaatje compleet, dit is een huis met toekomst. Omgeving Je woont hier vrij, maar zeker niet afgelegen. Etersheim is zo’n idyllisch plekje waar rust de boventoon voert en je het gevoel hebt écht buiten te wonen. Tegelijkertijd ben je in een paar minuten in Oosthuizen, waar je alles vindt wat je nodig hebt: een supermarkt, basisscholen, een bakker, slager én een bushalte met directe verbinding naar Amsterdam. Zo combineer je het beste van twee werelden – landelijk wonen met alle gemakken om de hoek. Binnenkijken Via de ruime oprit stap je binnen in de centrale entreehal van het huis. Direct links vind je de lichte en royale woonkamer – een fijne leefruimte met grote ramen en volop indelingsmogelijkheden. Aan de andere kant van de hal ligt de gesloten keuken met daarachter een praktische bijkeuken, perfect voor extra opslag, wasruimte of als doorgang naar buiten. Aan de achterzijde van het huis bevinden zich maar liefst drie slaapkamers, allemaal lekker licht en ruim van opzet. Ook de badkamer ligt op de begane grond en beschikt over een douche, wastafel en er is een separaat toilet. Alles gelijkvloers dus – ideaal voor nu én de toekomst! Via de vaste trap kom je op de zolderverdieping, een grote open ruimte met volop mogelijkheden. Denk aan extra slaapkamers, een werkplek, atelier of een speelzolder – hier geef je je fantasie de vrije loop. De nokhoogte is comfortabel en met wat aanpassingen maak je hier een volwaardige extra verdieping van. Buitenleven met eindeloze mogelijkheden Buiten is het minstens zo bijzonder. Het perceel is maar liefst 2.277 m² groot en geeft je letterlijk en figuurlijk alle ruimte. Nu is het vooral grasland, omringd door volwassen bomen die zorgen voor volop privacy en een natuurlijke sfeer. Maar wat jij ervan maakt? Dat bepaal je helemaal zelf. Een grote moestuin, een speelparadijs voor de kids, een weelderige siertuin of misschien wel een droom van een veranda met uitzicht over je eigen land, hier kan het allemaal. Dankzij de vrije ligging is er altijd een plek in de zon te vinden. Nog even alles op een rijtje: - Royaal perceel van 2.277 m² - Vrij gelegen maar met alle voorzieningen nabij; - Gevel is na-geïsoleerd; Ben je op zoek naar ruimte, vrijheid en een huis waar je écht je eigen stempel op kunt drukken? Dan is Etersheim 11 jouw kans. Met drie slaapkamers op de begane grond, een ruime zolder, grote garage en een gigantische tuin rondom, biedt dit huis alles wat je nodig hebt en meer. En dat op een unieke locatie vlak bij het Markermeer én met alle voorzieningen in de buurt. Zie je jezelf hier al wonen? Bekijk dan snel de woningvideo en plan je bezichtiging.

Kom in contact met Menno van Diepen
Status
Verkocht
Vraagprijs
€ 775.000,-
Woonoppervlakte
112 m2
Perceeloppervlakte
2.277 m2
Externe bergruimte
31 m2
Gebouwgebonden buitenruimte
0 m2
Overige inpandige ruimte
0 m2
Inhoud
443 m3
Aantal kamers
5
Aantal slaapkamers
4
Vraagprijs: € 775.000,-
4 slaapkamers
Energielabel C
112 m2 woonoppervlak
2.277 m2 perceeloppervlak

Kom in contact met Menno van Diepen
[toon_buurt_intro]
Lorem ipsum dolor sit amet, consetetur sadipscing elitr, sed diam nonumy eirmod tempor invidunt ut labore et dolore magna aliquyam erat, sed diam voluptua. At vero eos et accusam et justo duo dolores et ea rebum. Stet clita kasd gubergren, no sea takimata sanctus est Lorem ipsum dolor sit amet. Lorem ipsum





























































Wonen op een prachtig perceel in een woning waar je nu alle kanten mee op kunt! Etersheim 11 is zo’n plek waar ruimte, rust en mogelijkheden samenkomen. Met een perceel van maar liefst 2.277 m² heb je hier alle vrijheid om je woondromen waar te maken. Of je nu houdt van buitenleven, hobby’s met ruimtebehoefte of gewoon lekker veel privacy: dit huis past zich moeiteloos aan jouw wensen aan. De woning zelf is royaal opgezet, biedt volop potentie om te moderniseren én ligt op een unieke locatie, vlak bij het Markermeer. De grote garage met oprit maakt het plaatje compleet, dit is een huis met toekomst. Omgeving Je woont hier vrij, maar zeker niet afgelegen. Etersheim is zo’n idyllisch plekje waar rust de boventoon voert en je het gevoel hebt écht buiten te wonen. Tegelijkertijd ben je in een paar minuten in Oosthuizen, waar je alles vindt wat je nodig hebt: een supermarkt, basisscholen, een bakker, slager én een bushalte met directe verbinding naar Amsterdam. Zo combineer je het beste van twee werelden – landelijk wonen met alle gemakken om de hoek. Binnenkijken Via de ruime oprit stap je binnen in de centrale entreehal van het huis. Direct links vind je de lichte en royale woonkamer – een fijne leefruimte met grote ramen en volop indelingsmogelijkheden. Aan de andere kant van de hal ligt de gesloten keuken met daarachter een praktische bijkeuken, perfect voor extra opslag, wasruimte of als doorgang naar buiten. Aan de achterzijde van het huis bevinden zich maar liefst drie slaapkamers, allemaal lekker licht en ruim van opzet. Ook de badkamer ligt op de begane grond en beschikt over een douche, wastafel en er is een separaat toilet. Alles gelijkvloers dus – ideaal voor nu én de toekomst! Via de vaste trap kom je op de zolderverdieping, een grote open ruimte met volop mogelijkheden. Denk aan extra slaapkamers, een werkplek, atelier of een speelzolder – hier geef je je fantasie de vrije loop. De nokhoogte is comfortabel en met wat aanpassingen maak je hier een volwaardige extra verdieping van. Buitenleven met eindeloze mogelijkheden Buiten is het minstens zo bijzonder. Het perceel is maar liefst 2.277 m² groot en geeft je letterlijk en figuurlijk alle ruimte. Nu is het vooral grasland, omringd door volwassen bomen die zorgen voor volop privacy en een natuurlijke sfeer. Maar wat jij ervan maakt? Dat bepaal je helemaal zelf. Een grote moestuin, een speelparadijs voor de kids, een weelderige siertuin of misschien wel een droom van een veranda met uitzicht over je eigen land, hier kan het allemaal. Dankzij de vrije ligging is er altijd een plek in de zon te vinden. Nog even alles op een rijtje: – Royaal perceel van 2.277 m² – Vrij gelegen maar met alle voorzieningen nabij; – Gevel is na-geïsoleerd; Ben je op zoek naar ruimte, vrijheid en een huis waar je écht je eigen stempel op kunt drukken? Dan is Etersheim 11 jouw kans. Met drie slaapkamers op de begane grond, een ruime zolder, grote garage en een gigantische tuin rondom, biedt dit huis alles wat je nodig hebt en meer. En dat op een unieke locatie vlak bij het Markermeer én met alle voorzieningen in de buurt. Zie je jezelf hier al wonen? Bekijk dan snel de woningvideo en plan je bezichtiging.
Wonen op een prachtig perceel in een woning waar je nu alle kanten mee op kunt! Etersheim 11 is zo’n plek waar ruimte, rust en mogelijkheden samenkomen. Met een perceel van maar liefst 2.277 m² heb je hier alle vrijheid om je woondromen waar te maken. Of je nu houdt van buitenleven, hobby’s met ruimtebehoefte of gewoon lekker veel privacy: dit huis past zich moeiteloos aan jouw wensen aan. De woning zelf is royaal opgezet, biedt volop potentie om te moderniseren én ligt op een unieke locatie, vlak bij het Markermeer. De grote garage met oprit maakt het plaatje compleet, dit is een huis met toekomst. Omgeving Je woont hier vrij, maar zeker niet afgelegen. Etersheim is zo’n idyllisch plekje waar rust de boventoon voert en je het gevoel hebt écht buiten te wonen. Tegelijkertijd ben je in een paar minuten in Oosthuizen, waar je alles vindt wat je nodig hebt: een supermarkt, basisscholen, een bakker, slager én een bushalte met directe verbinding naar Amsterdam. Zo combineer je het beste van twee werelden – landelijk wonen met alle gemakken om de hoek. Binnenkijken Via de ruime oprit stap je binnen in de centrale entreehal van het huis. Direct links vind je de lichte en royale woonkamer – een fijne leefruimte met grote ramen en volop indelingsmogelijkheden. Aan de andere kant van de hal ligt de gesloten keuken met daarachter een praktische bijkeuken, perfect voor extra opslag, wasruimte of als doorgang naar buiten. Aan de achterzijde van het huis bevinden zich maar liefst drie slaapkamers, allemaal lekker licht en ruim van opzet. Ook de badkamer ligt op de begane grond en beschikt over een douche, wastafel en er is een separaat toilet. Alles gelijkvloers dus – ideaal voor nu én de toekomst! Via de vaste trap kom je op de zolderverdieping, een grote open ruimte met volop mogelijkheden. Denk aan extra slaapkamers, een werkplek, atelier of een speelzolder – hier geef je je fantasie de vrije loop. De nokhoogte is comfortabel en met wat aanpassingen maak je hier een volwaardige extra verdieping van. Buitenleven met eindeloze mogelijkheden Buiten is het minstens zo bijzonder. Het perceel is maar liefst 2.277 m² groot en geeft je letterlijk en figuurlijk alle ruimte. Nu is het vooral grasland, omringd door volwassen bomen die zorgen voor volop privacy en een natuurlijke sfeer. Maar wat jij ervan maakt? Dat bepaal je helemaal zelf. Een grote moestuin, een speelparadijs voor de kids, een weelderige siertuin of misschien wel een droom van een veranda met uitzicht over je eigen land, hier kan het allemaal. Dankzij de vrije ligging is er altijd een plek in de zon te vinden. Nog even alles op een rijtje: – Royaal perceel van 2.277 m² – Vrij gelegen maar met alle voorzieningen nabij; – Gevel is na-geïsoleerd; Ben je op zoek naar ruimte, vrijheid en een huis waar je écht je eigen stempel op kunt drukken? Dan is Etersheim 11 jouw kans. Met drie slaapkamers op de begane grond, een ruime zolder, grote garage en een gigantische tuin rondom, biedt dit huis alles wat je nodig hebt en meer. En dat op een unieke locatie vlak bij het Markermeer én met alle voorzieningen in de buurt. Zie je jezelf hier al wonen? Bekijk dan snel de woningvideo en plan je bezichtiging.