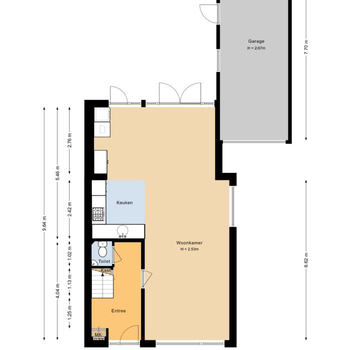
Fraaie hoekwoning met veel ruimte! Daarnaast heb je nog een handige garage voor je hobby en/of opslag! Welkom op Gerrit van Heemskerkstraat 25, een heerlijk ruim gezinshuis op een zonnige hoek in het fijne Oosthuizen. Hier woon je lekker licht, met een royale uitgebouwde woonkamer, vier volwaardige slaapkamers én een praktische garage voor al je hobby’s, fietsen, voorraad of creatieve plannen. De zonnige tuin op het zuidoosten maakt het buitenleven compleet. Dit is zo’n huis waar je je meteen thuis voelt. Wonen in het gezellige Oosthuizen Oosthuizen is zo’n dorp waar je meteen de rust en ruimte voelt — en tóch ben je in no time in Hoorn, Purmerend of Amsterdam. Met basisscholen, sportclubs, een supermarkt en fijne wandelroutes op loopafstand heb je hier alles binnen handbereik. Ideaal voor gezinnen of rustzoekers die toch de stad graag dichtbij willen houden. En met de gezellige dorpssfeer én volop groen om je heen voelt elke dag hier als een kleine vakantie. Indeling: ruim, licht en logisch Begane grond Je komt binnen in de ruime hal met meterkast, trapopgang, toiletruimte en een handige trapkast. Vanuit hier stap je de uitgebouwde woonkamer in, een heerlijke leefruimte waar licht en lucht de hoofdrol spelen. Grote raampartijen en dubbele tuindeuren zorgen voor een directe verbinding met buiten. De keuken in het midden van de woning is praktisch opgesteld en biedt volop werkruimte voor jouw kookkunsten. In de uitbouw tref je de wasruimte aan. Deze kun je eventueel ook naar boven brengen. Eerste verdieping Boven zijn drie fijne slaapkamers, stuk voor stuk met rechte wanden, waardoor je optimaal gebruik kunt maken van de ruimte. De badkamer is compact maar compleet: met ligbad/douche, wastafel en tweede toilet heb je hier alles wat je nodig hebt. Tweede verdieping De vaste trap brengt je naar de zolderverdieping, waar nog een ruime vierde slaapkamer is gecreëerd. Met een dakkapel aan de achterzijde en extra bergruimte achter de knieschotten is dit een perfecte werk-, logeer- of tienerkamer. Buitenleven met zon, privacy en mogelijkheden De tuin ligt op het zuidoosten, wat betekent: lekker veel zon! Hier kun je eindeloos tafelen, loungen of gewoon genieten van de rust. Door de hoekligging heb je net dat beetje extra privacy én extra tuin. De aangebouwde garage is een absolute bonus: ideaal voor je motor, klusspullen, voorraad of als hobbyruimte waar je je creativiteit de vrije loop laat. Nog even alles op een rijtje: - Ruime hoekwoning met uitbouw; - Vier slaapkamers verdeeld over 2 woonlagen; - Lichte en royale woonkamer met tuindeuren; - Fijne tuin op het zuidoosten met volop zon; - Garage voor opslag, hobby of werkruimte; Klaar voor een nieuwe stap? Zet je wensen om in daden en kom dit fijne huis zelf ervaren. Met de ruimte, de ligging én de praktische indeling heb je hier alles in huis om jarenlang met plezier te wonen. Bekijk ook zeker de woningvideo voor een compleet beeld.

Kom in contact met Gioya Mac Donald
Status
Verkocht
Vraagprijs
€ 395.000,-
Woonoppervlakte
111 m2
Perceeloppervlakte
219 m2
Externe bergruimte
8 m2
Gebouwgebonden buitenruimte
0 m2
Overige inpandige ruimte
22 m2
Inhoud
466 m3
Aantal kamers
5
Aantal slaapkamers
4
Vraagprijs: € 395.000,-
4 slaapkamers
Energielabel C
111 m2 woonoppervlak
219 m2 perceeloppervlak

Kom in contact met Gioya Mac Donald
[toon_buurt_intro]
Lorem ipsum dolor sit amet, consetetur sadipscing elitr, sed diam nonumy eirmod tempor invidunt ut labore et dolore magna aliquyam erat, sed diam voluptua. At vero eos et accusam et justo duo dolores et ea rebum. Stet clita kasd gubergren, no sea takimata sanctus est Lorem ipsum dolor sit amet. Lorem ipsum





















































Fraaie hoekwoning met veel ruimte! Daarnaast heb je nog een handige garage voor je hobby en/of opslag! Welkom op Gerrit van Heemskerkstraat 25, een heerlijk ruim gezinshuis op een zonnige hoek in het fijne Oosthuizen. Hier woon je lekker licht, met een royale uitgebouwde woonkamer, vier volwaardige slaapkamers én een praktische garage voor al je hobby’s, fietsen, voorraad of creatieve plannen. De zonnige tuin op het zuidoosten maakt het buitenleven compleet. Dit is zo’n huis waar je je meteen thuis voelt. Wonen in het gezellige Oosthuizen Oosthuizen is zo’n dorp waar je meteen de rust en ruimte voelt — en tóch ben je in no time in Hoorn, Purmerend of Amsterdam. Met basisscholen, sportclubs, een supermarkt en fijne wandelroutes op loopafstand heb je hier alles binnen handbereik. Ideaal voor gezinnen of rustzoekers die toch de stad graag dichtbij willen houden. En met de gezellige dorpssfeer én volop groen om je heen voelt elke dag hier als een kleine vakantie. Indeling: ruim, licht en logisch Begane grond Je komt binnen in de ruime hal met meterkast, trapopgang, toiletruimte en een handige trapkast. Vanuit hier stap je de uitgebouwde woonkamer in, een heerlijke leefruimte waar licht en lucht de hoofdrol spelen. Grote raampartijen en dubbele tuindeuren zorgen voor een directe verbinding met buiten. De keuken in het midden van de woning is praktisch opgesteld en biedt volop werkruimte voor jouw kookkunsten. In de uitbouw tref je de wasruimte aan. Deze kun je eventueel ook naar boven brengen. Eerste verdieping Boven zijn drie fijne slaapkamers, stuk voor stuk met rechte wanden, waardoor je optimaal gebruik kunt maken van de ruimte. De badkamer is compact maar compleet: met ligbad/douche, wastafel en tweede toilet heb je hier alles wat je nodig hebt. Tweede verdieping De vaste trap brengt je naar de zolderverdieping, waar nog een ruime vierde slaapkamer is gecreëerd. Met een dakkapel aan de achterzijde en extra bergruimte achter de knieschotten is dit een perfecte werk-, logeer- of tienerkamer. Buitenleven met zon, privacy en mogelijkheden De tuin ligt op het zuidoosten, wat betekent: lekker veel zon! Hier kun je eindeloos tafelen, loungen of gewoon genieten van de rust. Door de hoekligging heb je net dat beetje extra privacy én extra tuin. De aangebouwde garage is een absolute bonus: ideaal voor je motor, klusspullen, voorraad of als hobbyruimte waar je je creativiteit de vrije loop laat. Nog even alles op een rijtje: – Ruime hoekwoning met uitbouw; – Vier slaapkamers verdeeld over 2 woonlagen; – Lichte en royale woonkamer met tuindeuren; – Fijne tuin op het zuidoosten met volop zon; – Garage voor opslag, hobby of werkruimte; Klaar voor een nieuwe stap? Zet je wensen om in daden en kom dit fijne huis zelf ervaren. Met de ruimte, de ligging én de praktische indeling heb je hier alles in huis om jarenlang met plezier te wonen. Bekijk ook zeker de woningvideo voor een compleet beeld.
Fraaie hoekwoning met veel ruimte! Daarnaast heb je nog een handige garage voor je hobby en/of opslag! Welkom op Gerrit van Heemskerkstraat 25, een heerlijk ruim gezinshuis op een zonnige hoek in het fijne Oosthuizen. Hier woon je lekker licht, met een royale uitgebouwde woonkamer, vier volwaardige slaapkamers én een praktische garage voor al je hobby’s, fietsen, voorraad of creatieve plannen. De zonnige tuin op het zuidoosten maakt het buitenleven compleet. Dit is zo’n huis waar je je meteen thuis voelt. Wonen in het gezellige Oosthuizen Oosthuizen is zo’n dorp waar je meteen de rust en ruimte voelt — en tóch ben je in no time in Hoorn, Purmerend of Amsterdam. Met basisscholen, sportclubs, een supermarkt en fijne wandelroutes op loopafstand heb je hier alles binnen handbereik. Ideaal voor gezinnen of rustzoekers die toch de stad graag dichtbij willen houden. En met de gezellige dorpssfeer én volop groen om je heen voelt elke dag hier als een kleine vakantie. Indeling: ruim, licht en logisch Begane grond Je komt binnen in de ruime hal met meterkast, trapopgang, toiletruimte en een handige trapkast. Vanuit hier stap je de uitgebouwde woonkamer in, een heerlijke leefruimte waar licht en lucht de hoofdrol spelen. Grote raampartijen en dubbele tuindeuren zorgen voor een directe verbinding met buiten. De keuken in het midden van de woning is praktisch opgesteld en biedt volop werkruimte voor jouw kookkunsten. In de uitbouw tref je de wasruimte aan. Deze kun je eventueel ook naar boven brengen. Eerste verdieping Boven zijn drie fijne slaapkamers, stuk voor stuk met rechte wanden, waardoor je optimaal gebruik kunt maken van de ruimte. De badkamer is compact maar compleet: met ligbad/douche, wastafel en tweede toilet heb je hier alles wat je nodig hebt. Tweede verdieping De vaste trap brengt je naar de zolderverdieping, waar nog een ruime vierde slaapkamer is gecreëerd. Met een dakkapel aan de achterzijde en extra bergruimte achter de knieschotten is dit een perfecte werk-, logeer- of tienerkamer. Buitenleven met zon, privacy en mogelijkheden De tuin ligt op het zuidoosten, wat betekent: lekker veel zon! Hier kun je eindeloos tafelen, loungen of gewoon genieten van de rust. Door de hoekligging heb je net dat beetje extra privacy én extra tuin. De aangebouwde garage is een absolute bonus: ideaal voor je motor, klusspullen, voorraad of als hobbyruimte waar je je creativiteit de vrije loop laat. Nog even alles op een rijtje: – Ruime hoekwoning met uitbouw; – Vier slaapkamers verdeeld over 2 woonlagen; – Lichte en royale woonkamer met tuindeuren; – Fijne tuin op het zuidoosten met volop zon; – Garage voor opslag, hobby of werkruimte; Klaar voor een nieuwe stap? Zet je wensen om in daden en kom dit fijne huis zelf ervaren. Met de ruimte, de ligging én de praktische indeling heb je hier alles in huis om jarenlang met plezier te wonen. Bekijk ook zeker de woningvideo voor een compleet beeld.