Ben jij toe aan de volgende stap? Deze 2-kapper is wat je zoekt: Ruimte, een mogelijkheid voor een garage, twee moderne badkamers, en een gigantische woonkamer. Dit is slechts een kleine greep uit het assortiment van Julianalaan 175. Recent deels verbouwd, met veel vierkante meters en een eigen oprit. Hier kun jij straks ècht genieten van comfort en vrijheid. Alles is klaar voor jou om er je nieuwe thuis van te maken. Wat een fijne locatie! De Rijp is een van de mooiste dorpen in de regio, met zijn historische charme en rustige sfeer. Je woont hier in alle rust, maar bent met de goede busverbinding zo in Amsterdam of Alkmaar. Ook de uitvalswegen zijn goed bereikbaar, ideaal als je snel de stad in wilt of een dagje weg plant. Alles wat je nodig hebt is binnen handbereik, maar je geniet tegelijkertijd van de ruimte en natuur die De Rijp te bieden heeft. Indeling van het huis Begane grond Via de entree kom je in de hal, waar je direct ziet dat de woning goed onderhouden is. De meterkast is pas 4 jaar geleden vernieuwd. In het moderne toilet, anderhalf jaar geleden geplaatst en met een zwevend model, heb je alles wat je nodig hebt. De keuken is helemaal van deze tijd: inductiekookplaat, vaatwasser, oven en een afzuigkap zijn aanwezig. Geen gedoe met oude apparatuur! De woonkamer is ècht heel groot. De uitbouw maakt het nog ruimer, en de eikenhouten vloer zorgen voor een moderne, warme uitstraling. Aan de voorzijde van het huis vind je de oorspronkelijke garage, dit is nu in gebruik als berging en bijkeuken. In de bijkeuken kun je de wasmachine en droger kwijt, handig en functioneel. Eerste verdieping Op de eerste verdieping vind je drie slaapkamers, die onlangs allemaal zijn voorzien van kunststof kozijnen en HR++ glas. De laminaatvloeren en stucwerk maken de kamers netjes en modern. De badkamer is ook een echt pluspunt: in 2021 vernieuwd, met vloerverwarming, een inloopdouche, toilet en wastafel. Tweede verdieping De vaste trap leidt naar de tweede verdieping. Deze etage is geheel gerenoveerd. Dat heeft ervoor gezorgd dat je een strak afgewerkte slaapkamer hebt met badkamer en suite. De badkamer en suite heeft alles wat je nodig hebt: een los ligbad, een wastafelmeubel, inloopdouche en toilet. Ook hier is het comfort en de luxe goed doorgevoerd. Het dak is geïsoleerd, en de CV-ketel uit 2011 is in 2024 nog onderhouden. De tuin is een heerlijke plek om te ontspannen. Het is een zonnige, goed onderhouden ruimte waar je lekker kunt genieten van de buitenlucht. Of je nu een barbecue wilt houden, een speeltuin voor de kinderen wilt maken of gewoon wilt relaxen in de zon, deze tuin biedt volop mogelijkheden. Nog even alles op een rijtje: - Twee moderne badkamers; - Boven alles recent verbouwd; - Veel vierkante meters; - Gelegen in het prachtige De Rijp - Eigen oprit voor de auto Maak snel een afspraak om deze woning in het mooie De Rijp te bezichtigen.Ben jij toe aan de volgende stap? Deze woning biedt alles wat je zoekt: ruimte, comfort en een toplocatie. Bekijk de woningvideo en laat je verrassen door de mogelijkheden die Julianalaan 175 jou te bieden heeft!
Ben jij toe aan de volgende stap? Deze 2-kapper is wat je zoekt:
Ruimte, een mogelijkheid voor een garage, twee moderne badkamers, en een gigantische woonkamer. Dit is slechts een kleine greep uit het assortiment van Julianalaan 175. Recent deels verbouwd, met veel vierkante meters en een eigen oprit. Hier kun jij straks ècht genieten van comfort en vrijheid. Alles is klaar voor jou om er je nieuwe thuis van te maken.
Wat een fijne locatie! De Rijp is een van de mooiste dorpen in de regio, met zijn historische charme en rustige sfeer. Je woont hier in alle rust, maar bent met de goede busverbinding zo in Amsterdam of Alkmaar. Ook de uitvalswegen zijn goed bereikbaar, ideaal als je snel de stad in wilt of een dagje weg plant. Alles wat je nodig hebt is binnen handbereik, maar je geniet tegelijkertijd van de ruimte en natuur die De Rijp te bieden heeft.
Indeling van het huis
Begane grond
Via de entree kom je in de hal, waar je direct ziet dat de woning goed onderhouden is. De meterkast is pas 4 jaar geleden vernieuwd. In het moderne toilet, anderhalf jaar geleden geplaatst en met een zwevend model, heb je alles wat je nodig hebt. De keuken is helemaal van deze tijd: inductiekookplaat, vaatwasser, oven en een afzuigkap zijn aanwezig. Geen gedoe met oude apparatuur!
De woonkamer is ècht heel groot. De uitbouw maakt het nog ruimer, en de eikenhouten vloer zorgen voor een moderne, warme uitstraling. Aan de voorzijde van het huis vind je de oorspronkelijke garage, dit is nu in gebruik als berging en bijkeuken. In de bijkeuken kun je de wasmachine en droger kwijt, handig en functioneel.
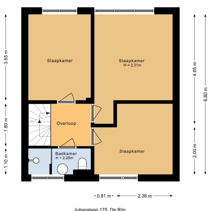
Eerste verdieping
Op de eerste verdieping vind je drie slaapkamers, die onlangs allemaal zijn voorzien van kunststof kozijnen en HR++ glas. De laminaatvloeren en stucwerk maken de kamers netjes en modern. De badkamer is ook een echt pluspunt: in 2021 vernieuwd, met vloerverwarming, een inloopdouche, toilet en wastafel.
Tweede verdieping
De vaste trap leidt naar de tweede verdieping. Deze etage is geheel gerenoveerd. Dat heeft ervoor gezorgd dat je een strak afgewerkte slaapkamer hebt met badkamer en suite. De badkamer en suite heeft alles wat je nodig hebt: een los ligbad, een wastafelmeubel, inloopdouche en toilet. Ook hier is het comfort en de luxe goed doorgevoerd. Het dak is geïsoleerd, en de CV-ketel uit 2011 is in 2024 nog onderhouden.
De tuin is een heerlijke plek om te ontspannen. Het is een zonnige, goed onderhouden ruimte waar je lekker kunt genieten van de buitenlucht. Of je nu een barbecue wilt houden, een speeltuin voor de kinderen wilt maken of gewoon wilt relaxen in de zon, deze tuin biedt volop mogelijkheden.
Nog even alles op een rijtje:
- Twee moderne badkamers;
- Boven alles recent verbouwd;
- Veel vierkante meters;
- Gelegen in het prachtige De Rijp
- Eigen oprit voor de auto
Maak snel een afspraak om deze woning in het mooie De Rijp te bezichtigen.Ben jij toe aan de volgende stap? Deze woning biedt alles wat je zoekt: ruimte, comfort en een toplocatie. Bekijk de woningvideo en laat je verrassen door de mogelijkheden die Julianalaan 175 jou te bieden heeft!

Kom in contact met Menno van Diepen
Status
Verkocht
Vraagprijs
€ 535.000,-
Woonoppervlakte
149 m2
Perceeloppervlakte
190 m2
Externe bergruimte
0 m2
Gebouwgebonden buitenruimte
0 m2
Overige inpandige ruimte
0 m2
Inhoud
503 m3
Aantal kamers
5
Aantal slaapkamers
4
Vraagprijs: € 535.000,-
4 slaapkamers
Energielabel C
149 m2 woonoppervlak
190 m2 perceeloppervlak

Kom in contact met Menno van Diepen
[toon_buurt_intro]
Lorem ipsum dolor sit amet, consetetur sadipscing elitr, sed diam nonumy eirmod tempor invidunt ut labore et dolore magna aliquyam erat, sed diam voluptua. At vero eos et accusam et justo duo dolores et ea rebum. Stet clita kasd gubergren, no sea takimata sanctus est Lorem ipsum dolor sit amet. Lorem ipsum



























































Ben jij toe aan de volgende stap? Deze 2-kapper is wat je zoekt: Ruimte, een mogelijkheid voor een garage, twee moderne badkamers, en een gigantische woonkamer. Dit is slechts een kleine greep uit het assortiment van Julianalaan 175. Recent deels verbouwd, met veel vierkante meters en een eigen oprit. Hier kun jij straks ècht genieten van comfort en vrijheid. Alles is klaar voor jou om er je nieuwe thuis van te maken. Wat een fijne locatie! De Rijp is een van de mooiste dorpen in de regio, met zijn historische charme en rustige sfeer. Je woont hier in alle rust, maar bent met de goede busverbinding zo in Amsterdam of Alkmaar. Ook de uitvalswegen zijn goed bereikbaar, ideaal als je snel de stad in wilt of een dagje weg plant. Alles wat je nodig hebt is binnen handbereik, maar je geniet tegelijkertijd van de ruimte en natuur die De Rijp te bieden heeft. Indeling van het huis Begane grond Via de entree kom je in de hal, waar je direct ziet dat de woning goed onderhouden is. De meterkast is pas 4 jaar geleden vernieuwd. In het moderne toilet, anderhalf jaar geleden geplaatst en met een zwevend model, heb je alles wat je nodig hebt. De keuken is helemaal van deze tijd: inductiekookplaat, vaatwasser, oven en een afzuigkap zijn aanwezig. Geen gedoe met oude apparatuur! De woonkamer is ècht heel groot. De uitbouw maakt het nog ruimer, en de eikenhouten vloer zorgen voor een moderne, warme uitstraling. Aan de voorzijde van het huis vind je de oorspronkelijke garage, dit is nu in gebruik als berging en bijkeuken. In de bijkeuken kun je de wasmachine en droger kwijt, handig en functioneel. Eerste verdieping Op de eerste verdieping vind je drie slaapkamers, die onlangs allemaal zijn voorzien van kunststof kozijnen en HR++ glas. De laminaatvloeren en stucwerk maken de kamers netjes en modern. De badkamer is ook een echt pluspunt: in 2021 vernieuwd, met vloerverwarming, een inloopdouche, toilet en wastafel. Tweede verdieping De vaste trap leidt naar de tweede verdieping. Deze etage is geheel gerenoveerd. Dat heeft ervoor gezorgd dat je een strak afgewerkte slaapkamer hebt met badkamer en suite. De badkamer en suite heeft alles wat je nodig hebt: een los ligbad, een wastafelmeubel, inloopdouche en toilet. Ook hier is het comfort en de luxe goed doorgevoerd. Het dak is geïsoleerd, en de CV-ketel uit 2011 is in 2024 nog onderhouden. De tuin is een heerlijke plek om te ontspannen. Het is een zonnige, goed onderhouden ruimte waar je lekker kunt genieten van de buitenlucht. Of je nu een barbecue wilt houden, een speeltuin voor de kinderen wilt maken of gewoon wilt relaxen in de zon, deze tuin biedt volop mogelijkheden. Nog even alles op een rijtje: – Twee moderne badkamers; – Boven alles recent verbouwd; – Veel vierkante meters; – Gelegen in het prachtige De Rijp – Eigen oprit voor de auto Maak snel een afspraak om deze woning in het mooie De Rijp te bezichtigen.Ben jij toe aan de volgende stap? Deze woning biedt alles wat je zoekt: ruimte, comfort en een toplocatie. Bekijk de woningvideo en laat je verrassen door de mogelijkheden die Julianalaan 175 jou te bieden heeft!
Ben jij toe aan de volgende stap? Deze 2-kapper is wat je zoekt: Ruimte, een mogelijkheid voor een garage, twee moderne badkamers, en een gigantische woonkamer. Dit is slechts een kleine greep uit het assortiment van Julianalaan 175. Recent deels verbouwd, met veel vierkante meters en een eigen oprit. Hier kun jij straks ècht genieten van comfort en vrijheid. Alles is klaar voor jou om er je nieuwe thuis van te maken. Wat een fijne locatie! De Rijp is een van de mooiste dorpen in de regio, met zijn historische charme en rustige sfeer. Je woont hier in alle rust, maar bent met de goede busverbinding zo in Amsterdam of Alkmaar. Ook de uitvalswegen zijn goed bereikbaar, ideaal als je snel de stad in wilt of een dagje weg plant. Alles wat je nodig hebt is binnen handbereik, maar je geniet tegelijkertijd van de ruimte en natuur die De Rijp te bieden heeft. Indeling van het huis Begane grond Via de entree kom je in de hal, waar je direct ziet dat de woning goed onderhouden is. De meterkast is pas 4 jaar geleden vernieuwd. In het moderne toilet, anderhalf jaar geleden geplaatst en met een zwevend model, heb je alles wat je nodig hebt. De keuken is helemaal van deze tijd: inductiekookplaat, vaatwasser, oven en een afzuigkap zijn aanwezig. Geen gedoe met oude apparatuur! De woonkamer is ècht heel groot. De uitbouw maakt het nog ruimer, en de eikenhouten vloer zorgen voor een moderne, warme uitstraling. Aan de voorzijde van het huis vind je de oorspronkelijke garage, dit is nu in gebruik als berging en bijkeuken. In de bijkeuken kun je de wasmachine en droger kwijt, handig en functioneel. Eerste verdieping Op de eerste verdieping vind je drie slaapkamers, die onlangs allemaal zijn voorzien van kunststof kozijnen en HR++ glas. De laminaatvloeren en stucwerk maken de kamers netjes en modern. De badkamer is ook een echt pluspunt: in 2021 vernieuwd, met vloerverwarming, een inloopdouche, toilet en wastafel. Tweede verdieping De vaste trap leidt naar de tweede verdieping. Deze etage is geheel gerenoveerd. Dat heeft ervoor gezorgd dat je een strak afgewerkte slaapkamer hebt met badkamer en suite. De badkamer en suite heeft alles wat je nodig hebt: een los ligbad, een wastafelmeubel, inloopdouche en toilet. Ook hier is het comfort en de luxe goed doorgevoerd. Het dak is geïsoleerd, en de CV-ketel uit 2011 is in 2024 nog onderhouden. De tuin is een heerlijke plek om te ontspannen. Het is een zonnige, goed onderhouden ruimte waar je lekker kunt genieten van de buitenlucht. Of je nu een barbecue wilt houden, een speeltuin voor de kinderen wilt maken of gewoon wilt relaxen in de zon, deze tuin biedt volop mogelijkheden. Nog even alles op een rijtje: – Twee moderne badkamers; – Boven alles recent verbouwd; – Veel vierkante meters; – Gelegen in het prachtige De Rijp – Eigen oprit voor de auto Maak snel een afspraak om deze woning in het mooie De Rijp te bezichtigen.Ben jij toe aan de volgende stap? Deze woning biedt alles wat je zoekt: ruimte, comfort en een toplocatie. Bekijk de woningvideo en laat je verrassen door de mogelijkheden die Julianalaan 175 jou te bieden heeft!