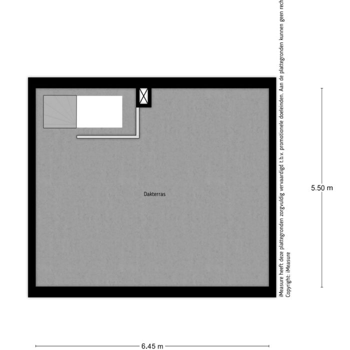
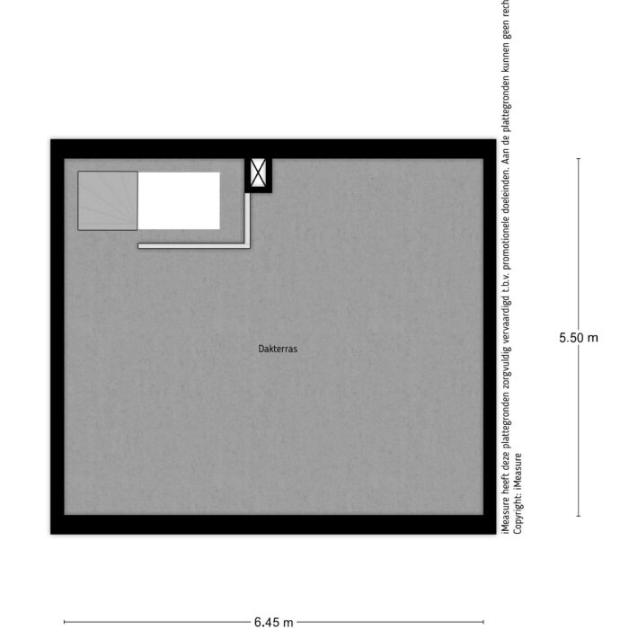
Doorsnee? Welnee! Houd je wel van een verrassing op zijn tijd? En vind jij doorsnee ook maar zo gewoon? Dan moet je zeker komen kijken in het bijzondere hoekhuis met spectaculair uitzicht en prachtige lichtinval op Lissabonhaven 22 in Purmerend. Dit perfect onderhouden huis is niet alleen verrassend anders, het heeft ook nog eens een zee aan ruimte dankzij de gevels die tot en met de tweede verdieping recht zijn opgetrokken. Daarbij heeft het een heerlijk grote en comfortabele woonkeuken en een lekker ruime living met een fantastische stalen pui. Aan de voorzijde heb je een heerlijke stadstuin maar de grootste verrassing vind je op het dak: een ruim dakterras met spectaculair 360 graden uitzicht over de stad. We nemen je mee naar de Europabuurt in de wijk Weidevenne. Je woont hier op slechts enkele wandelminuten van het centrum van Purmerend in een rustige en populaire nieuwbouwwijk met alle voorzieningen vlakbij. En voor wie regelmatig gebruik maakt van het openbaar vervoer, de bushalte ligt om de hoek en ook treinstation Weidevenne is vlakbij. Met de bus zit je binnen 15 a 20 minuten in Amsterdam-Noord. Geen doorsnee geldt zeker voor de indeling van dit huis. Op de begane grond is namelijk een heerlijk ruime en comfortabele woonkeuken, welke je binnenwandelt vanuit de ruime hal. Op de vloer liggen moderne plavuizen. De woonkeuken is echt zo’n plek waar je vaak gaat zitten. Er is ruimte genoeg voor een grote eettafel en de keuken zelf is modern afgewerkt en een plaatje om te zien. De keuken is zo ingedeeld dat er een schiereiland is waar je goed contact houdt met je gasten tijdens het koken. Verder is er een ingebouwde keramische kookplaat, een afzuigkap, een vaatwasser, een combi-oven, een koelkast en een mooi hardstenen aanrechtblad. Via de hal met toilet wandelen we door naar de eerste verdieping. Deze hele verdieping is ingedeeld als woonkamer, waardoor je heerlijk veel ruimte hebt en veel vrijheid in indeling. Wat hier direct opvalt is hoe licht de ruimte is! Er zijn namelijk veel ramen, welke ook nog eens geweldig uitzicht geven op de wijk. Een echte eye-catcher is de grote stalen pui voor de trappen. De woonkamer is afgewerkt met een Jatoba hardhouten vloer en de wanden en het plafond zijn strak gestuukt. Overigens zijn alle wanden en plafonds in het huis gestuukt. We lopen door naar de tweede verdieping, hier zijn vanuit de overloop (met vaste kast) de twee slaapkamers en de badkamer te betreden. De badkamer is lekker ruim en modern afgewerkt met een inloopdouche met rainshower, tweede toilet en een wastafelmeubel. De wasmachine staat nu in de badkamer maar het is eventueel mogelijk om een bovenlader in de vaste kast op de overloop te plaatsen. De kers op de taart is toch wel het dakterras op de derde verdieping. Het uitzicht is hier werkelijk magnifiek. Draai een rondje om je as en bekijk Purmerend in al zijn schoonheid. Van zonsopgang tot zonsondergang kun je hier van het zonnetje genieten. We moeten nog even wachten op het mooie weer, maar zie jij jezelf al barbecueën op het dakterras? Bijzonderheden: - Energielabel A+ - Volledig geïsoleerd - Gasloos (stadsverwarming) - Eigen grond - Bouwjaar 2007 - Super centraal gelegen - Dakterras met 360 graden uitzicht - Alle wanden en plafonds gestuukt Kom jij deze verrassende hoekwoning bekijken? Vergeet van te voren vooral niet de woningvideo te bekijken die Mariska hier heeft opgenomen. Zij laat je de omgeving zien en neemt je mee door het huis.
Toen wij dit huis op Funda zagen werden wij gelijk verliefd. Dat werd tijdens de bezichtiging alleen maar meer. Wat een vrij uitzicht voor een woonwijk en een prachtige lichtinval. Zelfs in de winter is dit een licht huis. Daarnaast is het centrum zo dichtbij en kun je vanaf het dakterras de kerktoren zien. Een heerlijk stads gevoel voor ons als voormalige Amsterdammers.
De eerste verliefdheid veranderde, in de jaren dat wij hier woonden, in houden van. Dit huis op deze plek voelt als een warm bad.
We hebben vaak genoten van het zonnetje, die je in de voortuin en op het dakterras de hele dag hebt. We dronken er ‘s ochtends vroeg koffie, ontbeten of lunchten aan de picknicktafel en barbecueden er ‘s avonds met vrienden en familie. Ook hebben wij vele wandelingen door de leuke buurt en het centrum gemaakt. Tijdens de koudere avonden heb je vanaf de woonkamer een gezellig uitzicht op het watertje en de huizen aan de overkant.
Niet alleen het stadse gevoel kwam hier terug maar tot onze verrassing ook het dorpse. Dat komt door de lieve buren. Wat begon met af en toe een praatje, groeide uit tot een goede band en omkijken naar elkaar. Deze straat is multicultureel en gastvrij. Wanneer er bijvoorbeeld eten over was, of iets lekkers werd gebakken werd dit gedeeld. Wij hebben hier vrienden voor het leven gemaakt.
Met een beetje pijn in ons hart gaan we door met de volgende stap. Dit huis heeft ons liefde gegeven en dat geven wij graag door aan de volgende bewoner!

Kom in contact met Richard Herlé-Ruys
Status
Verkocht
Vraagprijs
€ 450.000,-
Woonoppervlakte
100 m2
Perceeloppervlakte
74 m2
Externe bergruimte
0 m2
Gebouwgebonden buitenruimte
34 m2
Overige inpandige ruimte
4 m2
Inhoud
347 m3
Aantal kamers
4
Aantal slaapkamers
2
Vraagprijs: € 450.000,-
2 slaapkamers
Energielabel A+
100 m2 woonoppervlak
74 m2 perceeloppervlak

Kom in contact met Richard Herlé-Ruys
[toon_buurt_intro]
Lorem ipsum dolor sit amet, consetetur sadipscing elitr, sed diam nonumy eirmod tempor invidunt ut labore et dolore magna aliquyam erat, sed diam voluptua. At vero eos et accusam et justo duo dolores et ea rebum. Stet clita kasd gubergren, no sea takimata sanctus est Lorem ipsum dolor sit amet. Lorem ipsum



































































Doorsnee? Welnee! Houd je wel van een verrassing op zijn tijd? En vind jij doorsnee ook maar zo gewoon? Dan moet je zeker komen kijken in het bijzondere hoekhuis met spectaculair uitzicht en prachtige lichtinval op Lissabonhaven 22 in Purmerend. Dit perfect onderhouden huis is niet alleen verrassend anders, het heeft ook nog eens een zee aan ruimte dankzij de gevels die tot en met de tweede verdieping recht zijn opgetrokken. Daarbij heeft het een heerlijk grote en comfortabele woonkeuken en een lekker ruime living met een fantastische stalen pui. Aan de voorzijde heb je een heerlijke stadstuin maar de grootste verrassing vind je op het dak: een ruim dakterras met spectaculair 360 graden uitzicht over de stad. We nemen je mee naar de Europabuurt in de wijk Weidevenne. Je woont hier op slechts enkele wandelminuten van het centrum van Purmerend in een rustige en populaire nieuwbouwwijk met alle voorzieningen vlakbij. En voor wie regelmatig gebruik maakt van het openbaar vervoer, de bushalte ligt om de hoek en ook treinstation Weidevenne is vlakbij. Met de bus zit je binnen 15 a 20 minuten in Amsterdam-Noord. Geen doorsnee geldt zeker voor de indeling van dit huis. Op de begane grond is namelijk een heerlijk ruime en comfortabele woonkeuken, welke je binnenwandelt vanuit de ruime hal. Op de vloer liggen moderne plavuizen. De woonkeuken is echt zo’n plek waar je vaak gaat zitten. Er is ruimte genoeg voor een grote eettafel en de keuken zelf is modern afgewerkt en een plaatje om te zien. De keuken is zo ingedeeld dat er een schiereiland is waar je goed contact houdt met je gasten tijdens het koken. Verder is er een ingebouwde keramische kookplaat, een afzuigkap, een vaatwasser, een combi-oven, een koelkast en een mooi hardstenen aanrechtblad. Via de hal met toilet wandelen we door naar de eerste verdieping. Deze hele verdieping is ingedeeld als woonkamer, waardoor je heerlijk veel ruimte hebt en veel vrijheid in indeling. Wat hier direct opvalt is hoe licht de ruimte is! Er zijn namelijk veel ramen, welke ook nog eens geweldig uitzicht geven op de wijk. Een echte eye-catcher is de grote stalen pui voor de trappen. De woonkamer is afgewerkt met een Jatoba hardhouten vloer en de wanden en het plafond zijn strak gestuukt. Overigens zijn alle wanden en plafonds in het huis gestuukt. We lopen door naar de tweede verdieping, hier zijn vanuit de overloop (met vaste kast) de twee slaapkamers en de badkamer te betreden. De badkamer is lekker ruim en modern afgewerkt met een inloopdouche met rainshower, tweede toilet en een wastafelmeubel. De wasmachine staat nu in de badkamer maar het is eventueel mogelijk om een bovenlader in de vaste kast op de overloop te plaatsen. De kers op de taart is toch wel het dakterras op de derde verdieping. Het uitzicht is hier werkelijk magnifiek. Draai een rondje om je as en bekijk Purmerend in al zijn schoonheid. Van zonsopgang tot zonsondergang kun je hier van het zonnetje genieten. We moeten nog even wachten op het mooie weer, maar zie jij jezelf al barbecueën op het dakterras? Bijzonderheden: – Energielabel A+ – Volledig geïsoleerd – Gasloos (stadsverwarming) – Eigen grond – Bouwjaar 2007 – Super centraal gelegen – Dakterras met 360 graden uitzicht – Alle wanden en plafonds gestuukt Kom jij deze verrassende hoekwoning bekijken? Vergeet van te voren vooral niet de woningvideo te bekijken die Mariska hier heeft opgenomen. Zij laat je de omgeving zien en neemt je mee door het huis.
Doorsnee? Welnee! Houd je wel van een verrassing op zijn tijd? En vind jij doorsnee ook maar zo gewoon? Dan moet je zeker komen kijken in het bijzondere hoekhuis met spectaculair uitzicht en prachtige lichtinval op Lissabonhaven 22 in Purmerend. Dit perfect onderhouden huis is niet alleen verrassend anders, het heeft ook nog eens een zee aan ruimte dankzij de gevels die tot en met de tweede verdieping recht zijn opgetrokken. Daarbij heeft het een heerlijk grote en comfortabele woonkeuken en een lekker ruime living met een fantastische stalen pui. Aan de voorzijde heb je een heerlijke stadstuin maar de grootste verrassing vind je op het dak: een ruim dakterras met spectaculair 360 graden uitzicht over de stad. We nemen je mee naar de Europabuurt in de wijk Weidevenne. Je woont hier op slechts enkele wandelminuten van het centrum van Purmerend in een rustige en populaire nieuwbouwwijk met alle voorzieningen vlakbij. En voor wie regelmatig gebruik maakt van het openbaar vervoer, de bushalte ligt om de hoek en ook treinstation Weidevenne is vlakbij. Met de bus zit je binnen 15 a 20 minuten in Amsterdam-Noord. Geen doorsnee geldt zeker voor de indeling van dit huis. Op de begane grond is namelijk een heerlijk ruime en comfortabele woonkeuken, welke je binnenwandelt vanuit de ruime hal. Op de vloer liggen moderne plavuizen. De woonkeuken is echt zo’n plek waar je vaak gaat zitten. Er is ruimte genoeg voor een grote eettafel en de keuken zelf is modern afgewerkt en een plaatje om te zien. De keuken is zo ingedeeld dat er een schiereiland is waar je goed contact houdt met je gasten tijdens het koken. Verder is er een ingebouwde keramische kookplaat, een afzuigkap, een vaatwasser, een combi-oven, een koelkast en een mooi hardstenen aanrechtblad. Via de hal met toilet wandelen we door naar de eerste verdieping. Deze hele verdieping is ingedeeld als woonkamer, waardoor je heerlijk veel ruimte hebt en veel vrijheid in indeling. Wat hier direct opvalt is hoe licht de ruimte is! Er zijn namelijk veel ramen, welke ook nog eens geweldig uitzicht geven op de wijk. Een echte eye-catcher is de grote stalen pui voor de trappen. De woonkamer is afgewerkt met een Jatoba hardhouten vloer en de wanden en het plafond zijn strak gestuukt. Overigens zijn alle wanden en plafonds in het huis gestuukt. We lopen door naar de tweede verdieping, hier zijn vanuit de overloop (met vaste kast) de twee slaapkamers en de badkamer te betreden. De badkamer is lekker ruim en modern afgewerkt met een inloopdouche met rainshower, tweede toilet en een wastafelmeubel. De wasmachine staat nu in de badkamer maar het is eventueel mogelijk om een bovenlader in de vaste kast op de overloop te plaatsen. De kers op de taart is toch wel het dakterras op de derde verdieping. Het uitzicht is hier werkelijk magnifiek. Draai een rondje om je as en bekijk Purmerend in al zijn schoonheid. Van zonsopgang tot zonsondergang kun je hier van het zonnetje genieten. We moeten nog even wachten op het mooie weer, maar zie jij jezelf al barbecueën op het dakterras? Bijzonderheden: – Energielabel A+ – Volledig geïsoleerd – Gasloos (stadsverwarming) – Eigen grond – Bouwjaar 2007 – Super centraal gelegen – Dakterras met 360 graden uitzicht – Alle wanden en plafonds gestuukt Kom jij deze verrassende hoekwoning bekijken? Vergeet van te voren vooral niet de woningvideo te bekijken die Mariska hier heeft opgenomen. Zij laat je de omgeving zien en neemt je mee door het huis.