De eerste stappen gezet! De eerste stappen naar een droomhuis zijn gezet aan de Luitje Broekemastraat 11 in Purmerend. Deze voormalige drive-inwoning is de laatste tijd flink onder handen genomen. Zo is de voormalige garage omgetoverd tot een luxe keuken (2024) en geniet je hier nu van een ruime en fijne woonkamer. Er moet nog wel het een en ander gedaan worden om het huis helemaal af te maken, maar de verkopers dragen graag het stokje aan jou over. Wij vertellen je graag alles over de wijk én dit huis met een fantastisch vrij uitzicht over de dijk. Laten we beginnen bij de wijk: Je woont hier in een rustig gedeelte van Purmer-Zuid, op korte afstand van het Oudelandsdijkje, de Ringvaart en niet ver van park De Driegang. Zin in de gezelligheid van de stad? Vanaf hier fiets je in ongeveer 10 minuten naar het centrum van Purmerend – zo heb je dus het beste van twee werelden. In de omgeving vind je bovendien verschillende basisscholen en voor je dagelijkse boodschappen kun je terecht bij winkelcentrum Meerland. Parkeren kan op eigen terrein voor het huis. Via de voordeur kom je in de hal, vanwaar je toegang hebt tot het toilet, de trapopgang naar de eerste verdieping en de woonkamer met open keuken. De keuken bevindt zich aan de voorzijde van het huis en is geplaatst eind 2024. Deze is voorzien van een inductiekookplaat, combi-oven, oven, Amerikaanse koel-vriescombinatie, vaatwasser en een granieten werkblad. De woonkamer is tuingericht en heerlijk licht dankzij de grote raampartijen aan de achterzijde. De wanden en het plafond zijn strak gestuukt. Eerste verdieping Hier bevonden zich voorheen de keuken en de woonkamer. De huidige eigenaren hadden het idee om hier slaapkamers te realiseren, eventueel met een extra badkamer. Tweede verdieping Op deze verdieping is al een badkamer aanwezig en vind je daarnaast nog twee slaapkamers. Zowel op de eerste als op de tweede verdieping beschik je over een ruim terras, waar je heerlijk buiten kunt zitten. Nog alles op een rij: - Vrij uitzicht over de dijk - Parkeren op eigen erf - Zonnige tuin gelegen aan het water - Erfpacht eeuwigdurend afgekocht - Energielabel A Maak jij de laatste stappen af en ga jij met veel plezier wonen op Luitje Broekemastraat 11 in Purmerend? Maak snel met ons een afspraak voor een uitgebreide rondleiding.
De eerste stappen gezet!
De eerste stappen naar een droomhuis zijn gezet aan de Luitje Broekemastraat 11 in Purmerend.
Deze voormalige drive-inwoning is de laatste tijd flink onder handen genomen. Zo is de voormalige garage omgetoverd tot een luxe keuken (2024) en geniet je hier nu van een ruime en fijne woonkamer.
Er moet nog wel het een en ander gedaan worden om het huis helemaal af te maken, maar de verkopers dragen graag het stokje aan jou over. Wij vertellen je graag alles over de wijk én dit huis met een fantastisch vrij uitzicht over de dijk.
Laten we beginnen bij de wijk:
Je woont hier in een rustig gedeelte van Purmer-Zuid, op korte afstand van het Oudelandsdijkje, de Ringvaart en niet ver van park De Driegang.
Zin in de gezelligheid van de stad? Vanaf hier fiets je in ongeveer 10 minuten naar het centrum van Purmerend – zo heb je dus het beste van twee werelden. In de omgeving vind je bovendien verschillende basisscholen en voor je dagelijkse boodschappen kun je terecht bij winkelcentrum Meerland.
Parkeren kan op eigen terrein voor het huis.
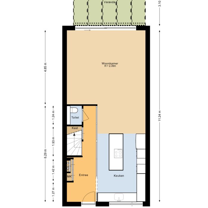
Via de voordeur kom je in de hal, vanwaar je toegang hebt tot het toilet, de trapopgang naar de eerste verdieping en de woonkamer met open keuken.
De keuken bevindt zich aan de voorzijde van het huis en is geplaatst eind 2024. Deze is voorzien van een inductiekookplaat, combi-oven, oven, Amerikaanse koel-vriescombinatie, vaatwasser en een granieten werkblad.
De woonkamer is tuingericht en heerlijk licht dankzij de grote raampartijen aan de achterzijde. De wanden en het plafond zijn strak gestuukt.
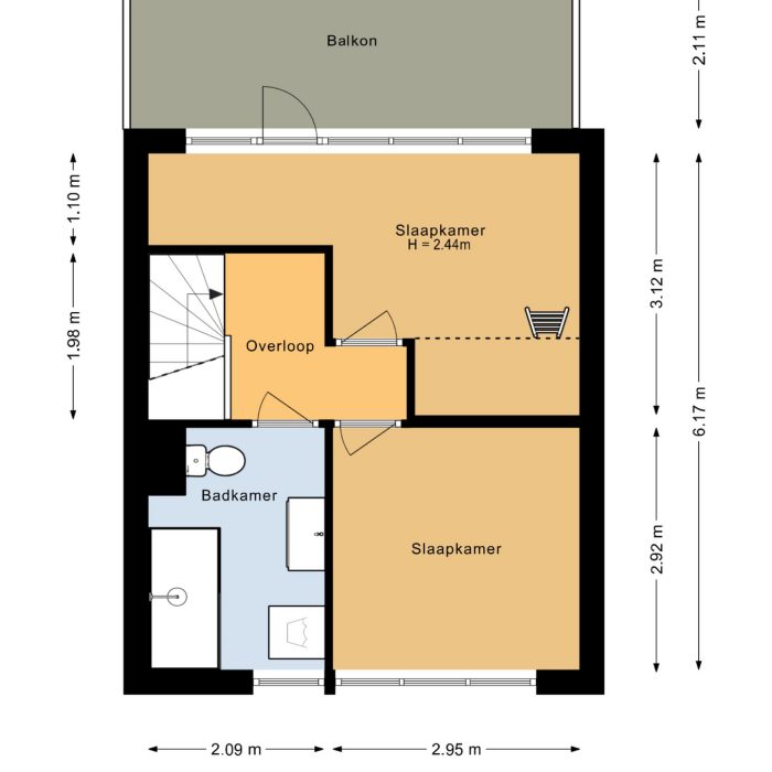
Eerste verdieping
Hier bevonden zich voorheen de keuken en de woonkamer. De huidige eigenaren hadden het idee om hier slaapkamers te realiseren, eventueel met een extra badkamer.
Tweede verdieping
Op deze verdieping is al een badkamer aanwezig en vind je daarnaast nog twee slaapkamers. Zowel op de eerste als op de tweede verdieping beschik je over een ruim terras, waar je heerlijk buiten kunt zitten.
Nog alles op een rij:
- Vrij uitzicht over de dijk
- Parkeren op eigen erf
- Zonnige tuin gelegen aan het water
- Erfpacht eeuwigdurend afgekocht
- Energielabel A
Maak jij de laatste stappen af en ga jij met veel plezier wonen op Luitje Broekemastraat 11 in Purmerend?
Maak snel met ons een afspraak voor een uitgebreide rondleiding.

Kom in contact met Menno van Diepen
Status
Verkocht
Vraagprijs
€ 525.000,-
Woonoppervlakte
132 m2
Perceeloppervlakte
220 m2
Externe bergruimte
0 m2
Gebouwgebonden buitenruimte
42 m2
Overige inpandige ruimte
0 m2
Inhoud
450 m3
Aantal kamers
4
Aantal slaapkamers
3
Vraagprijs: € 525.000,-
3 slaapkamers
Energielabel A
132 m2 woonoppervlak
220 m2 perceeloppervlak

Kom in contact met Menno van Diepen
<p>Overweeg jij om te gaan wonen in de Purmer-Zuid? Dan is het handig om te weten wat deze woonwijk allemaal te bieden heeft.<br /> We vertellen je meer over al die zaken die wonen in Purmer-Zuid zo leuk maken. Van basisscholen en verenigingen tot de geschiedenis van deze wijk en de winkels die je hier kunt vinden, we sommen het allemaal voor je op zodat jij straks precies weet waar je op kunt rekenen als je komt wonen in de Purmer-Zuid.</p>
Bekijk alles over deze buurtOverweeg jij om te gaan wonen in de Purmer-Zuid? Dan is het handig om te weten wat deze woonwijk allemaal te bieden heeft.
We vertellen je meer over al die zaken die wonen in Purmer-Zuid zo leuk maken. Van basisscholen en verenigingen tot de geschiedenis van deze wijk en de winkels die je hier kunt vinden, we sommen het allemaal voor je op zodat jij straks precies weet waar je op kunt rekenen als je komt wonen in de Purmer-Zuid.
Lorem ipsum dolor sit amet, consetetur sadipscing elitr, sed diam nonumy eirmod tempor invidunt ut labore et dolore magna aliquyam erat, sed diam voluptua. At vero eos et accusam et justo duo dolores et ea rebum. Stet clita kasd gubergren, no sea takimata sanctus est Lorem ipsum dolor sit amet. Lorem ipsum



































































De eerste stappen gezet! De eerste stappen naar een droomhuis zijn gezet aan de Luitje Broekemastraat 11 in Purmerend. Deze voormalige drive-inwoning is de laatste tijd flink onder handen genomen. Zo is de voormalige garage omgetoverd tot een luxe keuken (2024) en geniet je hier nu van een ruime en fijne woonkamer. Er moet nog wel het een en ander gedaan worden om het huis helemaal af te maken, maar de verkopers dragen graag het stokje aan jou over. Wij vertellen je graag alles over de wijk én dit huis met een fantastisch vrij uitzicht over de dijk. Laten we beginnen bij de wijk: Je woont hier in een rustig gedeelte van Purmer-Zuid, op korte afstand van het Oudelandsdijkje, de Ringvaart en niet ver van park De Driegang. Zin in de gezelligheid van de stad? Vanaf hier fiets je in ongeveer 10 minuten naar het centrum van Purmerend – zo heb je dus het beste van twee werelden. In de omgeving vind je bovendien verschillende basisscholen en voor je dagelijkse boodschappen kun je terecht bij winkelcentrum Meerland. Parkeren kan op eigen terrein voor het huis. Via de voordeur kom je in de hal, vanwaar je toegang hebt tot het toilet, de trapopgang naar de eerste verdieping en de woonkamer met open keuken. De keuken bevindt zich aan de voorzijde van het huis en is geplaatst eind 2024. Deze is voorzien van een inductiekookplaat, combi-oven, oven, Amerikaanse koel-vriescombinatie, vaatwasser en een granieten werkblad. De woonkamer is tuingericht en heerlijk licht dankzij de grote raampartijen aan de achterzijde. De wanden en het plafond zijn strak gestuukt. Eerste verdieping Hier bevonden zich voorheen de keuken en de woonkamer. De huidige eigenaren hadden het idee om hier slaapkamers te realiseren, eventueel met een extra badkamer. Tweede verdieping Op deze verdieping is al een badkamer aanwezig en vind je daarnaast nog twee slaapkamers. Zowel op de eerste als op de tweede verdieping beschik je over een ruim terras, waar je heerlijk buiten kunt zitten. Nog alles op een rij: – Vrij uitzicht over de dijk – Parkeren op eigen erf – Zonnige tuin gelegen aan het water – Erfpacht eeuwigdurend afgekocht – Energielabel A Maak jij de laatste stappen af en ga jij met veel plezier wonen op Luitje Broekemastraat 11 in Purmerend? Maak snel met ons een afspraak voor een uitgebreide rondleiding.
De eerste stappen gezet! De eerste stappen naar een droomhuis zijn gezet aan de Luitje Broekemastraat 11 in Purmerend. Deze voormalige drive-inwoning is de laatste tijd flink onder handen genomen. Zo is de voormalige garage omgetoverd tot een luxe keuken (2024) en geniet je hier nu van een ruime en fijne woonkamer. Er moet nog wel het een en ander gedaan worden om het huis helemaal af te maken, maar de verkopers dragen graag het stokje aan jou over. Wij vertellen je graag alles over de wijk én dit huis met een fantastisch vrij uitzicht over de dijk. Laten we beginnen bij de wijk: Je woont hier in een rustig gedeelte van Purmer-Zuid, op korte afstand van het Oudelandsdijkje, de Ringvaart en niet ver van park De Driegang. Zin in de gezelligheid van de stad? Vanaf hier fiets je in ongeveer 10 minuten naar het centrum van Purmerend – zo heb je dus het beste van twee werelden. In de omgeving vind je bovendien verschillende basisscholen en voor je dagelijkse boodschappen kun je terecht bij winkelcentrum Meerland. Parkeren kan op eigen terrein voor het huis. Via de voordeur kom je in de hal, vanwaar je toegang hebt tot het toilet, de trapopgang naar de eerste verdieping en de woonkamer met open keuken. De keuken bevindt zich aan de voorzijde van het huis en is geplaatst eind 2024. Deze is voorzien van een inductiekookplaat, combi-oven, oven, Amerikaanse koel-vriescombinatie, vaatwasser en een granieten werkblad. De woonkamer is tuingericht en heerlijk licht dankzij de grote raampartijen aan de achterzijde. De wanden en het plafond zijn strak gestuukt. Eerste verdieping Hier bevonden zich voorheen de keuken en de woonkamer. De huidige eigenaren hadden het idee om hier slaapkamers te realiseren, eventueel met een extra badkamer. Tweede verdieping Op deze verdieping is al een badkamer aanwezig en vind je daarnaast nog twee slaapkamers. Zowel op de eerste als op de tweede verdieping beschik je over een ruim terras, waar je heerlijk buiten kunt zitten. Nog alles op een rij: – Vrij uitzicht over de dijk – Parkeren op eigen erf – Zonnige tuin gelegen aan het water – Erfpacht eeuwigdurend afgekocht – Energielabel A Maak jij de laatste stappen af en ga jij met veel plezier wonen op Luitje Broekemastraat 11 in Purmerend? Maak snel met ons een afspraak voor een uitgebreide rondleiding.