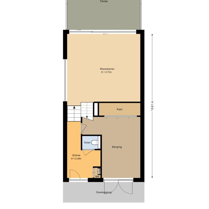
Wonen met een magisch uitzicht! Welkom aan de Mississippistraat 46, waar comfort, ruimte en een speelse indeling samenkomen in een verrassende hoekwoning met drie volwaardige verdiepingen. Denk: split-level living, een fantastisch vrij uitzicht én een zonovergoten zonneterras op het zuidwesten. Hier woon je niet alleen ruim, maar ook sfeervol en met nét dat beetje extra luxe. En alsof dat nog niet genoeg is: je parkeert gewoon op eigen terrein, hebt 9 zonnepanelen op het dak liggen en beschikt over bergruimte voor je fiets, motor of hobbyspullen. De omgeving Deze fijne woning ligt aan de rand van Weidevenne, in een rustig stukje Purmerend met een bijna dorpse sfeer. Vanuit je woonkamer én het balkon kijk je uit over groen en water, dat betekent genieten van zonsondergangen en weidse vergezichten, elke dag weer. Op loopafstand vind je winkels, scholen en het treinstation, waarmee je zo in Amsterdam bent. Rustig wonen met de stad binnen handbereik: wie wil dat nou niet? Indeling Begane grond Je komt binnen via de overkapte entree, waar je meteen toegang hebt tot een ruime hal met toilet. Aan de voorzijde vind je een praktische berging/garage perfect voor fietsen, motor of als werkruimte. Vanuit de hal loop je de lichte woonkamer in, waar het hoge plafond en de grote raampartijen aan de tuinzijde direct voor een gevoel van ruimte en vrijheid zorgen. Via de schuifpui loop je zo het terras op. Dit is werkelijk een verlenging van je woonkamer in de zomer! Woonkeuken Via een klein trapje (hello, split-level!) kom je in de moderne leefkeuken. Dankzij de centrale opstelling met kookeiland is dit dé plek voor lange avonden koken, tafelen en natafelen. De keuken beschikt over alle inbouwapparatuur die je maar kunt wensen. Denk hierbij aan een vaatwasser, oven, magnetron, Quooker, inductiekookplaat, koelkast en vriezer. En: via het aangrenzende balkon geniet je van een perfecte plaats voor een kopje koffie in het ochtendzonnetje. Tweede verdieping Hier tref je twee grote slaapkamers aan: één aan de voorzijde en één aan de achterzijde van het huis. In het midden vind je een stijlvolle badkamer met dubbele wastafel, toilet, urinoir en inloopdouche. Ook is er een extra berging, ideaal voor je wasmachine en voorraad. Mocht je toch liever een extra kamer willen, dan is het mogelijk om deze aan de achterzijde eenvoudig te realiseren. Dit was namelijk de originele indeling. Derde verdieping Last but not least: de bovenste verdieping. Een royale slaapverdieping met vaste kast en toegang tot een riant dakterras. Word hier wakker met uitzicht op de Wijdewormer en je dag kan niet meer stuk. De ruimte is perfect als master bedroom, werkruimte of atelier. De airco houdt je kamer in de zomer lekker koel, want met een plat dak kan dit nog wel eens warm worden. Buitenruimte Zonaanbidders opgelet: dit huis trakteert je op maar liefst twee buitenruimtes én een zonneterras aangrenzend aan de woonkamer. Of je nu wilt loungen, barbecueën of in alle rust een boek lezen: je vindt altijd een plekje in de zon. En met vrij uitzicht wordt buiten zitten hier écht buiten leven. Nog even alles op een rijtje: - Hoekwoning met split-level indeling en drie woonlagen; - Ruime woonkamer met hoog plafond en grote schuifpui naar het zonneterras; - Luxe leefkeuken met kookeiland en balkon op het zuidwesten - Drie royale slaapkamers verdeeld over twee verdiepingen - Dakterras met fenomenaal uitzicht - Eigen oprit en inpandige berging Zie jij jezelf hier al wonen? Dat snappen we. Want dit is zo’n huis dat je moet beleven. Bekijk de video, wandel virtueel door de ruimtes en plan vooral snel een bezichtiging in. Want wonen met een magisch uitzicht, dat wil je toch gewoon?
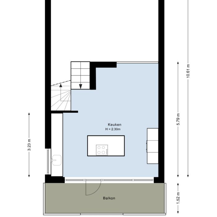
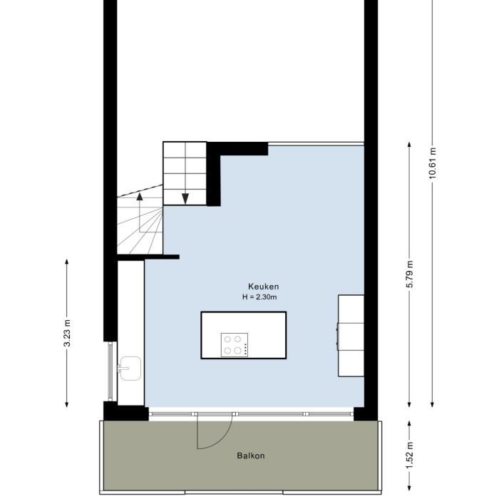
Woonkeuken
Via een klein trapje (hello, split-level!) kom je in de moderne leefkeuken. Dankzij de centrale opstelling met kookeiland is dit dé plek voor lange avonden koken, tafelen en natafelen. De keuken beschikt over alle inbouwapparatuur die je maar kunt wensen. Denk hierbij aan een vaatwasser, oven, magnetron, Quooker, inductiekookplaat, koelkast en vriezer. En: via het aangrenzende balkon geniet je van een perfecte plaats voor een kopje koffie in het ochtendzonnetje.
Tweede verdieping
Hier tref je twee grote slaapkamers aan: één aan de voorzijde en één aan de achterzijde van het huis. In het midden vind je een stijlvolle badkamer met dubbele wastafel, toilet, urinoir en inloopdouche. Ook is er een extra berging, ideaal voor je wasmachine en voorraad. Mocht je toch liever een extra kamer willen, dan is het mogelijk om deze aan de achterzijde eenvoudig te realiseren. Dit was namelijk de originele indeling.
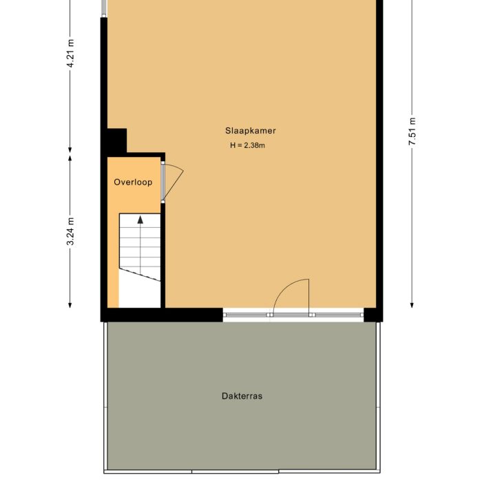
Derde verdieping
Last but not least: de bovenste verdieping. Een royale slaapverdieping met vaste kast en toegang tot een riant dakterras. Word hier wakker met uitzicht op de Wijdewormer en je dag kan niet meer stuk. De ruimte is perfect als master bedroom, werkruimte of atelier. De airco houdt je kamer in de zomer lekker koel, want met een plat dak kan dit nog wel eens warm worden.
Buitenruimte
Zonaanbidders opgelet: dit huis trakteert je op maar liefst twee buitenruimtes én een zonneterras aangrenzend aan de woonkamer. Of je nu wilt loungen, barbecueën of in alle rust een boek lezen: je vindt altijd een plekje in de zon. En met vrij uitzicht wordt buiten zitten hier écht buiten leven.
Nog even alles op een rijtje:
- Hoekwoning met split-level indeling en drie woonlagen;
- Ruime woonkamer met hoog plafond en grote schuifpui naar het zonneterras;
- Luxe leefkeuken met kookeiland en balkon op het zuidwesten
- Drie royale slaapkamers verdeeld over twee verdiepingen
- Dakterras met fenomenaal uitzicht
- Eigen oprit en inpandige berging
Zie jij jezelf hier al wonen?
Dat snappen we. Want dit is zo’n huis dat je moet beleven. Bekijk de video, wandel virtueel door de ruimtes en plan vooral snel een bezichtiging in. Want wonen met een magisch uitzicht, dat wil je toch gewoon?

Kom in contact met Menno van Diepen
Status
Verkocht
Vraagprijs
€ 675.000,-
Woonoppervlakte
169 m2
Perceeloppervlakte
127 m2
Externe bergruimte
0 m2
Gebouwgebonden buitenruimte
59 m2
Overige inpandige ruimte
18 m2
Inhoud
730 m3
Aantal kamers
4
Aantal slaapkamers
3
Vraagprijs: € 675.000,-
3 slaapkamers
Energielabel A
169 m2 woonoppervlak
127 m2 perceeloppervlak

Kom in contact met Menno van Diepen
[toon_buurt_intro]
Lorem ipsum dolor sit amet, consetetur sadipscing elitr, sed diam nonumy eirmod tempor invidunt ut labore et dolore magna aliquyam erat, sed diam voluptua. At vero eos et accusam et justo duo dolores et ea rebum. Stet clita kasd gubergren, no sea takimata sanctus est Lorem ipsum dolor sit amet. Lorem ipsum









































































Wonen met een magisch uitzicht! Welkom aan de Mississippistraat 46, waar comfort, ruimte en een speelse indeling samenkomen in een verrassende hoekwoning met drie volwaardige verdiepingen. Denk: split-level living, een fantastisch vrij uitzicht én een zonovergoten zonneterras op het zuidwesten. Hier woon je niet alleen ruim, maar ook sfeervol en met nét dat beetje extra luxe. En alsof dat nog niet genoeg is: je parkeert gewoon op eigen terrein, hebt 9 zonnepanelen op het dak liggen en beschikt over bergruimte voor je fiets, motor of hobbyspullen. De omgeving Deze fijne woning ligt aan de rand van Weidevenne, in een rustig stukje Purmerend met een bijna dorpse sfeer. Vanuit je woonkamer én het balkon kijk je uit over groen en water, dat betekent genieten van zonsondergangen en weidse vergezichten, elke dag weer. Op loopafstand vind je winkels, scholen en het treinstation, waarmee je zo in Amsterdam bent. Rustig wonen met de stad binnen handbereik: wie wil dat nou niet? Indeling Begane grond Je komt binnen via de overkapte entree, waar je meteen toegang hebt tot een ruime hal met toilet. Aan de voorzijde vind je een praktische berging/garage perfect voor fietsen, motor of als werkruimte. Vanuit de hal loop je de lichte woonkamer in, waar het hoge plafond en de grote raampartijen aan de tuinzijde direct voor een gevoel van ruimte en vrijheid zorgen. Via de schuifpui loop je zo het terras op. Dit is werkelijk een verlenging van je woonkamer in de zomer! Woonkeuken Via een klein trapje (hello, split-level!) kom je in de moderne leefkeuken. Dankzij de centrale opstelling met kookeiland is dit dé plek voor lange avonden koken, tafelen en natafelen. De keuken beschikt over alle inbouwapparatuur die je maar kunt wensen. Denk hierbij aan een vaatwasser, oven, magnetron, Quooker, inductiekookplaat, koelkast en vriezer. En: via het aangrenzende balkon geniet je van een perfecte plaats voor een kopje koffie in het ochtendzonnetje. Tweede verdieping Hier tref je twee grote slaapkamers aan: één aan de voorzijde en één aan de achterzijde van het huis. In het midden vind je een stijlvolle badkamer met dubbele wastafel, toilet, urinoir en inloopdouche. Ook is er een extra berging, ideaal voor je wasmachine en voorraad. Mocht je toch liever een extra kamer willen, dan is het mogelijk om deze aan de achterzijde eenvoudig te realiseren. Dit was namelijk de originele indeling. Derde verdieping Last but not least: de bovenste verdieping. Een royale slaapverdieping met vaste kast en toegang tot een riant dakterras. Word hier wakker met uitzicht op de Wijdewormer en je dag kan niet meer stuk. De ruimte is perfect als master bedroom, werkruimte of atelier. De airco houdt je kamer in de zomer lekker koel, want met een plat dak kan dit nog wel eens warm worden. Buitenruimte Zonaanbidders opgelet: dit huis trakteert je op maar liefst twee buitenruimtes én een zonneterras aangrenzend aan de woonkamer. Of je nu wilt loungen, barbecueën of in alle rust een boek lezen: je vindt altijd een plekje in de zon. En met vrij uitzicht wordt buiten zitten hier écht buiten leven. Nog even alles op een rijtje: – Hoekwoning met split-level indeling en drie woonlagen; – Ruime woonkamer met hoog plafond en grote schuifpui naar het zonneterras; – Luxe leefkeuken met kookeiland en balkon op het zuidwesten – Drie royale slaapkamers verdeeld over twee verdiepingen – Dakterras met fenomenaal uitzicht – Eigen oprit en inpandige berging Zie jij jezelf hier al wonen? Dat snappen we. Want dit is zo’n huis dat je moet beleven. Bekijk de video, wandel virtueel door de ruimtes en plan vooral snel een bezichtiging in. Want wonen met een magisch uitzicht, dat wil je toch gewoon?
Wonen met een magisch uitzicht! Welkom aan de Mississippistraat 46, waar comfort, ruimte en een speelse indeling samenkomen in een verrassende hoekwoning met drie volwaardige verdiepingen. Denk: split-level living, een fantastisch vrij uitzicht én een zonovergoten zonneterras op het zuidwesten. Hier woon je niet alleen ruim, maar ook sfeervol en met nét dat beetje extra luxe. En alsof dat nog niet genoeg is: je parkeert gewoon op eigen terrein, hebt 9 zonnepanelen op het dak liggen en beschikt over bergruimte voor je fiets, motor of hobbyspullen. De omgeving Deze fijne woning ligt aan de rand van Weidevenne, in een rustig stukje Purmerend met een bijna dorpse sfeer. Vanuit je woonkamer én het balkon kijk je uit over groen en water, dat betekent genieten van zonsondergangen en weidse vergezichten, elke dag weer. Op loopafstand vind je winkels, scholen en het treinstation, waarmee je zo in Amsterdam bent. Rustig wonen met de stad binnen handbereik: wie wil dat nou niet? Indeling Begane grond Je komt binnen via de overkapte entree, waar je meteen toegang hebt tot een ruime hal met toilet. Aan de voorzijde vind je een praktische berging/garage perfect voor fietsen, motor of als werkruimte. Vanuit de hal loop je de lichte woonkamer in, waar het hoge plafond en de grote raampartijen aan de tuinzijde direct voor een gevoel van ruimte en vrijheid zorgen. Via de schuifpui loop je zo het terras op. Dit is werkelijk een verlenging van je woonkamer in de zomer! Woonkeuken Via een klein trapje (hello, split-level!) kom je in de moderne leefkeuken. Dankzij de centrale opstelling met kookeiland is dit dé plek voor lange avonden koken, tafelen en natafelen. De keuken beschikt over alle inbouwapparatuur die je maar kunt wensen. Denk hierbij aan een vaatwasser, oven, magnetron, Quooker, inductiekookplaat, koelkast en vriezer. En: via het aangrenzende balkon geniet je van een perfecte plaats voor een kopje koffie in het ochtendzonnetje. Tweede verdieping Hier tref je twee grote slaapkamers aan: één aan de voorzijde en één aan de achterzijde van het huis. In het midden vind je een stijlvolle badkamer met dubbele wastafel, toilet, urinoir en inloopdouche. Ook is er een extra berging, ideaal voor je wasmachine en voorraad. Mocht je toch liever een extra kamer willen, dan is het mogelijk om deze aan de achterzijde eenvoudig te realiseren. Dit was namelijk de originele indeling. Derde verdieping Last but not least: de bovenste verdieping. Een royale slaapverdieping met vaste kast en toegang tot een riant dakterras. Word hier wakker met uitzicht op de Wijdewormer en je dag kan niet meer stuk. De ruimte is perfect als master bedroom, werkruimte of atelier. De airco houdt je kamer in de zomer lekker koel, want met een plat dak kan dit nog wel eens warm worden. Buitenruimte Zonaanbidders opgelet: dit huis trakteert je op maar liefst twee buitenruimtes én een zonneterras aangrenzend aan de woonkamer. Of je nu wilt loungen, barbecueën of in alle rust een boek lezen: je vindt altijd een plekje in de zon. En met vrij uitzicht wordt buiten zitten hier écht buiten leven. Nog even alles op een rijtje: – Hoekwoning met split-level indeling en drie woonlagen; – Ruime woonkamer met hoog plafond en grote schuifpui naar het zonneterras; – Luxe leefkeuken met kookeiland en balkon op het zuidwesten – Drie royale slaapkamers verdeeld over twee verdiepingen – Dakterras met fenomenaal uitzicht – Eigen oprit en inpandige berging Zie jij jezelf hier al wonen? Dat snappen we. Want dit is zo’n huis dat je moet beleven. Bekijk de video, wandel virtueel door de ruimtes en plan vooral snel een bezichtiging in. Want wonen met een magisch uitzicht, dat wil je toch gewoon?