Helemaal het einde op het oosteinde! Zoek je een twee-onder-een-kapwoning zonder klussen, waar je je direct thuis voelt? Plan dan meteen een uitgebreide bezichtiging in bij Oosteinde 33 in Oosthuizen. Je parkeert je auto op je eigen erf en hebt volop ruimte om te genieten van de zon in de tuin, met een leuke overkapping waar je altijd een prachtig uitzicht hebt. Het huis is recentelijk volledig opgeknapt en helemaal klaar om direct van te genieten. Wij raden je aan om eerst even ruim de tijd te nemen om de omgeving te bekijken. Oosthuizen is een fijn dorp, waar de dorpse gemoedelijkheid hand in hand gaat met bereikbaarheid van alle dagelijkse voorzieningen. Zo is basisschool de Koningsspil gemakkelijk met de fiets bereikbaar. Het Oosteinde ligt dichtbij en in het verlengde van de Raadhuisstraat. Dit is de winkelstraat van het dorp, waar je onder andere een bakker, een slager en een supermarkt vindt. Je boodschappen doe je dus eenvoudig lopend. Vind je het fijn om in de buurt van de grote stad te wonen? Oosthuizen is niet ver van steden als Hoorn en Purmerend en er is een goede busverbinding die je snel naar Hoorn en Amsterdam brengt. Met een half uurtje sta je op het centraal station. De auto parkeer je op eigen terrein. Zodra je het huis binnenkomt, merk je gelijk dat er een hele fijne sfeer hangt. Schop je schoenen maar uit want op de begane grond ligt een PVC vloer met vloerverwarming. De vloer is ook geïsoleerd met Tonzon dus het rendement van de vloerverwarming is optimaal. In de hal is het moderne toilet, een kelder-trapkast, de trapopgang en de toegangsdeur tot het leefgedeelte. Je komt binnen in de vernieuwde keuken (2019) die voorzien is van inbouwapparatuur, zoals een koelkast, aparte vriezer, combi-oven (2024), vaatwasser en een vier pits gasstel met een afzuigkap. Je ontbijtje nuttig je lekker aan het barretje. De woonkamer is ook volledig gemoderniseerd. Alle wanden zijn gestuukt en het is een heerlijke lichte ruimte waar je je direct thuis zult voelen. De praktische bijkeuken heeft ruimte voor je wasmachine, droger en biedt ook veel opbergruimte. Op de eerste verdieping vind je drie verrassend ruime slaapkamers en een vernieuwde badkamer (2022). De slaapkamers zijn voorzien van PVC en één slaapkamer heeft een speelse slaapplek in de nok. Ook is er nog een vliering voor extra opslagruimte. De groene achtertuin is gelegen op het zuiden, de tuin is lekker zonnig en geeft je volop privacy. Er is een leuke overkapping geplaatst waar jij heel veel van het buitenleven gaat genieten! In de ochtend geniet je hier heerlijk in het zonnetje van een kopje koffie of na je werk van een glas wijn. Nog even alles op een rijtje: - Twee-onder-een-kapwoning op groot perceel - Parkeren op eigen erf - Instapklaar - Hele huis is strak afgewerkt en klaar om van te genieten - Tuin gelegen op het zuiden - Leuke overkapping met zon en uitzicht - Energielabel D Toe aan de volgende stap?! En heb je geen zin om te klussen?! Dit huis heeft alles wat je zoekt: ruimte, comfort en een toplocatie. Maak snel een afspraak voor een bezichtiging en ontdek zelf de mogelijkheden van dit sfeervolle en perfect afgewerkte huis. Bekijk ook de woningvideo voor een compleet beeld! Hierin kun je ook voor- en na-foto's bekijken van de transformatie die het huis heeft ondergaan!
Helemaal het einde op het oosteinde!
Zoek je een twee-onder-een-kapwoning zonder klussen, waar je je direct thuis voelt? Plan dan meteen een uitgebreide bezichtiging in bij Oosteinde 33 in Oosthuizen.
Je parkeert je auto op je eigen erf en hebt volop ruimte om te genieten van de zon in de tuin, met een leuke overkapping waar je altijd een prachtig uitzicht hebt. Het huis is recentelijk volledig opgeknapt en helemaal klaar om direct van te genieten.
Wij raden je aan om eerst even ruim de tijd te nemen om de omgeving te bekijken. Oosthuizen is een fijn dorp, waar de dorpse gemoedelijkheid hand in hand gaat met bereikbaarheid van alle dagelijkse voorzieningen. Zo is basisschool de Koningsspil gemakkelijk met de fiets bereikbaar.
Het Oosteinde ligt dichtbij en in het verlengde van de Raadhuisstraat. Dit is de winkelstraat van het dorp, waar je onder andere een bakker, een slager en een supermarkt vindt. Je boodschappen doe je dus eenvoudig lopend.
Vind je het fijn om in de buurt van de grote stad te wonen? Oosthuizen is niet ver van steden als Hoorn en Purmerend en er is een goede busverbinding die je snel naar Hoorn en Amsterdam brengt. Met een half uurtje sta je op het centraal station.
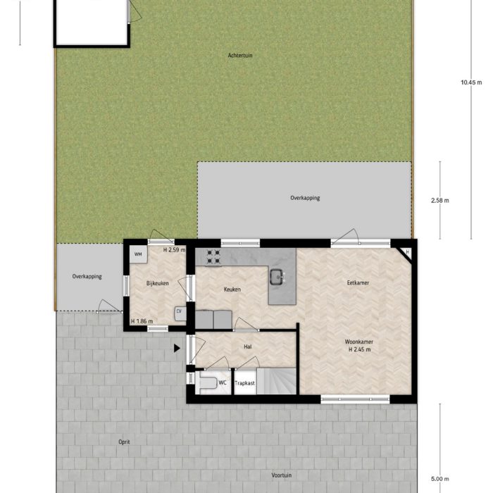
De auto parkeer je op eigen terrein. Zodra je het huis binnenkomt, merk je gelijk dat er een hele fijne sfeer hangt. Schop je schoenen maar uit want op de begane grond ligt een PVC vloer met vloerverwarming. De vloer is ook geïsoleerd met Tonzon dus het rendement van de vloerverwarming is optimaal. In de hal is het moderne toilet, een kelder-trapkast, de trapopgang en de toegangsdeur tot het leefgedeelte. Je komt binnen in de vernieuwde keuken (2019) die voorzien is van inbouwapparatuur, zoals een koelkast, aparte vriezer, combi-oven (2024), vaatwasser en een vier pits gasstel met een afzuigkap. Je ontbijtje nuttig je lekker aan het barretje.
De woonkamer is ook volledig gemoderniseerd. Alle wanden zijn gestuukt en het is een heerlijke lichte ruimte waar je je direct thuis zult voelen.
De praktische bijkeuken heeft ruimte voor je wasmachine, droger en biedt ook veel opbergruimte.
Op de eerste verdieping vind je drie verrassend ruime slaapkamers en een vernieuwde badkamer (2022). De slaapkamers zijn voorzien van PVC en één slaapkamer heeft een speelse slaapplek in de nok. Ook is er nog een vliering voor extra opslagruimte.
De groene achtertuin is gelegen op het zuiden, de tuin is lekker zonnig en geeft je volop privacy. Er is een leuke overkapping geplaatst waar jij heel veel van het buitenleven gaat genieten! In de ochtend geniet je hier heerlijk in het zonnetje van een kopje koffie of na je werk van een glas wijn.
Nog even alles op een rijtje:
- Twee-onder-een-kapwoning op groot perceel
- Parkeren op eigen erf
- Instapklaar
- Hele huis is strak afgewerkt en klaar om van te genieten
- Tuin gelegen op het zuiden
- Leuke overkapping met zon en uitzicht
- Energielabel D
Toe aan de volgende stap?! En heb je geen zin om te klussen?! Dit huis heeft alles wat je zoekt: ruimte, comfort en een toplocatie. Maak snel een afspraak voor een bezichtiging en ontdek zelf de mogelijkheden van dit sfeervolle en perfect afgewerkte huis. Bekijk ook de woningvideo voor een compleet beeld! Hierin kun je ook voor- en na-foto's bekijken van de transformatie die het huis heeft ondergaan!

Kom in contact met Richard Herlé-Ruys
Status
Verkocht
Vraagprijs
€ 400.000,-
Woonoppervlakte
80 m2
Perceeloppervlakte
240 m2
Externe bergruimte
7 m2
Gebouwgebonden buitenruimte
25 m2
Overige inpandige ruimte
0 m2
Inhoud
275 m3
Aantal kamers
5
Aantal slaapkamers
3
Vraagprijs: € 400.000,-
3 slaapkamers
Energielabel D
80 m2 woonoppervlak
240 m2 perceeloppervlak

Kom in contact met Richard Herlé-Ruys
[toon_buurt_intro]
Lorem ipsum dolor sit amet, consetetur sadipscing elitr, sed diam nonumy eirmod tempor invidunt ut labore et dolore magna aliquyam erat, sed diam voluptua. At vero eos et accusam et justo duo dolores et ea rebum. Stet clita kasd gubergren, no sea takimata sanctus est Lorem ipsum dolor sit amet. Lorem ipsum

































































Helemaal het einde op het oosteinde! Zoek je een twee-onder-een-kapwoning zonder klussen, waar je je direct thuis voelt? Plan dan meteen een uitgebreide bezichtiging in bij Oosteinde 33 in Oosthuizen. Je parkeert je auto op je eigen erf en hebt volop ruimte om te genieten van de zon in de tuin, met een leuke overkapping waar je altijd een prachtig uitzicht hebt. Het huis is recentelijk volledig opgeknapt en helemaal klaar om direct van te genieten. Wij raden je aan om eerst even ruim de tijd te nemen om de omgeving te bekijken. Oosthuizen is een fijn dorp, waar de dorpse gemoedelijkheid hand in hand gaat met bereikbaarheid van alle dagelijkse voorzieningen. Zo is basisschool de Koningsspil gemakkelijk met de fiets bereikbaar. Het Oosteinde ligt dichtbij en in het verlengde van de Raadhuisstraat. Dit is de winkelstraat van het dorp, waar je onder andere een bakker, een slager en een supermarkt vindt. Je boodschappen doe je dus eenvoudig lopend. Vind je het fijn om in de buurt van de grote stad te wonen? Oosthuizen is niet ver van steden als Hoorn en Purmerend en er is een goede busverbinding die je snel naar Hoorn en Amsterdam brengt. Met een half uurtje sta je op het centraal station. De auto parkeer je op eigen terrein. Zodra je het huis binnenkomt, merk je gelijk dat er een hele fijne sfeer hangt. Schop je schoenen maar uit want op de begane grond ligt een PVC vloer met vloerverwarming. De vloer is ook geïsoleerd met Tonzon dus het rendement van de vloerverwarming is optimaal. In de hal is het moderne toilet, een kelder-trapkast, de trapopgang en de toegangsdeur tot het leefgedeelte. Je komt binnen in de vernieuwde keuken (2019) die voorzien is van inbouwapparatuur, zoals een koelkast, aparte vriezer, combi-oven (2024), vaatwasser en een vier pits gasstel met een afzuigkap. Je ontbijtje nuttig je lekker aan het barretje. De woonkamer is ook volledig gemoderniseerd. Alle wanden zijn gestuukt en het is een heerlijke lichte ruimte waar je je direct thuis zult voelen. De praktische bijkeuken heeft ruimte voor je wasmachine, droger en biedt ook veel opbergruimte. Op de eerste verdieping vind je drie verrassend ruime slaapkamers en een vernieuwde badkamer (2022). De slaapkamers zijn voorzien van PVC en één slaapkamer heeft een speelse slaapplek in de nok. Ook is er nog een vliering voor extra opslagruimte. De groene achtertuin is gelegen op het zuiden, de tuin is lekker zonnig en geeft je volop privacy. Er is een leuke overkapping geplaatst waar jij heel veel van het buitenleven gaat genieten! In de ochtend geniet je hier heerlijk in het zonnetje van een kopje koffie of na je werk van een glas wijn. Nog even alles op een rijtje: – Twee-onder-een-kapwoning op groot perceel – Parkeren op eigen erf – Instapklaar – Hele huis is strak afgewerkt en klaar om van te genieten – Tuin gelegen op het zuiden – Leuke overkapping met zon en uitzicht – Energielabel D Toe aan de volgende stap?! En heb je geen zin om te klussen?! Dit huis heeft alles wat je zoekt: ruimte, comfort en een toplocatie. Maak snel een afspraak voor een bezichtiging en ontdek zelf de mogelijkheden van dit sfeervolle en perfect afgewerkte huis. Bekijk ook de woningvideo voor een compleet beeld! Hierin kun je ook voor- en na-foto’s bekijken van de transformatie die het huis heeft ondergaan!
Helemaal het einde op het oosteinde! Zoek je een twee-onder-een-kapwoning zonder klussen, waar je je direct thuis voelt? Plan dan meteen een uitgebreide bezichtiging in bij Oosteinde 33 in Oosthuizen. Je parkeert je auto op je eigen erf en hebt volop ruimte om te genieten van de zon in de tuin, met een leuke overkapping waar je altijd een prachtig uitzicht hebt. Het huis is recentelijk volledig opgeknapt en helemaal klaar om direct van te genieten. Wij raden je aan om eerst even ruim de tijd te nemen om de omgeving te bekijken. Oosthuizen is een fijn dorp, waar de dorpse gemoedelijkheid hand in hand gaat met bereikbaarheid van alle dagelijkse voorzieningen. Zo is basisschool de Koningsspil gemakkelijk met de fiets bereikbaar. Het Oosteinde ligt dichtbij en in het verlengde van de Raadhuisstraat. Dit is de winkelstraat van het dorp, waar je onder andere een bakker, een slager en een supermarkt vindt. Je boodschappen doe je dus eenvoudig lopend. Vind je het fijn om in de buurt van de grote stad te wonen? Oosthuizen is niet ver van steden als Hoorn en Purmerend en er is een goede busverbinding die je snel naar Hoorn en Amsterdam brengt. Met een half uurtje sta je op het centraal station. De auto parkeer je op eigen terrein. Zodra je het huis binnenkomt, merk je gelijk dat er een hele fijne sfeer hangt. Schop je schoenen maar uit want op de begane grond ligt een PVC vloer met vloerverwarming. De vloer is ook geïsoleerd met Tonzon dus het rendement van de vloerverwarming is optimaal. In de hal is het moderne toilet, een kelder-trapkast, de trapopgang en de toegangsdeur tot het leefgedeelte. Je komt binnen in de vernieuwde keuken (2019) die voorzien is van inbouwapparatuur, zoals een koelkast, aparte vriezer, combi-oven (2024), vaatwasser en een vier pits gasstel met een afzuigkap. Je ontbijtje nuttig je lekker aan het barretje. De woonkamer is ook volledig gemoderniseerd. Alle wanden zijn gestuukt en het is een heerlijke lichte ruimte waar je je direct thuis zult voelen. De praktische bijkeuken heeft ruimte voor je wasmachine, droger en biedt ook veel opbergruimte. Op de eerste verdieping vind je drie verrassend ruime slaapkamers en een vernieuwde badkamer (2022). De slaapkamers zijn voorzien van PVC en één slaapkamer heeft een speelse slaapplek in de nok. Ook is er nog een vliering voor extra opslagruimte. De groene achtertuin is gelegen op het zuiden, de tuin is lekker zonnig en geeft je volop privacy. Er is een leuke overkapping geplaatst waar jij heel veel van het buitenleven gaat genieten! In de ochtend geniet je hier heerlijk in het zonnetje van een kopje koffie of na je werk van een glas wijn. Nog even alles op een rijtje: – Twee-onder-een-kapwoning op groot perceel – Parkeren op eigen erf – Instapklaar – Hele huis is strak afgewerkt en klaar om van te genieten – Tuin gelegen op het zuiden – Leuke overkapping met zon en uitzicht – Energielabel D Toe aan de volgende stap?! En heb je geen zin om te klussen?! Dit huis heeft alles wat je zoekt: ruimte, comfort en een toplocatie. Maak snel een afspraak voor een bezichtiging en ontdek zelf de mogelijkheden van dit sfeervolle en perfect afgewerkte huis. Bekijk ook de woningvideo voor een compleet beeld! Hierin kun je ook voor- en na-foto’s bekijken van de transformatie die het huis heeft ondergaan!