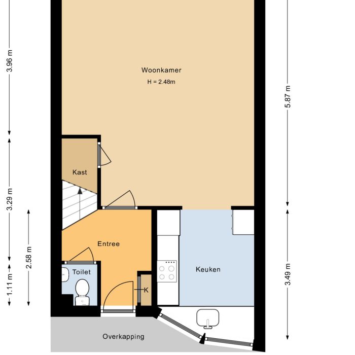
Zoek jij een licht, goed ingedeeld huis mét garage, in een fijne gezinswijk? Dan voel je je meteen thuis aan de Persijnlaan 42 in Purmerend — een verrassend ruime, gasloze woning met een slimme indeling en volop comfort. Rust, ruimte en alles binnen handbereik De Persijnlaan ligt in een van die buurten waar je je meteen op je gemak voelt. Denk aan brede straten, veel groen en rustige stoepen waar kinderen veilig kunnen spelen. De wijk is geliefd bij jonge gezinnen — en dat is niet voor niets. Je woont hier aan de rand van de wijk Purmer-Zuid, op een paar minuten lopen van de bushalte — en binnen no time sta je in hartje Amsterdam. Ook winkels, scholen, en de sportclubs en natuur zijn dichtbij. Alles wat je nodig hebt, ligt gewoon om de hoek. Slim ingedeeld en verrassend ruim Je komt binnen via de overkapte entree — ideaal op regenachtige dagen. In de hal vind je het toilet, een handige trapkast en de trap naar boven. De lichte keuken aan de voorzijde is een fijne plek voor je eerste kop koffie, met uitzicht op de straat. De subtiele erker geeft net dat beetje extra charme. Groot, compleet én vernieuwd in 2016 — deze keuken is echt een fijne plek om de dag te beginnen. Dankzij de open opstelling loopt de ruimte naadloos over in de tuingerichte woonkamer, waar het grote raam zorgt voor veel daglicht en een mooi zicht op de tuin. Hier is plek genoeg voor een grote eettafel én een gezellige zithoek. Op de vloer ligt een mooie plavuizen vloer in houtmotief. Boven zijn drie slaapkamers, stuk voor stuk goed van formaat. Dankzij de dakopbouw is er extra ruimte gecreeërd op de deze verdieping — ideaal voor een volwaardig gezinshuis. De badkamer is functioneel en compleet, met een tweede toilet, wastafel en een fijne douche. De zolderverdieping verrast: een ruime vierde slaapkamer én veel bergruimte achter knieschotten en in een vaste kast. Perfect als logeerkamer, werkkamer of tienerplek. Zonnige tuin met veel mogelijkheden en eigen garage Stap je via de woonkamer naar buiten, dan valt meteen de fijne ligging op. De achtertuin ligt op het zuidoosten en door de open ligging geniet je hier de hele dag van de zon — van de eerste koffie in de ochtend tot de borrel in de late middag. Er is genoeg ruimte voor een loungehoek of een trampoline. En als kers op de taart: achterin de tuin staat een eigen garage. Ideaal voor je fietsen, gereedschap of gewoon als extra bergruimte. Nog even alles op een rijtje: * Ruime eengezinswoning met verrassende indeling * 110 m2 woonoppervlakte * Gelegen in een kindvriendelijke wijk in Purmer-Zuid * Erker aan de voorzijde en vernieuwde keuken (2016) * Vier ruime slaapkamers dankzij dakopbouw * Eigen garage achterin de tuin * Gasloos, goed geïsoleerd én energielabel A * Voortdurende erfpacht waarbij de canon voor altijd is afgekocht Nieuwsgierig? Kom kijken! Een licht, ruim huis met vier slaapkamers, zonnige tuin, garage én energielabel A — in de gewilde wijk Purmer-Zuid. Of je nu ruimte zoekt voor je gezin, een fijne thuiswerkplek of gewoon een toekomstbestendig huis zonder gedoe: dit is 'm. Bel snel voor een bezichtiging en ervaar zelf het comfort en de sfeer van de Persijnlaan 42. Bekijk ook zeker de woningvideo voor een eerste indruk.

Kom in contact met Laura Herlé-Ruys
Status
Verkocht
Vraagprijs
€ 475.000,-
Woonoppervlakte
110 m2
Perceeloppervlakte
141 m2
Externe bergruimte
16 m2
Gebouwgebonden buitenruimte
4 m2
Overige inpandige ruimte
0 m2
Inhoud
387 m3
Aantal kamers
5
Aantal slaapkamers
4
Vraagprijs: € 475.000,-
4 slaapkamers
Energielabel A
110 m2 woonoppervlak
141 m2 perceeloppervlak

Kom in contact met Laura Herlé-Ruys
[toon_buurt_intro]
Lorem ipsum dolor sit amet, consetetur sadipscing elitr, sed diam nonumy eirmod tempor invidunt ut labore et dolore magna aliquyam erat, sed diam voluptua. At vero eos et accusam et justo duo dolores et ea rebum. Stet clita kasd gubergren, no sea takimata sanctus est Lorem ipsum dolor sit amet. Lorem ipsum



















































Zoek jij een licht, goed ingedeeld huis mét garage, in een fijne gezinswijk? Dan voel je je meteen thuis aan de Persijnlaan 42 in Purmerend — een verrassend ruime, gasloze woning met een slimme indeling en volop comfort. Rust, ruimte en alles binnen handbereik De Persijnlaan ligt in een van die buurten waar je je meteen op je gemak voelt. Denk aan brede straten, veel groen en rustige stoepen waar kinderen veilig kunnen spelen. De wijk is geliefd bij jonge gezinnen — en dat is niet voor niets. Je woont hier aan de rand van de wijk Purmer-Zuid, op een paar minuten lopen van de bushalte — en binnen no time sta je in hartje Amsterdam. Ook winkels, scholen, en de sportclubs en natuur zijn dichtbij. Alles wat je nodig hebt, ligt gewoon om de hoek. Slim ingedeeld en verrassend ruim Je komt binnen via de overkapte entree — ideaal op regenachtige dagen. In de hal vind je het toilet, een handige trapkast en de trap naar boven. De lichte keuken aan de voorzijde is een fijne plek voor je eerste kop koffie, met uitzicht op de straat. De subtiele erker geeft net dat beetje extra charme. Groot, compleet én vernieuwd in 2016 — deze keuken is echt een fijne plek om de dag te beginnen. Dankzij de open opstelling loopt de ruimte naadloos over in de tuingerichte woonkamer, waar het grote raam zorgt voor veel daglicht en een mooi zicht op de tuin. Hier is plek genoeg voor een grote eettafel én een gezellige zithoek. Op de vloer ligt een mooie plavuizen vloer in houtmotief. Boven zijn drie slaapkamers, stuk voor stuk goed van formaat. Dankzij de dakopbouw is er extra ruimte gecreeërd op de deze verdieping — ideaal voor een volwaardig gezinshuis. De badkamer is functioneel en compleet, met een tweede toilet, wastafel en een fijne douche. De zolderverdieping verrast: een ruime vierde slaapkamer én veel bergruimte achter knieschotten en in een vaste kast. Perfect als logeerkamer, werkkamer of tienerplek. Zonnige tuin met veel mogelijkheden en eigen garage Stap je via de woonkamer naar buiten, dan valt meteen de fijne ligging op. De achtertuin ligt op het zuidoosten en door de open ligging geniet je hier de hele dag van de zon — van de eerste koffie in de ochtend tot de borrel in de late middag. Er is genoeg ruimte voor een loungehoek of een trampoline. En als kers op de taart: achterin de tuin staat een eigen garage. Ideaal voor je fietsen, gereedschap of gewoon als extra bergruimte. Nog even alles op een rijtje: * Ruime eengezinswoning met verrassende indeling * 110 m2 woonoppervlakte * Gelegen in een kindvriendelijke wijk in Purmer-Zuid * Erker aan de voorzijde en vernieuwde keuken (2016) * Vier ruime slaapkamers dankzij dakopbouw * Eigen garage achterin de tuin * Gasloos, goed geïsoleerd én energielabel A * Voortdurende erfpacht waarbij de canon voor altijd is afgekocht Nieuwsgierig? Kom kijken! Een licht, ruim huis met vier slaapkamers, zonnige tuin, garage én energielabel A — in de gewilde wijk Purmer-Zuid. Of je nu ruimte zoekt voor je gezin, een fijne thuiswerkplek of gewoon een toekomstbestendig huis zonder gedoe: dit is ‘m. Bel snel voor een bezichtiging en ervaar zelf het comfort en de sfeer van de Persijnlaan 42. Bekijk ook zeker de woningvideo voor een eerste indruk.
Zoek jij een licht, goed ingedeeld huis mét garage, in een fijne gezinswijk? Dan voel je je meteen thuis aan de Persijnlaan 42 in Purmerend — een verrassend ruime, gasloze woning met een slimme indeling en volop comfort. Rust, ruimte en alles binnen handbereik De Persijnlaan ligt in een van die buurten waar je je meteen op je gemak voelt. Denk aan brede straten, veel groen en rustige stoepen waar kinderen veilig kunnen spelen. De wijk is geliefd bij jonge gezinnen — en dat is niet voor niets. Je woont hier aan de rand van de wijk Purmer-Zuid, op een paar minuten lopen van de bushalte — en binnen no time sta je in hartje Amsterdam. Ook winkels, scholen, en de sportclubs en natuur zijn dichtbij. Alles wat je nodig hebt, ligt gewoon om de hoek. Slim ingedeeld en verrassend ruim Je komt binnen via de overkapte entree — ideaal op regenachtige dagen. In de hal vind je het toilet, een handige trapkast en de trap naar boven. De lichte keuken aan de voorzijde is een fijne plek voor je eerste kop koffie, met uitzicht op de straat. De subtiele erker geeft net dat beetje extra charme. Groot, compleet én vernieuwd in 2016 — deze keuken is echt een fijne plek om de dag te beginnen. Dankzij de open opstelling loopt de ruimte naadloos over in de tuingerichte woonkamer, waar het grote raam zorgt voor veel daglicht en een mooi zicht op de tuin. Hier is plek genoeg voor een grote eettafel én een gezellige zithoek. Op de vloer ligt een mooie plavuizen vloer in houtmotief. Boven zijn drie slaapkamers, stuk voor stuk goed van formaat. Dankzij de dakopbouw is er extra ruimte gecreeërd op de deze verdieping — ideaal voor een volwaardig gezinshuis. De badkamer is functioneel en compleet, met een tweede toilet, wastafel en een fijne douche. De zolderverdieping verrast: een ruime vierde slaapkamer én veel bergruimte achter knieschotten en in een vaste kast. Perfect als logeerkamer, werkkamer of tienerplek. Zonnige tuin met veel mogelijkheden en eigen garage Stap je via de woonkamer naar buiten, dan valt meteen de fijne ligging op. De achtertuin ligt op het zuidoosten en door de open ligging geniet je hier de hele dag van de zon — van de eerste koffie in de ochtend tot de borrel in de late middag. Er is genoeg ruimte voor een loungehoek of een trampoline. En als kers op de taart: achterin de tuin staat een eigen garage. Ideaal voor je fietsen, gereedschap of gewoon als extra bergruimte. Nog even alles op een rijtje: * Ruime eengezinswoning met verrassende indeling * 110 m2 woonoppervlakte * Gelegen in een kindvriendelijke wijk in Purmer-Zuid * Erker aan de voorzijde en vernieuwde keuken (2016) * Vier ruime slaapkamers dankzij dakopbouw * Eigen garage achterin de tuin * Gasloos, goed geïsoleerd én energielabel A * Voortdurende erfpacht waarbij de canon voor altijd is afgekocht Nieuwsgierig? Kom kijken! Een licht, ruim huis met vier slaapkamers, zonnige tuin, garage én energielabel A — in de gewilde wijk Purmer-Zuid. Of je nu ruimte zoekt voor je gezin, een fijne thuiswerkplek of gewoon een toekomstbestendig huis zonder gedoe: dit is ‘m. Bel snel voor een bezichtiging en ervaar zelf het comfort en de sfeer van de Persijnlaan 42. Bekijk ook zeker de woningvideo voor een eerste indruk.