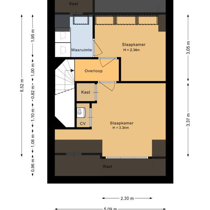
Dit is er zo één waar alles klopt. Soms stap je een woning binnen en voel je het meteen: hier is met zorg gewoond. Alles klopt. Alles is netjes. Alles is modern. Deze woning combineert ruimte, comfort en een hoogwaardige afwerking met een ligging in een fijne wijk waar je iedere dag met plezier thuiskomt. Binnenkomen voelt hier meteen goed. Via de entree kom je in de hal met het moderne toilet (gerenoveerd in 2024) – strak, fris en helemaal van nu. De uitgebouwde woonkamer is heerlijk ruim en licht. De tegelvloer met vloerverwarming (2016) zorgt voor comfort in elk seizoen. Wanden en plafonds zijn in 2021 volledig strak gestuukt, en dat zie én voel je. Alles is keurig afgewerkt en volledig instapklaar. Een keuken waar je blij van wordt! De keuken (2016) is geplaatst in een rechte opstelling aan twee zijden: praktisch én gezellig. Een fijne plek om te koken en samen te zijn. De keuken is compleet uitgerust met een 5-pits kookplaat, oven, magnetron, vaatwasser, koelkast en vriezer. Dit is zo’n keuken waar je moeiteloos een snelle doordeweekse maaltijd bereidt, maar ook uitgebreid kunt koken voor vrienden en familie. Loop je mee naar boven? De trap is stijlvol bekleed en voorzien van subtiele verlichting, een echte sfeermaker. Op de eerste verdieping vind je drie ruime slaapkamers en een prachtige, in 2024 vernieuwde badkamer. Alle slaapkamers zijn afgewerkt met laminaatvloeren, strak afgewerkte wanden en gespoten plafonds. Wat direct opvalt is het fijne, natuurlijke licht in iedere kamer precies wat je wilt. De badkamer is echt een parel: modern, stijlvol en compleet uitgevoerd met een inloopdouche, toilet en wastafelmeubel en voorzien van heerlijke vloerverwarming. Tweede verdieping: nóg meer ruimte Dankzij de geplaatste dakkapel aan de voorzijde en dakserre aan de achterzijde is hier verrassend veel extra ruimte ontstaan. Op deze verdieping vind je maar liefst twee extra kamers, een wasruimte én volop bergruimte. De hoofdslaapkamer is in 2023 vernieuwd en voorzien van een dakkapel. Dit is pas lekker wakker worden. Daarnaast is er nog een vijfde kamer ja, je leest het goed. Perfect als extra slaapkamer, werkkamer of logeerkamer. De grote kunststof dakramen zorgen ook hier weer voor een fijne lichtinval. Naast de waskamer bevindt zich op deze verdieping tevens de technische ruimte, netjes weggewerkt. Hier vind je de CV-installatie, WTW-unit én de extra aansluitingen voor wasmachine en droger. Deze fijne woning ligt aan een slootje in een autovrije straat in de geliefde nieuwbouwwijk De Keyser. Hier woon je rustig en kindvriendelijk, met volop speelruimte voor de deur. Het gezellige centrum van Middenbeemster ligt op korte afstand en biedt alles wat je nodig hebt voor het dagelijks leven: een Albert Heijn, bakker, slager, leuke restaurants, een café, snackbar, bloemenzaak en kruidvat. Ook aan gezinnen is gedacht met basisschool De Blauwe Morgenster, kinderopvang en sportcentrum De Kloek om de hoek. De ligging is ideaal: binnen tien minuten sta je in Purmerend en in circa dertig minuten bereik je Amsterdam. Via de A7 rijd je eenvoudig richting Hoorn of juist naar Zaandam en Amsterdam. Daarnaast is er een goede busverbinding naar Waterland en Groot-Amsterdam. Waarom je hier wilt wonen - Instapklaar – spullen pakken en verhuizen - Moderne keuken (2016) - Luxe badkamer (2024) - Uitgebouwde woonkamer - Vloerverwarming op de begane grond en badkamer - Vijf slaapkamers - Gelegen op een fantastische plek in Middenbeemster
Beste toekomstige bewoners,
Met veel plezier hebben wij 4,5 jaar in dit huis gewoond.
Vanaf het eerste moment voelden we ons hier thuis, mede dankzij de hechte en gezellige buurt.
Er worden regelmatig leuke activiteiten georganiseerd, zoals het traditionele eindejaarsvuur met aansluitend de verlichte trekkertocht.
Ons huis ligt aan een rustige straat, direct aan het water.
Dat geeft niet alleen een prachtig uitzicht, maar ook een gevoel van rust en ruimte.
De buren zijn vriendelijk en betrokken en altijd bereid om te helpen wanneer dat nodig is.
Veel woonplezier van jullie nieuwe buren!
Robin, Hubert, Nova en Tobias.

Kom in contact met Menno van Diepen
Status
Verkocht
Vraagprijs
€ 575.000,-
Woonoppervlakte
128 m2
Perceeloppervlakte
130 m2
Externe bergruimte
5 m2
Gebouwgebonden buitenruimte
0 m2
Overige inpandige ruimte
0 m2
Inhoud
454 m3
Aantal kamers
6
Aantal slaapkamers
5
Vraagprijs: € 575.000,-
5 slaapkamers
Energielabel A
128 m2 woonoppervlak
130 m2 perceeloppervlak

Kom in contact met Menno van Diepen
[toon_buurt_intro]
Lorem ipsum dolor sit amet, consetetur sadipscing elitr, sed diam nonumy eirmod tempor invidunt ut labore et dolore magna aliquyam erat, sed diam voluptua. At vero eos et accusam et justo duo dolores et ea rebum. Stet clita kasd gubergren, no sea takimata sanctus est Lorem ipsum dolor sit amet. Lorem ipsum

































































Dit is er zo één waar alles klopt. Soms stap je een woning binnen en voel je het meteen: hier is met zorg gewoond. Alles klopt. Alles is netjes. Alles is modern. Deze woning combineert ruimte, comfort en een hoogwaardige afwerking met een ligging in een fijne wijk waar je iedere dag met plezier thuiskomt. Binnenkomen voelt hier meteen goed. Via de entree kom je in de hal met het moderne toilet (gerenoveerd in 2024) – strak, fris en helemaal van nu. De uitgebouwde woonkamer is heerlijk ruim en licht. De tegelvloer met vloerverwarming (2016) zorgt voor comfort in elk seizoen. Wanden en plafonds zijn in 2021 volledig strak gestuukt, en dat zie én voel je. Alles is keurig afgewerkt en volledig instapklaar. Een keuken waar je blij van wordt! De keuken (2016) is geplaatst in een rechte opstelling aan twee zijden: praktisch én gezellig. Een fijne plek om te koken en samen te zijn. De keuken is compleet uitgerust met een 5-pits kookplaat, oven, magnetron, vaatwasser, koelkast en vriezer. Dit is zo’n keuken waar je moeiteloos een snelle doordeweekse maaltijd bereidt, maar ook uitgebreid kunt koken voor vrienden en familie. Loop je mee naar boven? De trap is stijlvol bekleed en voorzien van subtiele verlichting, een echte sfeermaker. Op de eerste verdieping vind je drie ruime slaapkamers en een prachtige, in 2024 vernieuwde badkamer. Alle slaapkamers zijn afgewerkt met laminaatvloeren, strak afgewerkte wanden en gespoten plafonds. Wat direct opvalt is het fijne, natuurlijke licht in iedere kamer precies wat je wilt. De badkamer is echt een parel: modern, stijlvol en compleet uitgevoerd met een inloopdouche, toilet en wastafelmeubel en voorzien van heerlijke vloerverwarming. Tweede verdieping: nóg meer ruimte Dankzij de geplaatste dakkapel aan de voorzijde en dakserre aan de achterzijde is hier verrassend veel extra ruimte ontstaan. Op deze verdieping vind je maar liefst twee extra kamers, een wasruimte én volop bergruimte. De hoofdslaapkamer is in 2023 vernieuwd en voorzien van een dakkapel. Dit is pas lekker wakker worden. Daarnaast is er nog een vijfde kamer ja, je leest het goed. Perfect als extra slaapkamer, werkkamer of logeerkamer. De grote kunststof dakramen zorgen ook hier weer voor een fijne lichtinval. Naast de waskamer bevindt zich op deze verdieping tevens de technische ruimte, netjes weggewerkt. Hier vind je de CV-installatie, WTW-unit én de extra aansluitingen voor wasmachine en droger. Deze fijne woning ligt aan een slootje in een autovrije straat in de geliefde nieuwbouwwijk De Keyser. Hier woon je rustig en kindvriendelijk, met volop speelruimte voor de deur. Het gezellige centrum van Middenbeemster ligt op korte afstand en biedt alles wat je nodig hebt voor het dagelijks leven: een Albert Heijn, bakker, slager, leuke restaurants, een café, snackbar, bloemenzaak en kruidvat. Ook aan gezinnen is gedacht met basisschool De Blauwe Morgenster, kinderopvang en sportcentrum De Kloek om de hoek. De ligging is ideaal: binnen tien minuten sta je in Purmerend en in circa dertig minuten bereik je Amsterdam. Via de A7 rijd je eenvoudig richting Hoorn of juist naar Zaandam en Amsterdam. Daarnaast is er een goede busverbinding naar Waterland en Groot-Amsterdam. Waarom je hier wilt wonen – Instapklaar – spullen pakken en verhuizen – Moderne keuken (2016) – Luxe badkamer (2024) – Uitgebouwde woonkamer – Vloerverwarming op de begane grond en badkamer – Vijf slaapkamers – Gelegen op een fantastische plek in Middenbeemster
Dit is er zo één waar alles klopt. Soms stap je een woning binnen en voel je het meteen: hier is met zorg gewoond. Alles klopt. Alles is netjes. Alles is modern. Deze woning combineert ruimte, comfort en een hoogwaardige afwerking met een ligging in een fijne wijk waar je iedere dag met plezier thuiskomt. Binnenkomen voelt hier meteen goed. Via de entree kom je in de hal met het moderne toilet (gerenoveerd in 2024) – strak, fris en helemaal van nu. De uitgebouwde woonkamer is heerlijk ruim en licht. De tegelvloer met vloerverwarming (2016) zorgt voor comfort in elk seizoen. Wanden en plafonds zijn in 2021 volledig strak gestuukt, en dat zie én voel je. Alles is keurig afgewerkt en volledig instapklaar. Een keuken waar je blij van wordt! De keuken (2016) is geplaatst in een rechte opstelling aan twee zijden: praktisch én gezellig. Een fijne plek om te koken en samen te zijn. De keuken is compleet uitgerust met een 5-pits kookplaat, oven, magnetron, vaatwasser, koelkast en vriezer. Dit is zo’n keuken waar je moeiteloos een snelle doordeweekse maaltijd bereidt, maar ook uitgebreid kunt koken voor vrienden en familie. Loop je mee naar boven? De trap is stijlvol bekleed en voorzien van subtiele verlichting, een echte sfeermaker. Op de eerste verdieping vind je drie ruime slaapkamers en een prachtige, in 2024 vernieuwde badkamer. Alle slaapkamers zijn afgewerkt met laminaatvloeren, strak afgewerkte wanden en gespoten plafonds. Wat direct opvalt is het fijne, natuurlijke licht in iedere kamer precies wat je wilt. De badkamer is echt een parel: modern, stijlvol en compleet uitgevoerd met een inloopdouche, toilet en wastafelmeubel en voorzien van heerlijke vloerverwarming. Tweede verdieping: nóg meer ruimte Dankzij de geplaatste dakkapel aan de voorzijde en dakserre aan de achterzijde is hier verrassend veel extra ruimte ontstaan. Op deze verdieping vind je maar liefst twee extra kamers, een wasruimte én volop bergruimte. De hoofdslaapkamer is in 2023 vernieuwd en voorzien van een dakkapel. Dit is pas lekker wakker worden. Daarnaast is er nog een vijfde kamer ja, je leest het goed. Perfect als extra slaapkamer, werkkamer of logeerkamer. De grote kunststof dakramen zorgen ook hier weer voor een fijne lichtinval. Naast de waskamer bevindt zich op deze verdieping tevens de technische ruimte, netjes weggewerkt. Hier vind je de CV-installatie, WTW-unit én de extra aansluitingen voor wasmachine en droger. Deze fijne woning ligt aan een slootje in een autovrije straat in de geliefde nieuwbouwwijk De Keyser. Hier woon je rustig en kindvriendelijk, met volop speelruimte voor de deur. Het gezellige centrum van Middenbeemster ligt op korte afstand en biedt alles wat je nodig hebt voor het dagelijks leven: een Albert Heijn, bakker, slager, leuke restaurants, een café, snackbar, bloemenzaak en kruidvat. Ook aan gezinnen is gedacht met basisschool De Blauwe Morgenster, kinderopvang en sportcentrum De Kloek om de hoek. De ligging is ideaal: binnen tien minuten sta je in Purmerend en in circa dertig minuten bereik je Amsterdam. Via de A7 rijd je eenvoudig richting Hoorn of juist naar Zaandam en Amsterdam. Daarnaast is er een goede busverbinding naar Waterland en Groot-Amsterdam. Waarom je hier wilt wonen – Instapklaar – spullen pakken en verhuizen – Moderne keuken (2016) – Luxe badkamer (2024) – Uitgebouwde woonkamer – Vloerverwarming op de begane grond en badkamer – Vijf slaapkamers – Gelegen op een fantastische plek in Middenbeemster