Een buitenkans! Een buitenkans is het zeker om in deze fijne twee-onder-een-kapwoning te gaan wonen aan Kantbeugel 44 in De Goorn. Je beschikt hier over een eigen garage, parkeergelegenheid op eigen erf én een heel leuk huis! We vertellen je graag meer over de woning en het dorp. De Goorn is een fijn dorp met de rust van het platteland, maar ook de voordelen van de stad dichtbij. Binnen 10 minuten sta je in het centrum van Hoorn, en met de auto ben je snel op de snelweg richting Amsterdam. Je hebt in De Goorn alles wat je nodig hebt: winkelcentrum De Vijverhof met twee supermarkten, een slager, een bakker, en nog veel meer andere winkels, zijn allemaal op loopafstand gelegen van het huis. Een echte aanrader is Bloemenatelier Sophie, waar je de prachtigste boeketten kunt halen. Dit is de ideale plek om te wonen als je op zoek bent naar ruimte en rust, maar toch de stad binnen handbereik wilt hebben. Parkeren doe je op eigen erf of in de rustige straat waar alleen bestemmingsverkeer komt. Via de voordeur kom je in de hal. Vanuit hier heb je toegang tot het toilet, de trapopgang naar de eerste verdieping en de woonkamer met keuken. De woonkamer heeft veel raampartijen aan de voorzijde dankzij de erker, wat zorgt voor een fijne lichtinval. De keuken bevindt zich aan de achterzijde van het huis en beschikt naast voldoende kastruimte over alle inbouwapparatuur die je je maar kunt wensen. Vanuit de keuken heb je toegang tot de bijkeuken. Op de eerste verdieping zijn er twee ruime slaapkamers. De slaapkamer aan de achterzijde heeft een dakkapel waardoor deze extra ruim is. De badkamer is uitgerust met een inloopdouche, toilet en wastafel. Op de tweede verdieping is er een ruime overloop met plek voor de wasmachine en droger, en daarnaast een derde ruime slaapkamer. De garage is zowel via de voorzijde als via de tuin te betreden en biedt naast ruimte voor een auto ook voldoende bergruimte. De tuin is lekker ruim en dankzij de ligging op het zuidoosten vind je hier altijd wel een plekje in de zon. Alles op een rij: - Garage en parkeren op eigen erf - Zonnige achtertuin gelegen op het zuidoosten - Op loopafstand van alle voorzieningen Grijp jij deze buitenkans aan Kantbeugel 44 in De Goorn? Maak dan snel een afspraak voor een uitgebreide rondleiding!
Deelnemer aan het NVM OPEN HUIS en MVA HUIZENTOCHT van 28 maart a.s.!!!
Je kunt deze woning zonder afspraak bezichtigen op 28 maart a.s. tussen 11.00 uur en 15.00 uur.
Participant in the NVM OPEN HOUSE and MVA HOUSE TOUR on March 28!!!
You can view this property without an appointment on March 28 between 11:00 AM and 3:00 PM.
Een buitenkans!
Een buitenkans is het zeker om in deze fijne twee-onder-een-kapwoning te gaan wonen aan Kantbeugel 44 in De Goorn. Je beschikt hier over een eigen garage, parkeergelegenheid op eigen erf én een heel leuk huis!
We vertellen je graag meer over de woning en het dorp.
De Goorn is een fijn dorp met de rust van het platteland, maar ook de voordelen van de stad dichtbij. Binnen 10 minuten sta je in het centrum van Hoorn, en met de auto ben je snel op de snelweg richting Amsterdam. Je hebt in De Goorn alles wat je nodig hebt: winkelcentrum De Vijverhof met twee supermarkten, een slager, een bakker, en nog veel meer andere winkels, zijn allemaal op loopafstand gelegen van het huis. Een echte aanrader is Bloemenatelier Sophie, waar je de prachtigste boeketten kunt halen. Dit is de ideale plek om te wonen als je op zoek bent naar ruimte en rust, maar toch de stad binnen handbereik wilt hebben.
Parkeren doe je op eigen erf of in de rustige straat waar alleen bestemmingsverkeer komt.
Via de voordeur kom je in de hal. Vanuit hier heb je toegang tot het toilet, de trapopgang naar de eerste verdieping en de woonkamer met keuken.
De woonkamer heeft veel raampartijen aan de voorzijde dankzij de erker, wat zorgt voor een fijne lichtinval.
De keuken bevindt zich aan de achterzijde van het huis en beschikt naast voldoende kastruimte over alle inbouwapparatuur die je je maar kunt wensen. Vanuit de keuken heb je toegang tot de bijkeuken.
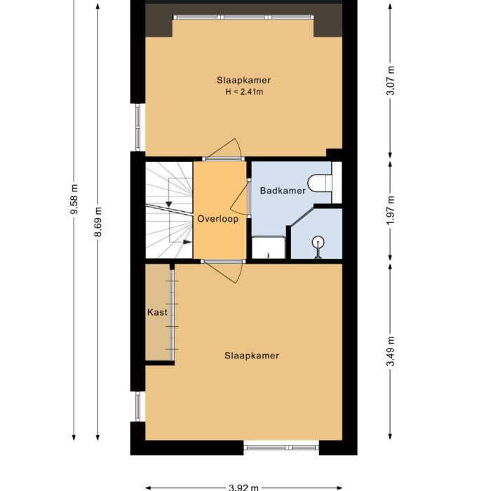
Op de eerste verdieping zijn er twee ruime slaapkamers. De slaapkamer aan de achterzijde heeft een dakkapel waardoor deze extra ruim is.
De badkamer is uitgerust met een inloopdouche, toilet en wastafel.
Op de tweede verdieping is er een ruime overloop met plek voor de wasmachine en droger, en daarnaast een derde ruime slaapkamer.
De garage is zowel via de voorzijde als via de tuin te betreden en biedt naast ruimte voor een auto ook voldoende bergruimte.
De tuin is lekker ruim en dankzij de ligging op het zuidoosten vind je hier altijd wel een plekje in de zon.
Alles op een rij:
- Garage en parkeren op eigen erf
- Zonnige achtertuin gelegen op het zuidoosten
- Op loopafstand van alle voorzieningen
Grijp jij deze buitenkans aan Kantbeugel 44 in De Goorn?
Maak dan snel een afspraak voor een uitgebreide rondleiding!

Kom in contact met Michael Snoey Kiewit-De Jong
Status
Beschikbaar
Vraagprijs
€ 425.000,-
Woonoppervlakte
90 m2
Perceeloppervlakte
182 m2
Externe bergruimte
0 m2
Gebouwgebonden buitenruimte
0 m2
Overige inpandige ruimte
19 m2
Inhoud
389 m3
Aantal kamers
4
Aantal slaapkamers
3
Vraagprijs: € 425.000,-
3 slaapkamers
Energielabel C
90 m2 woonoppervlak
182 m2 perceeloppervlak

Kom in contact met Michael Snoey Kiewit-De Jong
[toon_buurt_intro]
Lorem ipsum dolor sit amet, consetetur sadipscing elitr, sed diam nonumy eirmod tempor invidunt ut labore et dolore magna aliquyam erat, sed diam voluptua. At vero eos et accusam et justo duo dolores et ea rebum. Stet clita kasd gubergren, no sea takimata sanctus est Lorem ipsum dolor sit amet. Lorem ipsum























































Een buitenkans! Een buitenkans is het zeker om in deze fijne twee-onder-een-kapwoning te gaan wonen aan Kantbeugel 44 in De Goorn. Je beschikt hier over een eigen garage, parkeergelegenheid op eigen erf én een heel leuk huis! We vertellen je graag meer over de woning en het dorp. De Goorn is een fijn dorp met de rust van het platteland, maar ook de voordelen van de stad dichtbij. Binnen 10 minuten sta je in het centrum van Hoorn, en met de auto ben je snel op de snelweg richting Amsterdam. Je hebt in De Goorn alles wat je nodig hebt: winkelcentrum De Vijverhof met twee supermarkten, een slager, een bakker, en nog veel meer andere winkels, zijn allemaal op loopafstand gelegen van het huis. Een echte aanrader is Bloemenatelier Sophie, waar je de prachtigste boeketten kunt halen. Dit is de ideale plek om te wonen als je op zoek bent naar ruimte en rust, maar toch de stad binnen handbereik wilt hebben. Parkeren doe je op eigen erf of in de rustige straat waar alleen bestemmingsverkeer komt. Via de voordeur kom je in de hal. Vanuit hier heb je toegang tot het toilet, de trapopgang naar de eerste verdieping en de woonkamer met keuken. De woonkamer heeft veel raampartijen aan de voorzijde dankzij de erker, wat zorgt voor een fijne lichtinval. De keuken bevindt zich aan de achterzijde van het huis en beschikt naast voldoende kastruimte over alle inbouwapparatuur die je je maar kunt wensen. Vanuit de keuken heb je toegang tot de bijkeuken. Op de eerste verdieping zijn er twee ruime slaapkamers. De slaapkamer aan de achterzijde heeft een dakkapel waardoor deze extra ruim is. De badkamer is uitgerust met een inloopdouche, toilet en wastafel. Op de tweede verdieping is er een ruime overloop met plek voor de wasmachine en droger, en daarnaast een derde ruime slaapkamer. De garage is zowel via de voorzijde als via de tuin te betreden en biedt naast ruimte voor een auto ook voldoende bergruimte. De tuin is lekker ruim en dankzij de ligging op het zuidoosten vind je hier altijd wel een plekje in de zon. Alles op een rij: – Garage en parkeren op eigen erf – Zonnige achtertuin gelegen op het zuidoosten – Op loopafstand van alle voorzieningen Grijp jij deze buitenkans aan Kantbeugel 44 in De Goorn? Maak dan snel een afspraak voor een uitgebreide rondleiding!
Een buitenkans! Een buitenkans is het zeker om in deze fijne twee-onder-een-kapwoning te gaan wonen aan Kantbeugel 44 in De Goorn. Je beschikt hier over een eigen garage, parkeergelegenheid op eigen erf én een heel leuk huis! We vertellen je graag meer over de woning en het dorp. De Goorn is een fijn dorp met de rust van het platteland, maar ook de voordelen van de stad dichtbij. Binnen 10 minuten sta je in het centrum van Hoorn, en met de auto ben je snel op de snelweg richting Amsterdam. Je hebt in De Goorn alles wat je nodig hebt: winkelcentrum De Vijverhof met twee supermarkten, een slager, een bakker, en nog veel meer andere winkels, zijn allemaal op loopafstand gelegen van het huis. Een echte aanrader is Bloemenatelier Sophie, waar je de prachtigste boeketten kunt halen. Dit is de ideale plek om te wonen als je op zoek bent naar ruimte en rust, maar toch de stad binnen handbereik wilt hebben. Parkeren doe je op eigen erf of in de rustige straat waar alleen bestemmingsverkeer komt. Via de voordeur kom je in de hal. Vanuit hier heb je toegang tot het toilet, de trapopgang naar de eerste verdieping en de woonkamer met keuken. De woonkamer heeft veel raampartijen aan de voorzijde dankzij de erker, wat zorgt voor een fijne lichtinval. De keuken bevindt zich aan de achterzijde van het huis en beschikt naast voldoende kastruimte over alle inbouwapparatuur die je je maar kunt wensen. Vanuit de keuken heb je toegang tot de bijkeuken. Op de eerste verdieping zijn er twee ruime slaapkamers. De slaapkamer aan de achterzijde heeft een dakkapel waardoor deze extra ruim is. De badkamer is uitgerust met een inloopdouche, toilet en wastafel. Op de tweede verdieping is er een ruime overloop met plek voor de wasmachine en droger, en daarnaast een derde ruime slaapkamer. De garage is zowel via de voorzijde als via de tuin te betreden en biedt naast ruimte voor een auto ook voldoende bergruimte. De tuin is lekker ruim en dankzij de ligging op het zuidoosten vind je hier altijd wel een plekje in de zon. Alles op een rij: – Garage en parkeren op eigen erf – Zonnige achtertuin gelegen op het zuidoosten – Op loopafstand van alle voorzieningen Grijp jij deze buitenkans aan Kantbeugel 44 in De Goorn? Maak dan snel een afspraak voor een uitgebreide rondleiding!