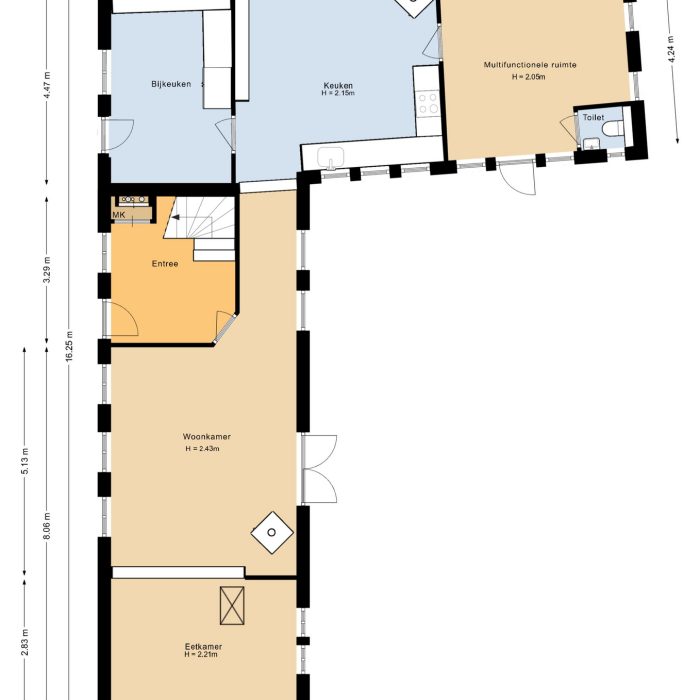
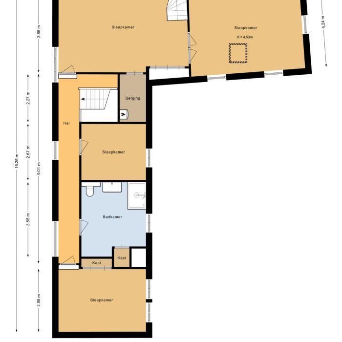
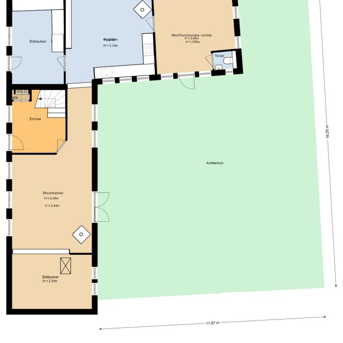
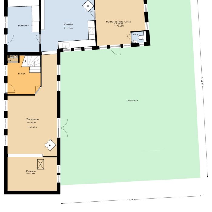
Wonen in een uniek object uit 1723! Dit kan aan vaarwater in het centrum van Oosthuizen! Welkom in een huis waar geschiedenis, charme en ruimte samenkomen op een plek die je hart direct verovert. Raadhuisstraat 58 is geen dertien-in-een-dozijn woning. Deze 'bakkerij' uit 1723 ademt sfeer, biedt verrassend veel ruimte en ligt op een droomlocatie aan open vaarwater, midden in het gezellige centrum van Oosthuizen. Hier geniet je van unieke details, een speelse indeling, meerdere multifunctionele ruimtes en een heerlijke tuin op het noordwesten. Een oude woning maar helemaal vernieuwd met zonnepanelen, isolatie en een warmtepomp ben je helemaal voorbereid op de toekomst. Klaar om verliefd te worden? Wonen in het historische hart van Oosthuizen Met de jachthaven in Edam, gezellige terrassen in het dorp en in de nabije omgeving en een directe vaarverbinding naar het Markermeer, is dit een plek voor echte levensgenieters. Oosthuizen combineert het dorpse gevoel met een rijk verenigingsleven, basisscholen, sportvoorzieningen en goede bereikbaarheid richting Hoorn, Purmerend en Amsterdam. Kortom: rustig wonen met alle gemakken dichtbij. Indeling: verrassend ruim en speels ingedeeld Begane grond Via de entree met trapopgang loop je de heerlijk ruime woonkamer binnen. Hoge ramen, een pelletkachel en speelse zichtlijnen zorgen voor een fijne sfeer. De eethoek sluit hier mooi op aan en hier is het luik naar de ruime kelder te vinden: perfect als wijnopslag of extra bergruimte. De halfopen keuken met landelijke uitstraling is voorzien van diverse inbouwapparatuur zoals een oven, inductiekookplaat en vaatwasser en kijkt uit op de achtertuin. Aansluitend vind je een praktische bijkeuken met koelkast en veel opslagruimte en een royale multifunctionele ruimte — ideaal als kantoor, hobbyruimte of speelkamer, hier is tevens het toilet te vinden. Eerste verdieping Op de eerste etage zijn maar liefst vier slaapkamers te vinden, elk met hun eigen karakter. De grootste kamer aan de achterzijde is riant met een hoog plafond en biedt een prachtig uitzicht. De badkamer is compleet met douche, toilet en wastafelmeubel. Er is een bergruimte te vinden waar de installatie te vinden is van de CV-ketel, hybride warmtepomp en warmtepomp(boiler). Dit is allemaal netjes weggewerkt in deze bergruimte. De hal geeft naast veel licht ook een karakteristiek gevoel met de fraaie raampartijen. Tweede verdieping De zolderverdieping is bereikbaar via een vaste trap en biedt volop mogelijkheden. Denk aan een logeerkamer, atelier of extra werkruimte. De overloop en zolderkamer zijn beide voorzien van dakramen die zorgen voor een fijne lichtinval. Kelder Onder de eethoek ligt een verrassend grote kelder van bijna 5 m². Ideaal voor voorraad, wijn, of gewoon als extra opslagruimte. Buitenleven aan het water De achtertuin ligt op het noordwesten en is daarmee een zonnige oase waar je de hele dag kunt genieten. Met een aanlegsteiger aan doorgaand vaarwater, is dit de perfecte plek voor wie houdt van bootje varen, suppen of gewoon lekker dobberen. De tuin biedt daarnaast volop privacy, groen en ruimte voor een loungehoek, buitenkeuken of speelplek voor de kids. Hier voel je je elke dag een beetje op vakantie. Nog even alles op een rijtje: - Karakteristiek pand uit 1723 met authentieke details; - Volledig gerenoveerd met zonnepanelen en hybride warmtepomp en warmtepomp(boiler) - Royale woonoppervlakte met 5 slaapkamers en multifunctionele ruimte - Woonkamer met pelletkachel en sfeervolle eethoek - Zonnige tuin op het noordwesten met aanlegsteiger aan open vaarwater - Gelegen in het hart van Oosthuizen met alle voorzieningen op loopafstand Laat je verrassen door de ruimte, sfeer en locatie van dit unieke huis. Plan een bezichtiging en ervaar zelf wat Raadhuisstraat 58 zo bijzonder maakt. Bekijk ook de woningvideo voor een eerste indruk.

Kom in contact met Menno van Diepen
Status
Beschikbaar
Vraagprijs
€ 895.000,-
Woonoppervlakte
223 m2
Perceeloppervlakte
275 m2
Externe bergruimte
4 m2
Gebouwgebonden buitenruimte
0 m2
Overige inpandige ruimte
5 m2
Inhoud
782 m3
Aantal kamers
8
Aantal slaapkamers
5
Vraagprijs: € 895.000,-
5 slaapkamers
Energielabel B
223 m2 woonoppervlak
275 m2 perceeloppervlak

Kom in contact met Menno van Diepen
[toon_buurt_intro]
Lorem ipsum dolor sit amet, consetetur sadipscing elitr, sed diam nonumy eirmod tempor invidunt ut labore et dolore magna aliquyam erat, sed diam voluptua. At vero eos et accusam et justo duo dolores et ea rebum. Stet clita kasd gubergren, no sea takimata sanctus est Lorem ipsum dolor sit amet. Lorem ipsum














































































Wonen in een uniek object uit 1723! Dit kan aan vaarwater in het centrum van Oosthuizen! Welkom in een huis waar geschiedenis, charme en ruimte samenkomen op een plek die je hart direct verovert. Raadhuisstraat 58 is geen dertien-in-een-dozijn woning. Deze ‘bakkerij’ uit 1723 ademt sfeer, biedt verrassend veel ruimte en ligt op een droomlocatie aan open vaarwater, midden in het gezellige centrum van Oosthuizen. Hier geniet je van unieke details, een speelse indeling, meerdere multifunctionele ruimtes en een heerlijke tuin op het noordwesten. Een oude woning maar helemaal vernieuwd met zonnepanelen, isolatie en een warmtepomp ben je helemaal voorbereid op de toekomst. Klaar om verliefd te worden? Wonen in het historische hart van Oosthuizen Met de jachthaven in Edam, gezellige terrassen in het dorp en in de nabije omgeving en een directe vaarverbinding naar het Markermeer, is dit een plek voor echte levensgenieters. Oosthuizen combineert het dorpse gevoel met een rijk verenigingsleven, basisscholen, sportvoorzieningen en goede bereikbaarheid richting Hoorn, Purmerend en Amsterdam. Kortom: rustig wonen met alle gemakken dichtbij. Indeling: verrassend ruim en speels ingedeeld Begane grond Via de entree met trapopgang loop je de heerlijk ruime woonkamer binnen. Hoge ramen, een pelletkachel en speelse zichtlijnen zorgen voor een fijne sfeer. De eethoek sluit hier mooi op aan en hier is het luik naar de ruime kelder te vinden: perfect als wijnopslag of extra bergruimte. De halfopen keuken met landelijke uitstraling is voorzien van diverse inbouwapparatuur zoals een oven, inductiekookplaat en vaatwasser en kijkt uit op de achtertuin. Aansluitend vind je een praktische bijkeuken met koelkast en veel opslagruimte en een royale multifunctionele ruimte — ideaal als kantoor, hobbyruimte of speelkamer, hier is tevens het toilet te vinden. Eerste verdieping Op de eerste etage zijn maar liefst vier slaapkamers te vinden, elk met hun eigen karakter. De grootste kamer aan de achterzijde is riant met een hoog plafond en biedt een prachtig uitzicht. De badkamer is compleet met douche, toilet en wastafelmeubel. Er is een bergruimte te vinden waar de installatie te vinden is van de CV-ketel, hybride warmtepomp en warmtepomp(boiler). Dit is allemaal netjes weggewerkt in deze bergruimte. De hal geeft naast veel licht ook een karakteristiek gevoel met de fraaie raampartijen. Tweede verdieping De zolderverdieping is bereikbaar via een vaste trap en biedt volop mogelijkheden. Denk aan een logeerkamer, atelier of extra werkruimte. De overloop en zolderkamer zijn beide voorzien van dakramen die zorgen voor een fijne lichtinval. Kelder Onder de eethoek ligt een verrassend grote kelder van bijna 5 m². Ideaal voor voorraad, wijn, of gewoon als extra opslagruimte. Buitenleven aan het water De achtertuin ligt op het noordwesten en is daarmee een zonnige oase waar je de hele dag kunt genieten. Met een aanlegsteiger aan doorgaand vaarwater, is dit de perfecte plek voor wie houdt van bootje varen, suppen of gewoon lekker dobberen. De tuin biedt daarnaast volop privacy, groen en ruimte voor een loungehoek, buitenkeuken of speelplek voor de kids. Hier voel je je elke dag een beetje op vakantie. Nog even alles op een rijtje: – Karakteristiek pand uit 1723 met authentieke details; – Volledig gerenoveerd met zonnepanelen en hybride warmtepomp en warmtepomp(boiler) – Royale woonoppervlakte met 5 slaapkamers en multifunctionele ruimte – Woonkamer met pelletkachel en sfeervolle eethoek – Zonnige tuin op het noordwesten met aanlegsteiger aan open vaarwater – Gelegen in het hart van Oosthuizen met alle voorzieningen op loopafstand Laat je verrassen door de ruimte, sfeer en locatie van dit unieke huis. Plan een bezichtiging en ervaar zelf wat Raadhuisstraat 58 zo bijzonder maakt. Bekijk ook de woningvideo voor een eerste indruk.
Wonen in een uniek object uit 1723! Dit kan aan vaarwater in het centrum van Oosthuizen! Welkom in een huis waar geschiedenis, charme en ruimte samenkomen op een plek die je hart direct verovert. Raadhuisstraat 58 is geen dertien-in-een-dozijn woning. Deze ‘bakkerij’ uit 1723 ademt sfeer, biedt verrassend veel ruimte en ligt op een droomlocatie aan open vaarwater, midden in het gezellige centrum van Oosthuizen. Hier geniet je van unieke details, een speelse indeling, meerdere multifunctionele ruimtes en een heerlijke tuin op het noordwesten. Een oude woning maar helemaal vernieuwd met zonnepanelen, isolatie en een warmtepomp ben je helemaal voorbereid op de toekomst. Klaar om verliefd te worden? Wonen in het historische hart van Oosthuizen Met de jachthaven in Edam, gezellige terrassen in het dorp en in de nabije omgeving en een directe vaarverbinding naar het Markermeer, is dit een plek voor echte levensgenieters. Oosthuizen combineert het dorpse gevoel met een rijk verenigingsleven, basisscholen, sportvoorzieningen en goede bereikbaarheid richting Hoorn, Purmerend en Amsterdam. Kortom: rustig wonen met alle gemakken dichtbij. Indeling: verrassend ruim en speels ingedeeld Begane grond Via de entree met trapopgang loop je de heerlijk ruime woonkamer binnen. Hoge ramen, een pelletkachel en speelse zichtlijnen zorgen voor een fijne sfeer. De eethoek sluit hier mooi op aan en hier is het luik naar de ruime kelder te vinden: perfect als wijnopslag of extra bergruimte. De halfopen keuken met landelijke uitstraling is voorzien van diverse inbouwapparatuur zoals een oven, inductiekookplaat en vaatwasser en kijkt uit op de achtertuin. Aansluitend vind je een praktische bijkeuken met koelkast en veel opslagruimte en een royale multifunctionele ruimte — ideaal als kantoor, hobbyruimte of speelkamer, hier is tevens het toilet te vinden. Eerste verdieping Op de eerste etage zijn maar liefst vier slaapkamers te vinden, elk met hun eigen karakter. De grootste kamer aan de achterzijde is riant met een hoog plafond en biedt een prachtig uitzicht. De badkamer is compleet met douche, toilet en wastafelmeubel. Er is een bergruimte te vinden waar de installatie te vinden is van de CV-ketel, hybride warmtepomp en warmtepomp(boiler). Dit is allemaal netjes weggewerkt in deze bergruimte. De hal geeft naast veel licht ook een karakteristiek gevoel met de fraaie raampartijen. Tweede verdieping De zolderverdieping is bereikbaar via een vaste trap en biedt volop mogelijkheden. Denk aan een logeerkamer, atelier of extra werkruimte. De overloop en zolderkamer zijn beide voorzien van dakramen die zorgen voor een fijne lichtinval. Kelder Onder de eethoek ligt een verrassend grote kelder van bijna 5 m². Ideaal voor voorraad, wijn, of gewoon als extra opslagruimte. Buitenleven aan het water De achtertuin ligt op het noordwesten en is daarmee een zonnige oase waar je de hele dag kunt genieten. Met een aanlegsteiger aan doorgaand vaarwater, is dit de perfecte plek voor wie houdt van bootje varen, suppen of gewoon lekker dobberen. De tuin biedt daarnaast volop privacy, groen en ruimte voor een loungehoek, buitenkeuken of speelplek voor de kids. Hier voel je je elke dag een beetje op vakantie. Nog even alles op een rijtje: – Karakteristiek pand uit 1723 met authentieke details; – Volledig gerenoveerd met zonnepanelen en hybride warmtepomp en warmtepomp(boiler) – Royale woonoppervlakte met 5 slaapkamers en multifunctionele ruimte – Woonkamer met pelletkachel en sfeervolle eethoek – Zonnige tuin op het noordwesten met aanlegsteiger aan open vaarwater – Gelegen in het hart van Oosthuizen met alle voorzieningen op loopafstand Laat je verrassen door de ruimte, sfeer en locatie van dit unieke huis. Plan een bezichtiging en ervaar zelf wat Raadhuisstraat 58 zo bijzonder maakt. Bekijk ook de woningvideo voor een eerste indruk.