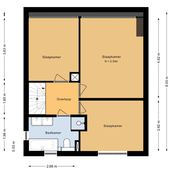
Wat wil je nog meer!? Uitkijken over het meer? Dat kan vanuit deze uitgebouwde hoekwoning met zonnepanelen en garage aan de Rietsingel 59. Een onwijs groene en rustige omgeving, in combinatie met een fijn huis, maakt dit de ideale woonplek. We vertellen je graag meer over het huis en de omgeving. De locatie van dit huis – met aan de voorzijde een mooi meertje en aan de achterzijde geen achterburen – is om te beginnen buitengewoon! Een ligging als deze kom je echt zelden tegen. Daarbij is het huis gelegen vlak bij het centrum van Purmerend, in de heerlijk groene wijk De Gors, en op korte afstand van een winkelcentrum en gezondheidscentrum. Stel je voor dat je in de zomer kunt vissen of varen en in de winter kunt schaatsen. Of gewoon lekker uit het raam kunt staren en mijmeren terwijl je van het uitzicht geniet. De auto kun je op eigen erf parkeren, voor de garage. Via de voordeur kom je in de hal. Vanuit hier heb je toegang tot het toilet, de trapopgang naar de eerste verdieping, de woonkeuken en de woonkamer. De woonkeuken ligt aan de voorzijde van het huis. De L-vormige Siematic-keuken is ruim opgezet en voorzien van alle gemakken, zoals een Quooker, inductiekookplaat, magnetron, oven, koelkast en vaatwasser. Bovendien is de keuken uitgerust met vloerverwarming. De uitgebouwde woonkamer is tuingericht en is, naast erg ruim, ook heerlijk licht dankzij de raampartijen over de gehele breedte van het huis. De open haard is ideaal om aan te steken tijdens de koudere maanden. Op de eerste verdieping bevinden zich een ruime badkamer en drie slaapkamers met aan de achterzijde een ruime dakkapel. Op de tweede verdieping vind je een royale overloop met plek voor de wasmachine en droger, een berging en nog eens twee slaapkamers. De dakkapel aan de voorzijde zorgt hier voor extra ruimte. De achtertuin is een groene en rustige plek waar je kunt genieten van de natuur en de vogels. Door het grote perceel heb je altijd wel een fijn plekje in de zon of juist in de schaduw. Nog alles samengevat: - ruim 140m2 aan woonoppervlakte - Parkeren op eigen erf en een garage - 8 zonnepanelen - Prachtige ligging aan het meer Wat wil je nog meer? Rietsingel 59 heeft zo onwijs veel te bieden, wordt dit jouw nieuwe thuis? Maak dan snel met ons een afspraak.

Kom in contact met Michael Snoey Kiewit-De Jong
Status
Verkocht
Vraagprijs
€ 585.000,-
Woonoppervlakte
140 m2
Perceeloppervlakte
215 m2
Externe bergruimte
0 m2
Gebouwgebonden buitenruimte
0 m2
Overige inpandige ruimte
22 m2
Inhoud
546 m3
Aantal kamers
6
Aantal slaapkamers
5
Vraagprijs: € 585.000,-
5 slaapkamers
Energielabel A
140 m2 woonoppervlak
215 m2 perceeloppervlak

Kom in contact met Michael Snoey Kiewit-De Jong
[toon_buurt_intro]
Lorem ipsum dolor sit amet, consetetur sadipscing elitr, sed diam nonumy eirmod tempor invidunt ut labore et dolore magna aliquyam erat, sed diam voluptua. At vero eos et accusam et justo duo dolores et ea rebum. Stet clita kasd gubergren, no sea takimata sanctus est Lorem ipsum dolor sit amet. Lorem ipsum

































































Wat wil je nog meer!? Uitkijken over het meer? Dat kan vanuit deze uitgebouwde hoekwoning met zonnepanelen en garage aan de Rietsingel 59. Een onwijs groene en rustige omgeving, in combinatie met een fijn huis, maakt dit de ideale woonplek. We vertellen je graag meer over het huis en de omgeving. De locatie van dit huis – met aan de voorzijde een mooi meertje en aan de achterzijde geen achterburen – is om te beginnen buitengewoon! Een ligging als deze kom je echt zelden tegen. Daarbij is het huis gelegen vlak bij het centrum van Purmerend, in de heerlijk groene wijk De Gors, en op korte afstand van een winkelcentrum en gezondheidscentrum. Stel je voor dat je in de zomer kunt vissen of varen en in de winter kunt schaatsen. Of gewoon lekker uit het raam kunt staren en mijmeren terwijl je van het uitzicht geniet. De auto kun je op eigen erf parkeren, voor de garage. Via de voordeur kom je in de hal. Vanuit hier heb je toegang tot het toilet, de trapopgang naar de eerste verdieping, de woonkeuken en de woonkamer. De woonkeuken ligt aan de voorzijde van het huis. De L-vormige Siematic-keuken is ruim opgezet en voorzien van alle gemakken, zoals een Quooker, inductiekookplaat, magnetron, oven, koelkast en vaatwasser. Bovendien is de keuken uitgerust met vloerverwarming. De uitgebouwde woonkamer is tuingericht en is, naast erg ruim, ook heerlijk licht dankzij de raampartijen over de gehele breedte van het huis. De open haard is ideaal om aan te steken tijdens de koudere maanden. Op de eerste verdieping bevinden zich een ruime badkamer en drie slaapkamers met aan de achterzijde een ruime dakkapel. Op de tweede verdieping vind je een royale overloop met plek voor de wasmachine en droger, een berging en nog eens twee slaapkamers. De dakkapel aan de voorzijde zorgt hier voor extra ruimte. De achtertuin is een groene en rustige plek waar je kunt genieten van de natuur en de vogels. Door het grote perceel heb je altijd wel een fijn plekje in de zon of juist in de schaduw. Nog alles samengevat: – ruim 140m2 aan woonoppervlakte – Parkeren op eigen erf en een garage – 8 zonnepanelen – Prachtige ligging aan het meer Wat wil je nog meer? Rietsingel 59 heeft zo onwijs veel te bieden, wordt dit jouw nieuwe thuis? Maak dan snel met ons een afspraak.
Wat wil je nog meer!? Uitkijken over het meer? Dat kan vanuit deze uitgebouwde hoekwoning met zonnepanelen en garage aan de Rietsingel 59. Een onwijs groene en rustige omgeving, in combinatie met een fijn huis, maakt dit de ideale woonplek. We vertellen je graag meer over het huis en de omgeving. De locatie van dit huis – met aan de voorzijde een mooi meertje en aan de achterzijde geen achterburen – is om te beginnen buitengewoon! Een ligging als deze kom je echt zelden tegen. Daarbij is het huis gelegen vlak bij het centrum van Purmerend, in de heerlijk groene wijk De Gors, en op korte afstand van een winkelcentrum en gezondheidscentrum. Stel je voor dat je in de zomer kunt vissen of varen en in de winter kunt schaatsen. Of gewoon lekker uit het raam kunt staren en mijmeren terwijl je van het uitzicht geniet. De auto kun je op eigen erf parkeren, voor de garage. Via de voordeur kom je in de hal. Vanuit hier heb je toegang tot het toilet, de trapopgang naar de eerste verdieping, de woonkeuken en de woonkamer. De woonkeuken ligt aan de voorzijde van het huis. De L-vormige Siematic-keuken is ruim opgezet en voorzien van alle gemakken, zoals een Quooker, inductiekookplaat, magnetron, oven, koelkast en vaatwasser. Bovendien is de keuken uitgerust met vloerverwarming. De uitgebouwde woonkamer is tuingericht en is, naast erg ruim, ook heerlijk licht dankzij de raampartijen over de gehele breedte van het huis. De open haard is ideaal om aan te steken tijdens de koudere maanden. Op de eerste verdieping bevinden zich een ruime badkamer en drie slaapkamers met aan de achterzijde een ruime dakkapel. Op de tweede verdieping vind je een royale overloop met plek voor de wasmachine en droger, een berging en nog eens twee slaapkamers. De dakkapel aan de voorzijde zorgt hier voor extra ruimte. De achtertuin is een groene en rustige plek waar je kunt genieten van de natuur en de vogels. Door het grote perceel heb je altijd wel een fijn plekje in de zon of juist in de schaduw. Nog alles samengevat: – ruim 140m2 aan woonoppervlakte – Parkeren op eigen erf en een garage – 8 zonnepanelen – Prachtige ligging aan het meer Wat wil je nog meer? Rietsingel 59 heeft zo onwijs veel te bieden, wordt dit jouw nieuwe thuis? Maak dan snel met ons een afspraak.