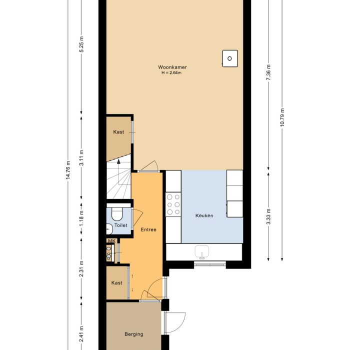
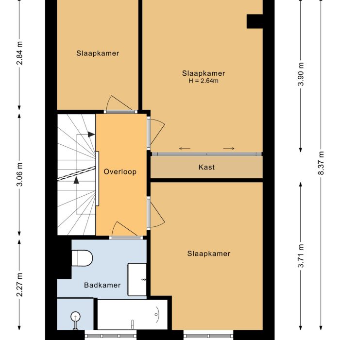
Wonen in deze gewilde wijk is een buitenkans — huizen zijn hier zó verkocht. En met het Twiske letterlijk aan je achtertuin, is dit wonen op een unieke plek waar natuur en comfort samenkomen. Welkom aan de Spoetnikstraat 10 in Oostzaan: een heerlijk ruim familiehuis met verrassend veel extra’s. Denk aan twee luxe badkamers, een zonnige tuin, energielabel A en parkeren op eigen erf. En dat alles op een plek waar rust, ruimte én water samenkomen. Stap in je boot en vaar zo de natuur in — of geniet gewoon van het comfort van thuis. Sfeervol wonen in het gezellige Oostzaan Dit huis ligt in een rustige, kindvriendelijke straat waar je de drukte van de stad net achter je laat, maar alles wél binnen handbereik blijft. De natuur van Het Twiske begint bijna letterlijk bij de achterdeur: varen, wandelen, fietsen – je doet het hier allemaal. Met scholen, winkels en uitvalswegen om de hoek is dit een plek die praktisch én puur genieten combineert. Begane grond: open leefruimte met alles erop en eraan Via de verzorgde voortuin met eigen oprit stap je binnen in een lichte hal met modern toilet, trapkast en handige berging. De keuken aan de voorzijde is ruim opgezet en perfect voor lange ontbijtochtenden of kookavonden met vrienden. Aan de achterzijde vinden we de woonkamer – met openslaande deuren richting de tuin. Licht, lucht en leefruimte in één vloeiende lijn. Fijn pluspunt voor in de wintermaanden, laminaatvloer met vloerverwarming en de fantastische haard voor de echte sfeer. Eerste verdieping: drie slaapkamers en een strakke badkamer De eerste verdieping telt drie fijne slaapkamers – perfect voor kinderen, werk of logees – en een moderne badkamer met ligbad, toilet en wastafel. Alles is netjes afgewerkt en klaar voor gebruik. En heb je meer ruimte nodig? Dan wacht er boven nóg een verrassing. Tweede verdieping: master met privébadkamer Op zolder vind je een riante vierde slaapkamer met een fantastische plafondhoogte van ruim drie meter. Dit is de perfecte master suite, compleet met eigen badkamer voorzien van douche, wastafel en derde toilet en de aansluiting voor de wasmachine en droger. Ideaal voor ouders, logees of een luxe werkkamer – net wat jij nodig hebt. Buitenruimte: zon, privacy en vaarplezier De achtertuin ligt op het westen, dus pak de zon maar vast in! Er is ruimte genoeg voor een loungeset, eettafel én een speelhoek. En achterin… ligt het water. Hier leg je je bootje aan en vaar je zó Het Twiske in – zonder gedoe, met eindeloze mogelijkheden voor vrije tijd op en rond het water. Nog even alles op een rijtje: - Aan vaarwater – met directe verbinding naar Het Twiske - Twee moderne badkamers, verdeeld over twee verdiepingen - Vier ruime slaapkamers - Energielabel A – klaar voor de toekomst - Zonnige tuin op het westen met veel privacy - Parkeren op eigen erf - Instapklaar en tot in de puntjes verzorgd Ben jij klaar voor meer ruimte, meer comfort en een leven aan het water? Plan dan snel een bezichtiging en ervaar het zelf. Bekijk ook de woningvideo voor een voorproefje van deze unieke plek. Vaar jij straks zó het Twiske in vanuit je achtertuin?
Status
Beschikbaar
Vraagprijs
€ 735.000,-
Woonoppervlakte
132 m2
Perceeloppervlakte
131 m2
Externe bergruimte
0 m2
Gebouwgebonden buitenruimte
0 m2
Overige inpandige ruimte
5 m2
Inhoud
489 m3
Aantal kamers
5
Aantal slaapkamers
4
Vraagprijs: € 735.000,-
4 slaapkamers
Energielabel A
132 m2 woonoppervlak
131 m2 perceeloppervlak

Kom in contact met Mariska Beentjes
❌ Geen gekoppelde buurt- of gemeentepagina gevonden
Lorem ipsum dolor sit amet, consetetur sadipscing elitr, sed diam nonumy eirmod tempor invidunt ut labore et dolore magna aliquyam erat, sed diam voluptua. At vero eos et accusam et justo duo dolores et ea rebum. Stet clita kasd gubergren, no sea takimata sanctus est Lorem ipsum dolor sit amet. Lorem ipsum




































































Wonen in deze gewilde wijk is een buitenkans — huizen zijn hier zó verkocht. En met het Twiske letterlijk aan je achtertuin, is dit wonen op een unieke plek waar natuur en comfort samenkomen. Welkom aan de Spoetnikstraat 10 in Oostzaan: een heerlijk ruim familiehuis met verrassend veel extra’s. Denk aan twee luxe badkamers, een zonnige tuin, energielabel A en parkeren op eigen erf. En dat alles op een plek waar rust, ruimte én water samenkomen. Stap in je boot en vaar zo de natuur in — of geniet gewoon van het comfort van thuis. Sfeervol wonen in het gezellige Oostzaan Dit huis ligt in een rustige, kindvriendelijke straat waar je de drukte van de stad net achter je laat, maar alles wél binnen handbereik blijft. De natuur van Het Twiske begint bijna letterlijk bij de achterdeur: varen, wandelen, fietsen – je doet het hier allemaal. Met scholen, winkels en uitvalswegen om de hoek is dit een plek die praktisch én puur genieten combineert. Begane grond: open leefruimte met alles erop en eraan Via de verzorgde voortuin met eigen oprit stap je binnen in een lichte hal met modern toilet, trapkast en handige berging. De keuken aan de voorzijde is ruim opgezet en perfect voor lange ontbijtochtenden of kookavonden met vrienden. Aan de achterzijde vinden we de woonkamer – met openslaande deuren richting de tuin. Licht, lucht en leefruimte in één vloeiende lijn. Fijn pluspunt voor in de wintermaanden, laminaatvloer met vloerverwarming en de fantastische haard voor de echte sfeer. Eerste verdieping: drie slaapkamers en een strakke badkamer De eerste verdieping telt drie fijne slaapkamers – perfect voor kinderen, werk of logees – en een moderne badkamer met ligbad, toilet en wastafel. Alles is netjes afgewerkt en klaar voor gebruik. En heb je meer ruimte nodig? Dan wacht er boven nóg een verrassing. Tweede verdieping: master met privébadkamer Op zolder vind je een riante vierde slaapkamer met een fantastische plafondhoogte van ruim drie meter. Dit is de perfecte master suite, compleet met eigen badkamer voorzien van douche, wastafel en derde toilet en de aansluiting voor de wasmachine en droger. Ideaal voor ouders, logees of een luxe werkkamer – net wat jij nodig hebt. Buitenruimte: zon, privacy en vaarplezier De achtertuin ligt op het westen, dus pak de zon maar vast in! Er is ruimte genoeg voor een loungeset, eettafel én een speelhoek. En achterin… ligt het water. Hier leg je je bootje aan en vaar je zó Het Twiske in – zonder gedoe, met eindeloze mogelijkheden voor vrije tijd op en rond het water. Nog even alles op een rijtje: – Aan vaarwater – met directe verbinding naar Het Twiske – Twee moderne badkamers, verdeeld over twee verdiepingen – Vier ruime slaapkamers – Energielabel A – klaar voor de toekomst – Zonnige tuin op het westen met veel privacy – Parkeren op eigen erf – Instapklaar en tot in de puntjes verzorgd Ben jij klaar voor meer ruimte, meer comfort en een leven aan het water? Plan dan snel een bezichtiging en ervaar het zelf. Bekijk ook de woningvideo voor een voorproefje van deze unieke plek. Vaar jij straks zó het Twiske in vanuit je achtertuin?
Wonen in deze gewilde wijk is een buitenkans — huizen zijn hier zó verkocht. En met het Twiske letterlijk aan je achtertuin, is dit wonen op een unieke plek waar natuur en comfort samenkomen. Welkom aan de Spoetnikstraat 10 in Oostzaan: een heerlijk ruim familiehuis met verrassend veel extra’s. Denk aan twee luxe badkamers, een zonnige tuin, energielabel A en parkeren op eigen erf. En dat alles op een plek waar rust, ruimte én water samenkomen. Stap in je boot en vaar zo de natuur in — of geniet gewoon van het comfort van thuis. Sfeervol wonen in het gezellige Oostzaan Dit huis ligt in een rustige, kindvriendelijke straat waar je de drukte van de stad net achter je laat, maar alles wél binnen handbereik blijft. De natuur van Het Twiske begint bijna letterlijk bij de achterdeur: varen, wandelen, fietsen – je doet het hier allemaal. Met scholen, winkels en uitvalswegen om de hoek is dit een plek die praktisch én puur genieten combineert. Begane grond: open leefruimte met alles erop en eraan Via de verzorgde voortuin met eigen oprit stap je binnen in een lichte hal met modern toilet, trapkast en handige berging. De keuken aan de voorzijde is ruim opgezet en perfect voor lange ontbijtochtenden of kookavonden met vrienden. Aan de achterzijde vinden we de woonkamer – met openslaande deuren richting de tuin. Licht, lucht en leefruimte in één vloeiende lijn. Fijn pluspunt voor in de wintermaanden, laminaatvloer met vloerverwarming en de fantastische haard voor de echte sfeer. Eerste verdieping: drie slaapkamers en een strakke badkamer De eerste verdieping telt drie fijne slaapkamers – perfect voor kinderen, werk of logees – en een moderne badkamer met ligbad, toilet en wastafel. Alles is netjes afgewerkt en klaar voor gebruik. En heb je meer ruimte nodig? Dan wacht er boven nóg een verrassing. Tweede verdieping: master met privébadkamer Op zolder vind je een riante vierde slaapkamer met een fantastische plafondhoogte van ruim drie meter. Dit is de perfecte master suite, compleet met eigen badkamer voorzien van douche, wastafel en derde toilet en de aansluiting voor de wasmachine en droger. Ideaal voor ouders, logees of een luxe werkkamer – net wat jij nodig hebt. Buitenruimte: zon, privacy en vaarplezier De achtertuin ligt op het westen, dus pak de zon maar vast in! Er is ruimte genoeg voor een loungeset, eettafel én een speelhoek. En achterin… ligt het water. Hier leg je je bootje aan en vaar je zó Het Twiske in – zonder gedoe, met eindeloze mogelijkheden voor vrije tijd op en rond het water. Nog even alles op een rijtje: – Aan vaarwater – met directe verbinding naar Het Twiske – Twee moderne badkamers, verdeeld over twee verdiepingen – Vier ruime slaapkamers – Energielabel A – klaar voor de toekomst – Zonnige tuin op het westen met veel privacy – Parkeren op eigen erf – Instapklaar en tot in de puntjes verzorgd Ben jij klaar voor meer ruimte, meer comfort en een leven aan het water? Plan dan snel een bezichtiging en ervaar het zelf. Bekijk ook de woningvideo voor een voorproefje van deze unieke plek. Vaar jij straks zó het Twiske in vanuit je achtertuin?