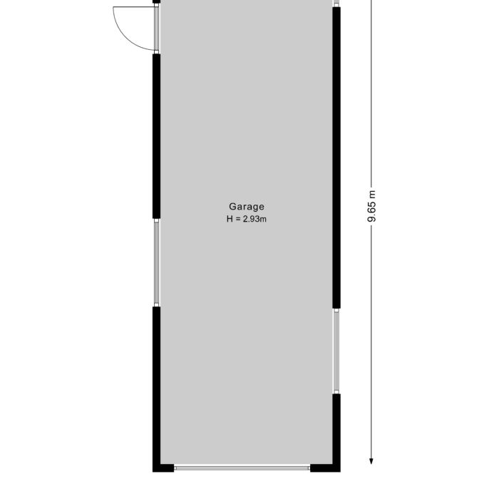
One step at a time… maar deze stap wil je écht niet missen! Welkom bij de Steppestraat 2 in Purmerend: een geschakeld vrijstaand huis dat aanvoelt als een vrijstaande villa. Je krijgt hier 10 zonnepanelen, een garage, plek om drie auto’s op eigen erf te parkeren, een giga woonkamer met haard, een zonnige tuin mét zwembad én een ligging direct aan het water. En dat alles ook nog eens super centraal. Laten we naar binnen gaan! Stap binnen in de ruime hal met genoeg plek voor jassen, schoenen en tassen. Vanuit hier loop je de woonkamer in – en die is groot, licht en gezellig tegelijk. De pelletkachel zorgt voor sfeer, de schuifpui haalt de tuin naar binnen en dankzij de vloerverwarming heb je altijd warme voeten. De keuken is praktisch en gezellig: een L-opstelling met een robuust Belgisch hardstenen blad waar je gerust een pan op kunt zetten. Hier kook je op inductie en vind je o.a. een vaatwasser en afzuigkap die naar buiten afvoert. De keuken is netjes onderhouden en heeft een kleine touche-up gehad Door naar de eerste verdieping Hier vind je twee slaapkamers (waarvan er makkelijk weer drie van te maken zijn) en de badkamer. De kamers zijn netjes afgewerkt met laminaat en schilderwerk. De badkamer is wat verouderd maar goed onderhouden en voorzien van een douchecabine, dubbele wastafel en radiator. Last but not lease.. Met de vaste trap kom je op de verrassend ruime zolder. Dankzij de grote ramen is het hier heerlijk licht. Er is een voorzolder, een grote slaapkamer en een aparte wasruimte. Ideaal voor logees, tieners of een thuiswerkplek. Ook de omvormer van de zonnepanelen Toch nog wat meer ruimte nodig? op zolder kan er gemakkelijk een dakkapel geplaatst worden en twee ruime slaapkamers gerealiseerd worden. En dan de tuin… wat een feestje! Een achtertuin met zon, water én een verwarmd zwembad met een tegenstroom en extra handig een zandfilter. Je hoort de kinderen al spetteren of ziet jezelf al relaxen op een luchtbedje. De tuin loopt door aan de zijkant en er is ook een voortuin. Genoeg plek om te genieten, tuinieren of juist lekker weinig te doen. De garage is ruim en handig: ideaal voor de fietsen, hobby’s of zelfs als bedrijfsruimte (er is een vergunning aanwezig). Voor de garage ligt een oprit waar je met gemak drie auto’s kwijt kunt. Er is ook een laadpunt aanwezig. Alle pluspunten op een rijtje - 10 zonnepanelen - Geschakeld vrijstaand (voelt vrijstaand door ankerloze bouw) - Parkeren op eigen erf (3 auto’s) + laadpaal - Ruime woonkamer met pelletkachel en veel licht - Grote tuin aan het water met verwarmd zwembad (blijft achter) - Garage met vergunning voor bedrijfsruimte - Vloerverwarming op de begane grond - Centrale ligging Maak jij deze fantastische stap vooruit? dan zien we je graag voor een live bezichtiging
Leuk om een nieuwe stap te maken, toch is het lastig afscheid te nemen van een huis, die aanvoelt als een warme jas en waar wij veel mijlpalen gevierd hebben.
Feestje bouwen inclusief DJ kan gewoon, zonder dat de buren daar last van hebben.
Een lekkere gezonde workout als start in het zwembad met tegenstroom installatie, voordat je aan het werk gaat, is geen straf, net als even samen in het zonnetje lunchen in de voortuin.
En als kers op de taart speelt/zwemt onze kleindochter al vanaf 9 maanden in het zwembad, dankzij de warmtepomp.
Mooie herinneringen hoe ons gezin hier geleefd heeft en wij wensen de nieuwe bewoners evenveel woongenot als wat wij de afgelopen 26 jaar hier hebben ervaren.

Kom in contact met Mariska Beentjes
Status
Verkocht
Vraagprijs
€ 695.000,-
Woonoppervlakte
155 m2
Perceeloppervlakte
311 m2
Externe bergruimte
31 m2
Gebouwgebonden buitenruimte
1 m2
Overige inpandige ruimte
0 m2
Inhoud
550 m3
Aantal kamers
5
Aantal slaapkamers
3
Vraagprijs: € 695.000,-
3 slaapkamers
Energielabel A
155 m2 woonoppervlak
311 m2 perceeloppervlak

Kom in contact met Mariska Beentjes
[toon_buurt_intro]
Lorem ipsum dolor sit amet, consetetur sadipscing elitr, sed diam nonumy eirmod tempor invidunt ut labore et dolore magna aliquyam erat, sed diam voluptua. At vero eos et accusam et justo duo dolores et ea rebum. Stet clita kasd gubergren, no sea takimata sanctus est Lorem ipsum dolor sit amet. Lorem ipsum




































































One step at a time… maar deze stap wil je écht niet missen! Welkom bij de Steppestraat 2 in Purmerend: een geschakeld vrijstaand huis dat aanvoelt als een vrijstaande villa. Je krijgt hier 10 zonnepanelen, een garage, plek om drie auto’s op eigen erf te parkeren, een giga woonkamer met haard, een zonnige tuin mét zwembad én een ligging direct aan het water. En dat alles ook nog eens super centraal. Laten we naar binnen gaan! Stap binnen in de ruime hal met genoeg plek voor jassen, schoenen en tassen. Vanuit hier loop je de woonkamer in – en die is groot, licht en gezellig tegelijk. De pelletkachel zorgt voor sfeer, de schuifpui haalt de tuin naar binnen en dankzij de vloerverwarming heb je altijd warme voeten. De keuken is praktisch en gezellig: een L-opstelling met een robuust Belgisch hardstenen blad waar je gerust een pan op kunt zetten. Hier kook je op inductie en vind je o.a. een vaatwasser en afzuigkap die naar buiten afvoert. De keuken is netjes onderhouden en heeft een kleine touche-up gehad Door naar de eerste verdieping Hier vind je twee slaapkamers (waarvan er makkelijk weer drie van te maken zijn) en de badkamer. De kamers zijn netjes afgewerkt met laminaat en schilderwerk. De badkamer is wat verouderd maar goed onderhouden en voorzien van een douchecabine, dubbele wastafel en radiator. Last but not lease.. Met de vaste trap kom je op de verrassend ruime zolder. Dankzij de grote ramen is het hier heerlijk licht. Er is een voorzolder, een grote slaapkamer en een aparte wasruimte. Ideaal voor logees, tieners of een thuiswerkplek. Ook de omvormer van de zonnepanelen Toch nog wat meer ruimte nodig? op zolder kan er gemakkelijk een dakkapel geplaatst worden en twee ruime slaapkamers gerealiseerd worden. En dan de tuin… wat een feestje! Een achtertuin met zon, water én een verwarmd zwembad met een tegenstroom en extra handig een zandfilter. Je hoort de kinderen al spetteren of ziet jezelf al relaxen op een luchtbedje. De tuin loopt door aan de zijkant en er is ook een voortuin. Genoeg plek om te genieten, tuinieren of juist lekker weinig te doen. De garage is ruim en handig: ideaal voor de fietsen, hobby’s of zelfs als bedrijfsruimte (er is een vergunning aanwezig). Voor de garage ligt een oprit waar je met gemak drie auto’s kwijt kunt. Er is ook een laadpunt aanwezig. Alle pluspunten op een rijtje – 10 zonnepanelen – Geschakeld vrijstaand (voelt vrijstaand door ankerloze bouw) – Parkeren op eigen erf (3 auto’s) + laadpaal – Ruime woonkamer met pelletkachel en veel licht – Grote tuin aan het water met verwarmd zwembad (blijft achter) – Garage met vergunning voor bedrijfsruimte – Vloerverwarming op de begane grond – Centrale ligging Maak jij deze fantastische stap vooruit? dan zien we je graag voor een live bezichtiging
One step at a time… maar deze stap wil je écht niet missen! Welkom bij de Steppestraat 2 in Purmerend: een geschakeld vrijstaand huis dat aanvoelt als een vrijstaande villa. Je krijgt hier 10 zonnepanelen, een garage, plek om drie auto’s op eigen erf te parkeren, een giga woonkamer met haard, een zonnige tuin mét zwembad én een ligging direct aan het water. En dat alles ook nog eens super centraal. Laten we naar binnen gaan! Stap binnen in de ruime hal met genoeg plek voor jassen, schoenen en tassen. Vanuit hier loop je de woonkamer in – en die is groot, licht en gezellig tegelijk. De pelletkachel zorgt voor sfeer, de schuifpui haalt de tuin naar binnen en dankzij de vloerverwarming heb je altijd warme voeten. De keuken is praktisch en gezellig: een L-opstelling met een robuust Belgisch hardstenen blad waar je gerust een pan op kunt zetten. Hier kook je op inductie en vind je o.a. een vaatwasser en afzuigkap die naar buiten afvoert. De keuken is netjes onderhouden en heeft een kleine touche-up gehad Door naar de eerste verdieping Hier vind je twee slaapkamers (waarvan er makkelijk weer drie van te maken zijn) en de badkamer. De kamers zijn netjes afgewerkt met laminaat en schilderwerk. De badkamer is wat verouderd maar goed onderhouden en voorzien van een douchecabine, dubbele wastafel en radiator. Last but not lease.. Met de vaste trap kom je op de verrassend ruime zolder. Dankzij de grote ramen is het hier heerlijk licht. Er is een voorzolder, een grote slaapkamer en een aparte wasruimte. Ideaal voor logees, tieners of een thuiswerkplek. Ook de omvormer van de zonnepanelen Toch nog wat meer ruimte nodig? op zolder kan er gemakkelijk een dakkapel geplaatst worden en twee ruime slaapkamers gerealiseerd worden. En dan de tuin… wat een feestje! Een achtertuin met zon, water én een verwarmd zwembad met een tegenstroom en extra handig een zandfilter. Je hoort de kinderen al spetteren of ziet jezelf al relaxen op een luchtbedje. De tuin loopt door aan de zijkant en er is ook een voortuin. Genoeg plek om te genieten, tuinieren of juist lekker weinig te doen. De garage is ruim en handig: ideaal voor de fietsen, hobby’s of zelfs als bedrijfsruimte (er is een vergunning aanwezig). Voor de garage ligt een oprit waar je met gemak drie auto’s kwijt kunt. Er is ook een laadpunt aanwezig. Alle pluspunten op een rijtje – 10 zonnepanelen – Geschakeld vrijstaand (voelt vrijstaand door ankerloze bouw) – Parkeren op eigen erf (3 auto’s) + laadpaal – Ruime woonkamer met pelletkachel en veel licht – Grote tuin aan het water met verwarmd zwembad (blijft achter) – Garage met vergunning voor bedrijfsruimte – Vloerverwarming op de begane grond – Centrale ligging Maak jij deze fantastische stap vooruit? dan zien we je graag voor een live bezichtiging