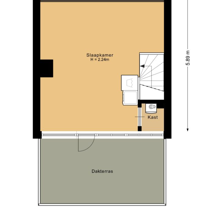
Soms kom je een plek tegen waar rust, ruimte en uitzicht precies samenkomen. Aan Stoutenburg 28 woon je met vrij uitzicht over de landerijen, een mogelijkheid voor eigen boot voor de deur, een garage voor je auto of hobby’s én op korte afstand van Amsterdam. Een huis waar je iedere dag voelt hoe fijn het is om net buiten de stad te wonen. Wonen in Landsmeer Landsmeer staat bekend om zijn groene en ontspannen karakter. Hier woon je midden in een waterrijke en landelijke omgeving, terwijl Amsterdam verrassend dichtbij ligt. Binnen enkele minuten sta je in de stad, maar thuis ervaar je vooral rust, ruimte en natuur. De omgeving nodigt uit om naar buiten te gaan. Wandelen langs het water, een rondje varen of fietsen door het prachtige Twiske. Tegelijkertijd heb je in het dorp alle dagelijkse voorzieningen binnen handbereik, zoals winkels, scholen en gezellige horeca. Het beste van twee werelden komt hier samen. Begane grond Je komt binnen in de entree met toilet en meterkast. Vanuit hier stap je de ruime woonkamer binnen. Dit is een lichte en comfortabele leefruimte waar je eenvoudig verschillende zithoeken kunt creëren. Aan de achterzijde van het huis ligt de open keuken met eetkamer. De keuken is praktisch ingericht en vormt een fijne plek om samen te koken en te tafelen. Grote raampartijen en de moderne kunststof schuifpui met HR-glas zorgen hier voor veel licht en een prettige verbinding met buiten. Eerste verdieping Op de eerste verdieping bevinden zich momenteel twee ruime slaapkamers. De kamers zijn prettig van formaat en beschikken over praktische kastruimte. De badkamer is compleet uitgevoerd met een ligbad, douche, wastafel en toilet. Het huis is oorspronkelijk opgeleverd met drie slaapkamers op deze verdieping. Het is mogelijk om deze derde slaapkamer weer te realiseren met de nodige aanpassingen. Tweede verdieping De tweede verdieping is een verrassend ruime verdieping. Hier vind je nog een royale slaapkamer met toegang tot het dakterras op het oosten. Ook is hier ruimte voor de wasmachine en extra bergruimte. Buitenruimte Buiten wonen krijgt hier echt betekenis. De achtertuin ligt op het westen, waardoor je hier heerlijk van de middag- en avondzon geniet. Daarnaast beschikt het huis over een praktische garage aan de achterzijde. Ideaal voor je opslag of als hobbyruimte. Als kers op de taart is er het dakterras op het oosten. Hier start je de dag met een kop koffie terwijl je uitkijkt over de uitgestrekte landerijen. Rust, ruimte en uitzicht – precies zoals je het graag hebt. Nog even alles op een rijtje: - Prachtige ligging met vrij uitzicht over de landerijen; - Mogelijkheid voor eigen boot voor de deur; - Garage voor hobby of opslag; - Moderne kunststof schuifpui met HR+++-beglazing; - Dakterras op het oosten met vrij uitzicht; - Rustig wonen vlakbij Amsterdam; Ben je op zoek naar een huis waar je elke dag geniet van ruimte, natuur en uitzicht, maar wel met de stad binnen handbereik? Dan is Stoutenburg 28 absoluut een bezichtiging waard. Bekijk ook zeker de woningvideo voor een goede indruk van dit fijne huis. Soms kom je een plek tegen waar rust, ruimte en uitzicht precies samenkomen. Hier voel je meteen: dit zou zomaar eens thuis kunnen zijn.
Na ruim 25 jaar met veel plezier gewoond te hebben gaan wij voor een gelijkvloerse wat Kleinere woning.
Wij hebben hier heel veel plezier gehad alles kon hier vissen schaatsen varen en niet te vergeten het schitterende uitzicht.
Wij hopen dat de nieuwe bewoners er met net zo veel plezier gaan wonen.

Kom in contact met Menno van Diepen
Status
Beschikbaar
Vraagprijs
€ 615.000,-
Woonoppervlakte
112 m2
Perceeloppervlakte
131 m2
Externe bergruimte
19 m2
Gebouwgebonden buitenruimte
13 m2
Overige inpandige ruimte
0 m2
Inhoud
368 m3
Aantal kamers
4
Aantal slaapkamers
3
Vraagprijs: € 615.000,-
3 slaapkamers
Energielabel C
112 m2 woonoppervlak
131 m2 perceeloppervlak

Kom in contact met Menno van Diepen
[toon_buurt_intro]
Lorem ipsum dolor sit amet, consetetur sadipscing elitr, sed diam nonumy eirmod tempor invidunt ut labore et dolore magna aliquyam erat, sed diam voluptua. At vero eos et accusam et justo duo dolores et ea rebum. Stet clita kasd gubergren, no sea takimata sanctus est Lorem ipsum dolor sit amet. Lorem ipsum

























































Soms kom je een plek tegen waar rust, ruimte en uitzicht precies samenkomen. Aan Stoutenburg 28 woon je met vrij uitzicht over de landerijen, een mogelijkheid voor eigen boot voor de deur, een garage voor je auto of hobby’s én op korte afstand van Amsterdam. Een huis waar je iedere dag voelt hoe fijn het is om net buiten de stad te wonen. Wonen in Landsmeer Landsmeer staat bekend om zijn groene en ontspannen karakter. Hier woon je midden in een waterrijke en landelijke omgeving, terwijl Amsterdam verrassend dichtbij ligt. Binnen enkele minuten sta je in de stad, maar thuis ervaar je vooral rust, ruimte en natuur. De omgeving nodigt uit om naar buiten te gaan. Wandelen langs het water, een rondje varen of fietsen door het prachtige Twiske. Tegelijkertijd heb je in het dorp alle dagelijkse voorzieningen binnen handbereik, zoals winkels, scholen en gezellige horeca. Het beste van twee werelden komt hier samen. Begane grond Je komt binnen in de entree met toilet en meterkast. Vanuit hier stap je de ruime woonkamer binnen. Dit is een lichte en comfortabele leefruimte waar je eenvoudig verschillende zithoeken kunt creëren. Aan de achterzijde van het huis ligt de open keuken met eetkamer. De keuken is praktisch ingericht en vormt een fijne plek om samen te koken en te tafelen. Grote raampartijen en de moderne kunststof schuifpui met HR-glas zorgen hier voor veel licht en een prettige verbinding met buiten. Eerste verdieping Op de eerste verdieping bevinden zich momenteel twee ruime slaapkamers. De kamers zijn prettig van formaat en beschikken over praktische kastruimte. De badkamer is compleet uitgevoerd met een ligbad, douche, wastafel en toilet. Het huis is oorspronkelijk opgeleverd met drie slaapkamers op deze verdieping. Het is mogelijk om deze derde slaapkamer weer te realiseren met de nodige aanpassingen. Tweede verdieping De tweede verdieping is een verrassend ruime verdieping. Hier vind je nog een royale slaapkamer met toegang tot het dakterras op het oosten. Ook is hier ruimte voor de wasmachine en extra bergruimte. Buitenruimte Buiten wonen krijgt hier echt betekenis. De achtertuin ligt op het westen, waardoor je hier heerlijk van de middag- en avondzon geniet. Daarnaast beschikt het huis over een praktische garage aan de achterzijde. Ideaal voor je opslag of als hobbyruimte. Als kers op de taart is er het dakterras op het oosten. Hier start je de dag met een kop koffie terwijl je uitkijkt over de uitgestrekte landerijen. Rust, ruimte en uitzicht – precies zoals je het graag hebt. Nog even alles op een rijtje: – Prachtige ligging met vrij uitzicht over de landerijen; – Mogelijkheid voor eigen boot voor de deur; – Garage voor hobby of opslag; – Moderne kunststof schuifpui met HR+++-beglazing; – Dakterras op het oosten met vrij uitzicht; – Rustig wonen vlakbij Amsterdam; Ben je op zoek naar een huis waar je elke dag geniet van ruimte, natuur en uitzicht, maar wel met de stad binnen handbereik? Dan is Stoutenburg 28 absoluut een bezichtiging waard. Bekijk ook zeker de woningvideo voor een goede indruk van dit fijne huis. Soms kom je een plek tegen waar rust, ruimte en uitzicht precies samenkomen. Hier voel je meteen: dit zou zomaar eens thuis kunnen zijn.
Soms kom je een plek tegen waar rust, ruimte en uitzicht precies samenkomen. Aan Stoutenburg 28 woon je met vrij uitzicht over de landerijen, een mogelijkheid voor eigen boot voor de deur, een garage voor je auto of hobby’s én op korte afstand van Amsterdam. Een huis waar je iedere dag voelt hoe fijn het is om net buiten de stad te wonen. Wonen in Landsmeer Landsmeer staat bekend om zijn groene en ontspannen karakter. Hier woon je midden in een waterrijke en landelijke omgeving, terwijl Amsterdam verrassend dichtbij ligt. Binnen enkele minuten sta je in de stad, maar thuis ervaar je vooral rust, ruimte en natuur. De omgeving nodigt uit om naar buiten te gaan. Wandelen langs het water, een rondje varen of fietsen door het prachtige Twiske. Tegelijkertijd heb je in het dorp alle dagelijkse voorzieningen binnen handbereik, zoals winkels, scholen en gezellige horeca. Het beste van twee werelden komt hier samen. Begane grond Je komt binnen in de entree met toilet en meterkast. Vanuit hier stap je de ruime woonkamer binnen. Dit is een lichte en comfortabele leefruimte waar je eenvoudig verschillende zithoeken kunt creëren. Aan de achterzijde van het huis ligt de open keuken met eetkamer. De keuken is praktisch ingericht en vormt een fijne plek om samen te koken en te tafelen. Grote raampartijen en de moderne kunststof schuifpui met HR-glas zorgen hier voor veel licht en een prettige verbinding met buiten. Eerste verdieping Op de eerste verdieping bevinden zich momenteel twee ruime slaapkamers. De kamers zijn prettig van formaat en beschikken over praktische kastruimte. De badkamer is compleet uitgevoerd met een ligbad, douche, wastafel en toilet. Het huis is oorspronkelijk opgeleverd met drie slaapkamers op deze verdieping. Het is mogelijk om deze derde slaapkamer weer te realiseren met de nodige aanpassingen. Tweede verdieping De tweede verdieping is een verrassend ruime verdieping. Hier vind je nog een royale slaapkamer met toegang tot het dakterras op het oosten. Ook is hier ruimte voor de wasmachine en extra bergruimte. Buitenruimte Buiten wonen krijgt hier echt betekenis. De achtertuin ligt op het westen, waardoor je hier heerlijk van de middag- en avondzon geniet. Daarnaast beschikt het huis over een praktische garage aan de achterzijde. Ideaal voor je opslag of als hobbyruimte. Als kers op de taart is er het dakterras op het oosten. Hier start je de dag met een kop koffie terwijl je uitkijkt over de uitgestrekte landerijen. Rust, ruimte en uitzicht – precies zoals je het graag hebt. Nog even alles op een rijtje: – Prachtige ligging met vrij uitzicht over de landerijen; – Mogelijkheid voor eigen boot voor de deur; – Garage voor hobby of opslag; – Moderne kunststof schuifpui met HR+++-beglazing; – Dakterras op het oosten met vrij uitzicht; – Rustig wonen vlakbij Amsterdam; Ben je op zoek naar een huis waar je elke dag geniet van ruimte, natuur en uitzicht, maar wel met de stad binnen handbereik? Dan is Stoutenburg 28 absoluut een bezichtiging waard. Bekijk ook zeker de woningvideo voor een goede indruk van dit fijne huis. Soms kom je een plek tegen waar rust, ruimte en uitzicht precies samenkomen. Hier voel je meteen: dit zou zomaar eens thuis kunnen zijn.