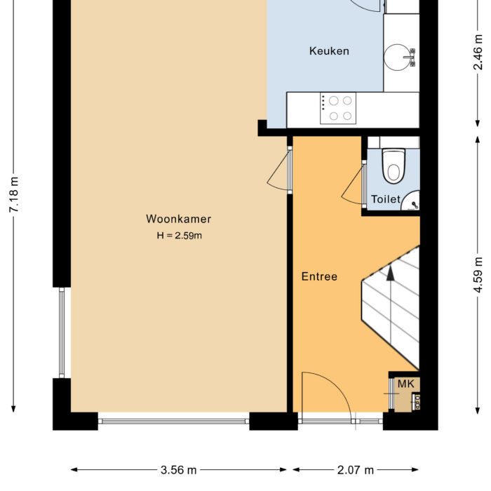
Hier voelt alles net even ruimer, lichter en vrijer… Alsof het uitzicht je elke dag opnieuw welkom heet. Aan Voorkamp 40 in Beets, staat een 2-onder-1-kap op een plek die je zelden tegenkomt. Vrij uitzicht over de landerijen, een groot perceel, een zonnige tuin op het westen en een vrijstaande garage van maar liefst 38 m². Tel daar het parkeren op eigen erf bij op en je voelt meteen: hier klopt het plaatje. Je woont hier in het hart van Beets. Een dorp waar de basisschool, de kroeg en het kerkje nog gewoon tegenover elkaar liggen. Een plek waar mensen elkaar nog groeten. En tegelijk zit je verrassend centraal, met steden als Hoorn, Alkmaar, Purmerend en zelfs Amsterdam binnen bereik. Dorps wonen zoals het bedoeld is. Het huis is van binnen gedateerd. Dit is echt een klushuis, en dat zeggen we bewust. Want juist daarin schuilt de kans. De basis is goed, met een goede fundering en onder andere hardhouten kozijnen. Hier creëer je jouw eigen stijl, jouw indeling en jouw toekomst. En eerlijk is eerlijk: op dit soort plekken wordt zelden iets aangeboden: Als je hier eenmaal zit, dan wil je eigenlijk nooit meer weg. Indeling: Je komt binnen in de entree met meterkast, toilet en trapopgang. Vanuit hier stap je de woonkamer in. Een fijne, lichte ruimte met zicht op de tuin en de landerijen daarachter. De keuken ligt aan de achterzijde en biedt direct toegang tot buiten. Op de eerste verdieping vind je twee slaapkamers. Beide zijn ruim van formaat en goed in te delen. De badkamer is gerealiseerd in voormalige derde slaapkamer en is daardoor lekker ruim. Hier vind je een douche, ligbad, toilet en wastafelmeubel. Op de overloop is nog een extra bergkast. De tweede verdieping is nu in gebruik als bergzolder en te bereiken via een vlizotrap. Hier ligt een mooie kans: door het plaatsen van een vaste trap en het toevoegen van extra daglicht creëer je hier eenvoudig circa 21 m² extra woonoppervlakte. De ruimte wordt natuurlijk nog groter als je dakkapellen gaat plaatsen. Ideaal voor een extra slaapkamer, werkruimte of misschien wel een eigen verdieping voor een opgroeiend kind. Buiten ervaar je pas echt wat deze plek bijzonder maakt. De tuin ligt op het westen, wat betekent dat je hier tot in de avond van de zon geniet. Met vrij uitzicht en geen achterburen kijk je uit over groen en lucht. Rust, ruimte en elke avond een zonsondergang die nooit verveelt. Op het erf is ruimte om te parkeren en de vrijstaande garage van 38 m² biedt eindeloos veel mogelijkheden. Van hobbyruimte tot werkplek of atelier aan huis. Nog even alles op een rijtje: - 2-onder-1-kap huis op een unieke plek in Beets - Vrij uitzicht over de landerijen - Groot perceel met zonnige tuin op het westen - Vrijstaande garage van 38 m² - Tweede verdieping met uitbreidingsmogelijkheid van circa 21 m² - Klushuis met veel potentie en een goede basis Zie jij de kans die hier ligt én het leven dat je hier kunt opbouwen? Plan dan snel een bezichtiging en ervaar het zelf. Bekijk ook zeker de woningvideo voor een compleet beeld van deze bijzondere plek.

Kom in contact met Richard Herlé-Ruys
Status
Beschikbaar
Vraagprijs
€ 400.000,-
Woonoppervlakte
83 m2
Perceeloppervlakte
290 m2
Externe bergruimte
38 m2
Gebouwgebonden buitenruimte
0 m2
Overige inpandige ruimte
21 m2
Inhoud
369 m3
Aantal kamers
3
Aantal slaapkamers
2
Vraagprijs: € 400.000,-
2 slaapkamers
Energielabel D
83 m2 woonoppervlak
290 m2 perceeloppervlak

Kom in contact met Richard Herlé-Ruys
[toon_buurt_intro]
Lorem ipsum dolor sit amet, consetetur sadipscing elitr, sed diam nonumy eirmod tempor invidunt ut labore et dolore magna aliquyam erat, sed diam voluptua. At vero eos et accusam et justo duo dolores et ea rebum. Stet clita kasd gubergren, no sea takimata sanctus est Lorem ipsum dolor sit amet. Lorem ipsum

























































Hier voelt alles net even ruimer, lichter en vrijer… Alsof het uitzicht je elke dag opnieuw welkom heet. Aan Voorkamp 40 in Beets, staat een 2-onder-1-kap op een plek die je zelden tegenkomt. Vrij uitzicht over de landerijen, een groot perceel, een zonnige tuin op het westen en een vrijstaande garage van maar liefst 38 m². Tel daar het parkeren op eigen erf bij op en je voelt meteen: hier klopt het plaatje. Je woont hier in het hart van Beets. Een dorp waar de basisschool, de kroeg en het kerkje nog gewoon tegenover elkaar liggen. Een plek waar mensen elkaar nog groeten. En tegelijk zit je verrassend centraal, met steden als Hoorn, Alkmaar, Purmerend en zelfs Amsterdam binnen bereik. Dorps wonen zoals het bedoeld is. Het huis is van binnen gedateerd. Dit is echt een klushuis, en dat zeggen we bewust. Want juist daarin schuilt de kans. De basis is goed, met een goede fundering en onder andere hardhouten kozijnen. Hier creëer je jouw eigen stijl, jouw indeling en jouw toekomst. En eerlijk is eerlijk: op dit soort plekken wordt zelden iets aangeboden: Als je hier eenmaal zit, dan wil je eigenlijk nooit meer weg. Indeling: Je komt binnen in de entree met meterkast, toilet en trapopgang. Vanuit hier stap je de woonkamer in. Een fijne, lichte ruimte met zicht op de tuin en de landerijen daarachter. De keuken ligt aan de achterzijde en biedt direct toegang tot buiten. Op de eerste verdieping vind je twee slaapkamers. Beide zijn ruim van formaat en goed in te delen. De badkamer is gerealiseerd in voormalige derde slaapkamer en is daardoor lekker ruim. Hier vind je een douche, ligbad, toilet en wastafelmeubel. Op de overloop is nog een extra bergkast. De tweede verdieping is nu in gebruik als bergzolder en te bereiken via een vlizotrap. Hier ligt een mooie kans: door het plaatsen van een vaste trap en het toevoegen van extra daglicht creëer je hier eenvoudig circa 21 m² extra woonoppervlakte. De ruimte wordt natuurlijk nog groter als je dakkapellen gaat plaatsen. Ideaal voor een extra slaapkamer, werkruimte of misschien wel een eigen verdieping voor een opgroeiend kind. Buiten ervaar je pas echt wat deze plek bijzonder maakt. De tuin ligt op het westen, wat betekent dat je hier tot in de avond van de zon geniet. Met vrij uitzicht en geen achterburen kijk je uit over groen en lucht. Rust, ruimte en elke avond een zonsondergang die nooit verveelt. Op het erf is ruimte om te parkeren en de vrijstaande garage van 38 m² biedt eindeloos veel mogelijkheden. Van hobbyruimte tot werkplek of atelier aan huis. Nog even alles op een rijtje: – 2-onder-1-kap huis op een unieke plek in Beets – Vrij uitzicht over de landerijen – Groot perceel met zonnige tuin op het westen – Vrijstaande garage van 38 m² – Tweede verdieping met uitbreidingsmogelijkheid van circa 21 m² – Klushuis met veel potentie en een goede basis Zie jij de kans die hier ligt én het leven dat je hier kunt opbouwen? Plan dan snel een bezichtiging en ervaar het zelf. Bekijk ook zeker de woningvideo voor een compleet beeld van deze bijzondere plek.
Hier voelt alles net even ruimer, lichter en vrijer… Alsof het uitzicht je elke dag opnieuw welkom heet. Aan Voorkamp 40 in Beets, staat een 2-onder-1-kap op een plek die je zelden tegenkomt. Vrij uitzicht over de landerijen, een groot perceel, een zonnige tuin op het westen en een vrijstaande garage van maar liefst 38 m². Tel daar het parkeren op eigen erf bij op en je voelt meteen: hier klopt het plaatje. Je woont hier in het hart van Beets. Een dorp waar de basisschool, de kroeg en het kerkje nog gewoon tegenover elkaar liggen. Een plek waar mensen elkaar nog groeten. En tegelijk zit je verrassend centraal, met steden als Hoorn, Alkmaar, Purmerend en zelfs Amsterdam binnen bereik. Dorps wonen zoals het bedoeld is. Het huis is van binnen gedateerd. Dit is echt een klushuis, en dat zeggen we bewust. Want juist daarin schuilt de kans. De basis is goed, met een goede fundering en onder andere hardhouten kozijnen. Hier creëer je jouw eigen stijl, jouw indeling en jouw toekomst. En eerlijk is eerlijk: op dit soort plekken wordt zelden iets aangeboden: Als je hier eenmaal zit, dan wil je eigenlijk nooit meer weg. Indeling: Je komt binnen in de entree met meterkast, toilet en trapopgang. Vanuit hier stap je de woonkamer in. Een fijne, lichte ruimte met zicht op de tuin en de landerijen daarachter. De keuken ligt aan de achterzijde en biedt direct toegang tot buiten. Op de eerste verdieping vind je twee slaapkamers. Beide zijn ruim van formaat en goed in te delen. De badkamer is gerealiseerd in voormalige derde slaapkamer en is daardoor lekker ruim. Hier vind je een douche, ligbad, toilet en wastafelmeubel. Op de overloop is nog een extra bergkast. De tweede verdieping is nu in gebruik als bergzolder en te bereiken via een vlizotrap. Hier ligt een mooie kans: door het plaatsen van een vaste trap en het toevoegen van extra daglicht creëer je hier eenvoudig circa 21 m² extra woonoppervlakte. De ruimte wordt natuurlijk nog groter als je dakkapellen gaat plaatsen. Ideaal voor een extra slaapkamer, werkruimte of misschien wel een eigen verdieping voor een opgroeiend kind. Buiten ervaar je pas echt wat deze plek bijzonder maakt. De tuin ligt op het westen, wat betekent dat je hier tot in de avond van de zon geniet. Met vrij uitzicht en geen achterburen kijk je uit over groen en lucht. Rust, ruimte en elke avond een zonsondergang die nooit verveelt. Op het erf is ruimte om te parkeren en de vrijstaande garage van 38 m² biedt eindeloos veel mogelijkheden. Van hobbyruimte tot werkplek of atelier aan huis. Nog even alles op een rijtje: – 2-onder-1-kap huis op een unieke plek in Beets – Vrij uitzicht over de landerijen – Groot perceel met zonnige tuin op het westen – Vrijstaande garage van 38 m² – Tweede verdieping met uitbreidingsmogelijkheid van circa 21 m² – Klushuis met veel potentie en een goede basis Zie jij de kans die hier ligt én het leven dat je hier kunt opbouwen? Plan dan snel een bezichtiging en ervaar het zelf. Bekijk ook zeker de woningvideo voor een compleet beeld van deze bijzondere plek.