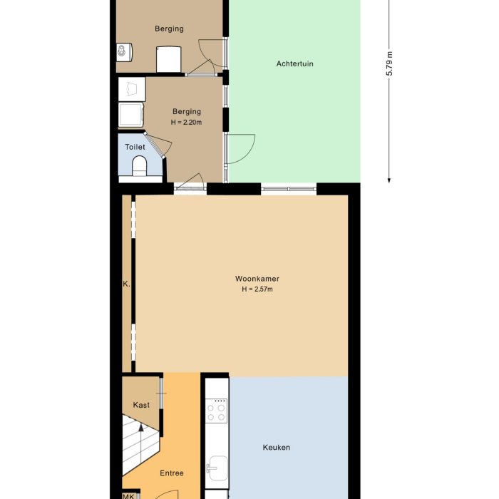
Waar karakter en luxe samenkomen: Vooruitstraat 107 Deze instapklare stadswoning in het geliefde centrum van Purmerend is tot in de puntjes gerenoveerd en klaar voor de toekomst. Met slimme domotica, strak gestuukte ruimtes, twee slaapkamers én een royaal dakterras combineert dit huis comfort, luxe en sfeer op een unieke manier. Ook heel belangrijk: de fundering is al vernieuwd evenals de gehele elektrische installatie en leidingen! Wonen in het historische hart van Purmerend De Vooruitstraat is een knusse straat met betrokken buren, sfeervolle panden en, als kers op de taart, jaarlijkse kerstverlichting die door de bewoners samen wordt geregeld. Hier woon je op steenworp afstand van het bruisende centrum, met z’n winkels, horeca en het theaterplein. Alles is op loop- of fietsafstand, van de supermarkt tot het station. Via de entree met vernieuwde meterkast (10 groepen + kookgroep) kom je in de lichte leefkeuken, voorzien van een Bora inductiekookplaat, koel-/vriescombi, oven en vaatwasser. De aangrenzende woonkamer is strak en sfeervol afgewerkt, met luxe inbouwverlichting en een schitterende cinewall. Verder heb je geïsoleerde wanden, vloeren én plafonds. Alles is vernieuwd: elektra, cv-leidingen én de ketel (2024). In de bijkeuken vind je handige bergruimte en toegang tot het moderne toilet. Op de eerste verdieping bevinden zich twee ruime slaapkamers en een stijlvolle, zes maanden jonge badkamer. Hier geniet je van een moderne inloopdouche, inbouwkranen en een elegant, op maat gemaakt badmeubel. De slimme verlichting en bediening van buitenlampen maken het geheel helemaal af. Boven de verdieping ligt nog een vliering; ideaal voor koffers, dozen en kerstdecoratie. Een tuin én een dakterras, wat wil je nog meer? De achtertuin is in 2024 opnieuw aangelegd, compleet met houten schutting en toegang tot de achterom. Vanuit de achterom heb je toegang tot de aangebouwde fietsenberging. Maar het echte pareltje? Dat is het fijne dakterras van bijna 16 m², waar je op zomeravonden tot een uur of acht van de zon geniet. Een heerlijk verlengstuk van je leefruimte, hoog en privé. Kort samengevat: - Instapklaar woonhuis met domoticasysteem - Twee ruime slaapkamers + vliering - Luxe keuken met Bora-kookplaat en inbouwapparatuur - Badkamer vernieuwd in 2024 met inloopdouche en designafwerking - Volledig geïsoleerd (vloeren, wanden, plafond, dubbel glas) - Nieuw elektra, cv-leidingen en ketel (2023) - Tuin én luxe dakterras met zon tot ca. 20.00 uur - Buitenlampen voor én achter via domotica bedienbaar - Kozijnen voorzijde geschilderd in 2024 - Fundering hersteld in 1999 Vooruit denken is vooruit wonen – ontdek Vooruitstraat 107. Plan snel je bezichtiging en ervaar het zelf.

Kom in contact met Gioya Mac Donald
Status
Verkocht
Vraagprijs
€ 425.000,-
Woonoppervlakte
85 m2
Perceeloppervlakte
81 m2
Externe bergruimte
2 m2
Gebouwgebonden buitenruimte
16 m2
Overige inpandige ruimte
6 m2
Inhoud
357 m3
Aantal kamers
3
Aantal slaapkamers
2
Vraagprijs: € 425.000,-
2 slaapkamers
Energielabel C
85 m2 woonoppervlak
81 m2 perceeloppervlak

Kom in contact met Gioya Mac Donald
[toon_buurt_intro]
Lorem ipsum dolor sit amet, consetetur sadipscing elitr, sed diam nonumy eirmod tempor invidunt ut labore et dolore magna aliquyam erat, sed diam voluptua. At vero eos et accusam et justo duo dolores et ea rebum. Stet clita kasd gubergren, no sea takimata sanctus est Lorem ipsum dolor sit amet. Lorem ipsum


















































Waar karakter en luxe samenkomen: Vooruitstraat 107 Deze instapklare stadswoning in het geliefde centrum van Purmerend is tot in de puntjes gerenoveerd en klaar voor de toekomst. Met slimme domotica, strak gestuukte ruimtes, twee slaapkamers én een royaal dakterras combineert dit huis comfort, luxe en sfeer op een unieke manier. Ook heel belangrijk: de fundering is al vernieuwd evenals de gehele elektrische installatie en leidingen! Wonen in het historische hart van Purmerend De Vooruitstraat is een knusse straat met betrokken buren, sfeervolle panden en, als kers op de taart, jaarlijkse kerstverlichting die door de bewoners samen wordt geregeld. Hier woon je op steenworp afstand van het bruisende centrum, met z’n winkels, horeca en het theaterplein. Alles is op loop- of fietsafstand, van de supermarkt tot het station. Via de entree met vernieuwde meterkast (10 groepen + kookgroep) kom je in de lichte leefkeuken, voorzien van een Bora inductiekookplaat, koel-/vriescombi, oven en vaatwasser. De aangrenzende woonkamer is strak en sfeervol afgewerkt, met luxe inbouwverlichting en een schitterende cinewall. Verder heb je geïsoleerde wanden, vloeren én plafonds. Alles is vernieuwd: elektra, cv-leidingen én de ketel (2024). In de bijkeuken vind je handige bergruimte en toegang tot het moderne toilet. Op de eerste verdieping bevinden zich twee ruime slaapkamers en een stijlvolle, zes maanden jonge badkamer. Hier geniet je van een moderne inloopdouche, inbouwkranen en een elegant, op maat gemaakt badmeubel. De slimme verlichting en bediening van buitenlampen maken het geheel helemaal af. Boven de verdieping ligt nog een vliering; ideaal voor koffers, dozen en kerstdecoratie. Een tuin én een dakterras, wat wil je nog meer? De achtertuin is in 2024 opnieuw aangelegd, compleet met houten schutting en toegang tot de achterom. Vanuit de achterom heb je toegang tot de aangebouwde fietsenberging. Maar het echte pareltje? Dat is het fijne dakterras van bijna 16 m², waar je op zomeravonden tot een uur of acht van de zon geniet. Een heerlijk verlengstuk van je leefruimte, hoog en privé. Kort samengevat: – Instapklaar woonhuis met domoticasysteem – Twee ruime slaapkamers + vliering – Luxe keuken met Bora-kookplaat en inbouwapparatuur – Badkamer vernieuwd in 2024 met inloopdouche en designafwerking – Volledig geïsoleerd (vloeren, wanden, plafond, dubbel glas) – Nieuw elektra, cv-leidingen en ketel (2023) – Tuin én luxe dakterras met zon tot ca. 20.00 uur – Buitenlampen voor én achter via domotica bedienbaar – Kozijnen voorzijde geschilderd in 2024 – Fundering hersteld in 1999 Vooruit denken is vooruit wonen – ontdek Vooruitstraat 107. Plan snel je bezichtiging en ervaar het zelf.
Waar karakter en luxe samenkomen: Vooruitstraat 107 Deze instapklare stadswoning in het geliefde centrum van Purmerend is tot in de puntjes gerenoveerd en klaar voor de toekomst. Met slimme domotica, strak gestuukte ruimtes, twee slaapkamers én een royaal dakterras combineert dit huis comfort, luxe en sfeer op een unieke manier. Ook heel belangrijk: de fundering is al vernieuwd evenals de gehele elektrische installatie en leidingen! Wonen in het historische hart van Purmerend De Vooruitstraat is een knusse straat met betrokken buren, sfeervolle panden en, als kers op de taart, jaarlijkse kerstverlichting die door de bewoners samen wordt geregeld. Hier woon je op steenworp afstand van het bruisende centrum, met z’n winkels, horeca en het theaterplein. Alles is op loop- of fietsafstand, van de supermarkt tot het station. Via de entree met vernieuwde meterkast (10 groepen + kookgroep) kom je in de lichte leefkeuken, voorzien van een Bora inductiekookplaat, koel-/vriescombi, oven en vaatwasser. De aangrenzende woonkamer is strak en sfeervol afgewerkt, met luxe inbouwverlichting en een schitterende cinewall. Verder heb je geïsoleerde wanden, vloeren én plafonds. Alles is vernieuwd: elektra, cv-leidingen én de ketel (2024). In de bijkeuken vind je handige bergruimte en toegang tot het moderne toilet. Op de eerste verdieping bevinden zich twee ruime slaapkamers en een stijlvolle, zes maanden jonge badkamer. Hier geniet je van een moderne inloopdouche, inbouwkranen en een elegant, op maat gemaakt badmeubel. De slimme verlichting en bediening van buitenlampen maken het geheel helemaal af. Boven de verdieping ligt nog een vliering; ideaal voor koffers, dozen en kerstdecoratie. Een tuin én een dakterras, wat wil je nog meer? De achtertuin is in 2024 opnieuw aangelegd, compleet met houten schutting en toegang tot de achterom. Vanuit de achterom heb je toegang tot de aangebouwde fietsenberging. Maar het echte pareltje? Dat is het fijne dakterras van bijna 16 m², waar je op zomeravonden tot een uur of acht van de zon geniet. Een heerlijk verlengstuk van je leefruimte, hoog en privé. Kort samengevat: – Instapklaar woonhuis met domoticasysteem – Twee ruime slaapkamers + vliering – Luxe keuken met Bora-kookplaat en inbouwapparatuur – Badkamer vernieuwd in 2024 met inloopdouche en designafwerking – Volledig geïsoleerd (vloeren, wanden, plafond, dubbel glas) – Nieuw elektra, cv-leidingen en ketel (2023) – Tuin én luxe dakterras met zon tot ca. 20.00 uur – Buitenlampen voor én achter via domotica bedienbaar – Kozijnen voorzijde geschilderd in 2024 – Fundering hersteld in 1999 Vooruit denken is vooruit wonen – ontdek Vooruitstraat 107. Plan snel je bezichtiging en ervaar het zelf.