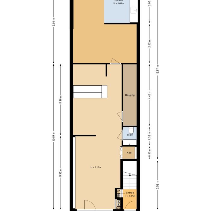
Aandacht maakt het verschil tussen zien wat er is en voelen wat hier allemaal kan ontstaan. De Vooruitstraat 29 en 31 is een eenmalige kans dat je niet in één hokje stopt. Hier heb je een volledige benedenruimte die je naar eigen inzicht gebruikt, met daarboven een dubbele bovenwoning met dakterras. Twee huisnummers, gescheiden aansluitingen en een indeling die zich moeiteloos aanpast aan jouw plannen. Het heeft een gemengde bestemming dus volop mogelijkheden. Of je het nu zelf wil bewonen, wil verhuren, deels je bedrijf er wil vestigen, of een combinatie hiervan, of ontwikkelen, dit is zo’n kans die je maar zelden tegenkomt. De Vooruitstraat is niet voor niets een zeer gewilde locatie. Dit is precies wat je zoekt als je rustig wilt wonen, maar wel alles dichtbij wilt hebben. Je loopt zo richting het centrum van Purmerend voor je dagelijkse boodschappen, een goede koffie of een avondje uit. Scholen, openbaar vervoer en uitvalswegen liggen binnen handbereik. Een fijne, vertrouwde buurt met een levendig randje. Je komt binnen op de begane grond, waar direct de veelzijdigheid opvalt. Een ruime open indeling met eigen keuken maakt dit een ideale plek voor een bedrijf aan huis, atelier of praktijkruimte. Daarnaast is er een toilet en een extra kamer die je kunt gebruiken als kantoor of opslag. Ook heeft de begane grond een eigen CV aansluiting en nutsvoorzieningen Je zou hier natuurlijk een zelfstandige woonruimte kunnen realiseren, of misschien wel een kangoeroe-woning. Alles voelt praktisch en doordacht, met de vrijheid om het volledig naar je eigen hand te zetten. Via de eigen voordeur en opgang bereik je de bovenwoning. Op de eerste verdieping is eerst een kleine overloop met een toilet. We lopen door naar de verrassend lichte woonkamer met een fijne breedte en een open verbinding naar de eetkamer. De eenvoudige keuken ligt aan de achterzijde en sluit mooi aan op het leefgedeelte. Vanuit hier stap je zo het royale dakterras op, waar je geniet van vrijheid en buitenruimte midden in de stad. Hier begin je de dag met een kop koffie in de zon en sluit je hem af met een goed glas wijn. Een plek waar je verrassend vrij zit midden in het centrum. De tweede verdieping biedt drie slaapkamers, elk met een eigen sfeer en indelingsmogelijkheden. Ideaal voor een gezin, maar ook perfect om te combineren met werken aan huis. De badkamer is centraal gelegen en praktisch ingericht. Op deze verdieping voel je opnieuw hoeveel flexibiliteit dit huis biedt. Nog even alles op een rijtje: - Geheel pand met bedrijfsruimte en dubbele bovenwoning - Twee huisnummers en gescheiden nutsvoorzieningen - Multifunctionele begane grond met eigen voorzieningen - Volwaardige bovenwoning met eigen opgang en 3 slaapkamers - Ideaal voor investeren, combineren of ontwikkelen - Flexibel in gebruik: wonen, werken, verhuren of combineren - Ideaal voor ondernemers, beleggers en/of dubbele bewoning - Mogelijkheid voor kangoeroewonen of samengesteld gezin - Groot dakterras met vrij gevoel Zie jij het al voor je? Werken beneden, wonen boven. Of juist slim splitsen en verhuren. Misschien wel samen wonen met familie, maar toch ieder je eigen plek. In de woningvideo nemen we je mee door het pand en voel je direct hoeveel potentie hier zit. Plan snel een bezichtiging en ontdek zelf wat hier mogelijk is. Dit soort kansen… zie je niet vaak.

Kom in contact met Richard Herlé-Ruys
Status
Beschikbaar
Vraagprijs
€ 500.000,-
Woonoppervlakte
155 m2
Perceeloppervlakte
84 m2
Externe bergruimte
0 m2
Gebouwgebonden buitenruimte
30 m2
Overige inpandige ruimte
4 m2
Inhoud
578 m3
Aantal kamers
6
Aantal slaapkamers
4
Vraagprijs: € 500.000,-
4 slaapkamers
Energielabel D
155 m2 woonoppervlak
84 m2 perceeloppervlak

Kom in contact met Richard Herlé-Ruys
[toon_buurt_intro]
Lorem ipsum dolor sit amet, consetetur sadipscing elitr, sed diam nonumy eirmod tempor invidunt ut labore et dolore magna aliquyam erat, sed diam voluptua. At vero eos et accusam et justo duo dolores et ea rebum. Stet clita kasd gubergren, no sea takimata sanctus est Lorem ipsum dolor sit amet. Lorem ipsum
















































Aandacht maakt het verschil tussen zien wat er is en voelen wat hier allemaal kan ontstaan. De Vooruitstraat 29 en 31 is een eenmalige kans dat je niet in één hokje stopt. Hier heb je een volledige benedenruimte die je naar eigen inzicht gebruikt, met daarboven een dubbele bovenwoning met dakterras. Twee huisnummers, gescheiden aansluitingen en een indeling die zich moeiteloos aanpast aan jouw plannen. Het heeft een gemengde bestemming dus volop mogelijkheden. Of je het nu zelf wil bewonen, wil verhuren, deels je bedrijf er wil vestigen, of een combinatie hiervan, of ontwikkelen, dit is zo’n kans die je maar zelden tegenkomt. De Vooruitstraat is niet voor niets een zeer gewilde locatie. Dit is precies wat je zoekt als je rustig wilt wonen, maar wel alles dichtbij wilt hebben. Je loopt zo richting het centrum van Purmerend voor je dagelijkse boodschappen, een goede koffie of een avondje uit. Scholen, openbaar vervoer en uitvalswegen liggen binnen handbereik. Een fijne, vertrouwde buurt met een levendig randje. Je komt binnen op de begane grond, waar direct de veelzijdigheid opvalt. Een ruime open indeling met eigen keuken maakt dit een ideale plek voor een bedrijf aan huis, atelier of praktijkruimte. Daarnaast is er een toilet en een extra kamer die je kunt gebruiken als kantoor of opslag. Ook heeft de begane grond een eigen CV aansluiting en nutsvoorzieningen Je zou hier natuurlijk een zelfstandige woonruimte kunnen realiseren, of misschien wel een kangoeroe-woning. Alles voelt praktisch en doordacht, met de vrijheid om het volledig naar je eigen hand te zetten. Via de eigen voordeur en opgang bereik je de bovenwoning. Op de eerste verdieping is eerst een kleine overloop met een toilet. We lopen door naar de verrassend lichte woonkamer met een fijne breedte en een open verbinding naar de eetkamer. De eenvoudige keuken ligt aan de achterzijde en sluit mooi aan op het leefgedeelte. Vanuit hier stap je zo het royale dakterras op, waar je geniet van vrijheid en buitenruimte midden in de stad. Hier begin je de dag met een kop koffie in de zon en sluit je hem af met een goed glas wijn. Een plek waar je verrassend vrij zit midden in het centrum. De tweede verdieping biedt drie slaapkamers, elk met een eigen sfeer en indelingsmogelijkheden. Ideaal voor een gezin, maar ook perfect om te combineren met werken aan huis. De badkamer is centraal gelegen en praktisch ingericht. Op deze verdieping voel je opnieuw hoeveel flexibiliteit dit huis biedt. Nog even alles op een rijtje: – Geheel pand met bedrijfsruimte en dubbele bovenwoning – Twee huisnummers en gescheiden nutsvoorzieningen – Multifunctionele begane grond met eigen voorzieningen – Volwaardige bovenwoning met eigen opgang en 3 slaapkamers – Ideaal voor investeren, combineren of ontwikkelen – Flexibel in gebruik: wonen, werken, verhuren of combineren – Ideaal voor ondernemers, beleggers en/of dubbele bewoning – Mogelijkheid voor kangoeroewonen of samengesteld gezin – Groot dakterras met vrij gevoel Zie jij het al voor je? Werken beneden, wonen boven. Of juist slim splitsen en verhuren. Misschien wel samen wonen met familie, maar toch ieder je eigen plek. In de woningvideo nemen we je mee door het pand en voel je direct hoeveel potentie hier zit. Plan snel een bezichtiging en ontdek zelf wat hier mogelijk is. Dit soort kansen… zie je niet vaak.
Aandacht maakt het verschil tussen zien wat er is en voelen wat hier allemaal kan ontstaan. De Vooruitstraat 29 en 31 is een eenmalige kans dat je niet in één hokje stopt. Hier heb je een volledige benedenruimte die je naar eigen inzicht gebruikt, met daarboven een dubbele bovenwoning met dakterras. Twee huisnummers, gescheiden aansluitingen en een indeling die zich moeiteloos aanpast aan jouw plannen. Het heeft een gemengde bestemming dus volop mogelijkheden. Of je het nu zelf wil bewonen, wil verhuren, deels je bedrijf er wil vestigen, of een combinatie hiervan, of ontwikkelen, dit is zo’n kans die je maar zelden tegenkomt. De Vooruitstraat is niet voor niets een zeer gewilde locatie. Dit is precies wat je zoekt als je rustig wilt wonen, maar wel alles dichtbij wilt hebben. Je loopt zo richting het centrum van Purmerend voor je dagelijkse boodschappen, een goede koffie of een avondje uit. Scholen, openbaar vervoer en uitvalswegen liggen binnen handbereik. Een fijne, vertrouwde buurt met een levendig randje. Je komt binnen op de begane grond, waar direct de veelzijdigheid opvalt. Een ruime open indeling met eigen keuken maakt dit een ideale plek voor een bedrijf aan huis, atelier of praktijkruimte. Daarnaast is er een toilet en een extra kamer die je kunt gebruiken als kantoor of opslag. Ook heeft de begane grond een eigen CV aansluiting en nutsvoorzieningen Je zou hier natuurlijk een zelfstandige woonruimte kunnen realiseren, of misschien wel een kangoeroe-woning. Alles voelt praktisch en doordacht, met de vrijheid om het volledig naar je eigen hand te zetten. Via de eigen voordeur en opgang bereik je de bovenwoning. Op de eerste verdieping is eerst een kleine overloop met een toilet. We lopen door naar de verrassend lichte woonkamer met een fijne breedte en een open verbinding naar de eetkamer. De eenvoudige keuken ligt aan de achterzijde en sluit mooi aan op het leefgedeelte. Vanuit hier stap je zo het royale dakterras op, waar je geniet van vrijheid en buitenruimte midden in de stad. Hier begin je de dag met een kop koffie in de zon en sluit je hem af met een goed glas wijn. Een plek waar je verrassend vrij zit midden in het centrum. De tweede verdieping biedt drie slaapkamers, elk met een eigen sfeer en indelingsmogelijkheden. Ideaal voor een gezin, maar ook perfect om te combineren met werken aan huis. De badkamer is centraal gelegen en praktisch ingericht. Op deze verdieping voel je opnieuw hoeveel flexibiliteit dit huis biedt. Nog even alles op een rijtje: – Geheel pand met bedrijfsruimte en dubbele bovenwoning – Twee huisnummers en gescheiden nutsvoorzieningen – Multifunctionele begane grond met eigen voorzieningen – Volwaardige bovenwoning met eigen opgang en 3 slaapkamers – Ideaal voor investeren, combineren of ontwikkelen – Flexibel in gebruik: wonen, werken, verhuren of combineren – Ideaal voor ondernemers, beleggers en/of dubbele bewoning – Mogelijkheid voor kangoeroewonen of samengesteld gezin – Groot dakterras met vrij gevoel Zie jij het al voor je? Werken beneden, wonen boven. Of juist slim splitsen en verhuren. Misschien wel samen wonen met familie, maar toch ieder je eigen plek. In de woningvideo nemen we je mee door het pand en voel je direct hoeveel potentie hier zit. Plan snel een bezichtiging en ontdek zelf wat hier mogelijk is. Dit soort kansen… zie je niet vaak.