In de Bunderstraat komt alles samen: ruimte, comfort én heel veel zon. Yes, dit is ‘m: jouw instapklare eindwoning met zonnige tuin én airco in elke kamer! Pak je spullen en trek erin, want deze woning aan de Bunderstraat is helemaal af. Elke kamer heeft een eigen airco die niet alleen koelt, maar ook verwarmt. Lekker comfortabel én minder afhankelijk van de stadsverwarming. De 9 zonnepanelen helpen daar natuurlijk ook flink bij. Geniet van de rust en privacy in de grote zonnige tuin, terwijl jij de voordelen van een eindwoning meepakt: meer licht, ruimte en vrijheid! Wonen in Purmer-Noord: groen, rustig en alles dichtbij Je woont hier in een rustige en groene buurt in Purmerend. Zin in een wandeling? Park De Uitvlugt ligt op een paar minuten lopen. Voor je dagelijkse boodschappen hoef je alleen de hoek om. Scholen, winkels en het Purmerbos zijn allemaal in de buurt. Even naar de stad? Je fietst zo naar het centrum! Binnenkomen maar! Via de entree en hal stap je de lichte woonkamer in. De laminaatvloer ligt er strak in en de muren zijn gestuukt. Dankzij het zijraam komt er extra veel licht binnen. De airco regel je makkelijk met je telefoon of afstandsbediening. De open L-vormige keuken is nog maar 3,5 jaar oud en voorzien van alle apparatuur: inductieplaat, oven, koelkast, vriezer en vaatwasser. Trap op naar boven De eerste verdieping telt twee slaapkamers, allemaal met een frisse laminaatvloer uit 2024. De slaapkamers zijn voorzien van airco’s en strakke afwerking. Mocht jij graag een derde slaapkamer op deze verdieping willen is dat uiteraard mogelijk. De badkamer is voorzien van een douchecabine, ligbad, toilet. Via de vaste trap bereik je de derde slaapkamer, Ook deze kamer is voorzien van een fijne airco Extra handig: achter de schuifdeur vind je nog een bergruimte, waar je ook de wasmachine en droger vindt. Hier tref je ook een vaste trap naar de vliering. Heerlijke tuin met volop zon De tuin is 12 bij 5 meter, betegeld en voorzien van een stenen én houten berging. Dankzij de ligging op het noordoosten en het ontbreken van directe bebouwing rondom, heb je hier de hele dag zon. Zet een loungeset neer, hang een hangmat op, of bouw meerdere zitjes – hier kan het allemaal. Highlights op een rijtje: • Gelegen aan een fijn hofje • 100 m² woonoppervlak • 9 zonnepanelen en in elke kamer een airco, dus minder afhankelijk van stadsverwarming • Energielabel A • Keuken 3,5 jaar oud • airco's verwarmen, koelen, zuiveren de lucht en ontvocht de ruimtes! Yes, dit is ‘m: jouw instapklare eindwoning met zonnige tuin én airco in elke kamer! Ben jij die jonge doorstromer of wil jij direct jouw woon carrière goed starten die op zoek is naar een modern en comfortabel huis met ruimte, rust en groen? Maak dan snel een afspraak voor een bezichtiging. Dit huis heeft het allemaal: 9 zonnepanelen, airco’s in elke kamer, een heerlijke zonnige tuin en een instapklare afwerking. Check vooral ook de woningvideo om alvast de sfeer te proeven. Tot snel aan de Bunderstraat!
In de Bunderstraat komt alles samen: ruimte, comfort én heel veel zon.
Yes, dit is ‘m: jouw instapklare eindwoning met zonnige tuin én airco in elke kamer!
Pak je spullen en trek erin, want deze woning aan de Bunderstraat is helemaal af. Elke kamer heeft een eigen airco die niet alleen koelt, maar ook verwarmt. Lekker comfortabel én minder afhankelijk van de stadsverwarming. De 9 zonnepanelen helpen daar natuurlijk ook flink bij. Geniet van de rust en privacy in de grote zonnige tuin, terwijl jij de voordelen van een eindwoning meepakt: meer licht, ruimte en vrijheid!
Wonen in Purmer-Noord: groen, rustig en alles dichtbij
Je woont hier in een rustige en groene buurt in Purmerend. Zin in een wandeling? Park De Uitvlugt ligt op een paar minuten lopen. Voor je dagelijkse boodschappen hoef je alleen de hoek om. Scholen, winkels en het Purmerbos zijn allemaal in de buurt. Even naar de stad? Je fietst zo naar het centrum!
Binnenkomen maar!
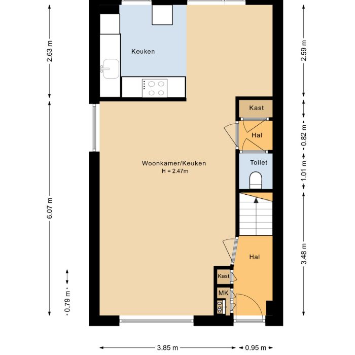
Via de entree en hal stap je de lichte woonkamer in. De laminaatvloer ligt er strak in en de muren zijn gestuukt. Dankzij het zijraam komt er extra veel licht binnen. De airco regel je makkelijk met je telefoon of afstandsbediening. De open L-vormige keuken is nog maar 3,5 jaar oud en voorzien van alle apparatuur: inductieplaat, oven, koelkast, vriezer en vaatwasser.
Trap op naar boven
De eerste verdieping telt twee slaapkamers, allemaal met een frisse laminaatvloer uit 2024. De slaapkamers zijn voorzien van airco’s en strakke afwerking. Mocht jij graag een derde slaapkamer op deze verdieping willen is dat uiteraard mogelijk.
De badkamer is voorzien van een douchecabine, ligbad, toilet.
Via de vaste trap bereik je de derde slaapkamer, Ook deze kamer is voorzien van een fijne airco
Extra handig: achter de schuifdeur vind je nog een bergruimte, waar je ook de wasmachine en droger vindt. Hier tref je ook een vaste trap naar de vliering.
Heerlijke tuin met volop zon De tuin is 12 bij 5 meter, betegeld en voorzien van een stenen én houten berging. Dankzij de ligging op het noordoosten en het ontbreken van directe bebouwing rondom, heb je hier de hele dag zon. Zet een loungeset neer, hang een hangmat op, of bouw meerdere zitjes – hier kan het allemaal.
Highlights op een rijtje:
• Gelegen aan een fijn hofje
• 100 m² woonoppervlak
• 9 zonnepanelen en in elke kamer een airco, dus minder afhankelijk van stadsverwarming
• Energielabel A
• Keuken 3,5 jaar oud
• airco's verwarmen, koelen, zuiveren de lucht en ontvocht de ruimtes!
Yes, dit is ‘m: jouw instapklare eindwoning met zonnige tuin én airco in elke kamer!
Ben jij die jonge doorstromer of wil jij direct jouw woon carrière goed starten die op zoek is naar een modern en comfortabel huis met ruimte, rust en groen? Maak dan snel een afspraak voor een bezichtiging. Dit huis heeft het allemaal: 9 zonnepanelen, airco’s in elke kamer, een heerlijke zonnige tuin en een instapklare afwerking. Check vooral ook de woningvideo om alvast de sfeer te proeven. Tot snel aan de Bunderstraat!

Kom in contact met Mariska Beentjes
Status
Verkocht
Vraagprijs
€ 435.000,-
Woonoppervlakte
100 m2
Perceeloppervlakte
126 m2
Externe bergruimte
14 m2
Gebouwgebonden buitenruimte
0 m2
Overige inpandige ruimte
2 m2
Inhoud
377 m3
Aantal kamers
4
Aantal slaapkamers
3
Vraagprijs: € 435.000,-
3 slaapkamers
Energielabel A
100 m2 woonoppervlak
126 m2 perceeloppervlak

Kom in contact met Mariska Beentjes
[toon_buurt_intro]
Lorem ipsum dolor sit amet, consetetur sadipscing elitr, sed diam nonumy eirmod tempor invidunt ut labore et dolore magna aliquyam erat, sed diam voluptua. At vero eos et accusam et justo duo dolores et ea rebum. Stet clita kasd gubergren, no sea takimata sanctus est Lorem ipsum dolor sit amet. Lorem ipsum






























































In de Bunderstraat komt alles samen: ruimte, comfort én heel veel zon. Yes, dit is ‘m: jouw instapklare eindwoning met zonnige tuin én airco in elke kamer! Pak je spullen en trek erin, want deze woning aan de Bunderstraat is helemaal af. Elke kamer heeft een eigen airco die niet alleen koelt, maar ook verwarmt. Lekker comfortabel én minder afhankelijk van de stadsverwarming. De 9 zonnepanelen helpen daar natuurlijk ook flink bij. Geniet van de rust en privacy in de grote zonnige tuin, terwijl jij de voordelen van een eindwoning meepakt: meer licht, ruimte en vrijheid! Wonen in Purmer-Noord: groen, rustig en alles dichtbij Je woont hier in een rustige en groene buurt in Purmerend. Zin in een wandeling? Park De Uitvlugt ligt op een paar minuten lopen. Voor je dagelijkse boodschappen hoef je alleen de hoek om. Scholen, winkels en het Purmerbos zijn allemaal in de buurt. Even naar de stad? Je fietst zo naar het centrum! Binnenkomen maar! Via de entree en hal stap je de lichte woonkamer in. De laminaatvloer ligt er strak in en de muren zijn gestuukt. Dankzij het zijraam komt er extra veel licht binnen. De airco regel je makkelijk met je telefoon of afstandsbediening. De open L-vormige keuken is nog maar 3,5 jaar oud en voorzien van alle apparatuur: inductieplaat, oven, koelkast, vriezer en vaatwasser. Trap op naar boven De eerste verdieping telt twee slaapkamers, allemaal met een frisse laminaatvloer uit 2024. De slaapkamers zijn voorzien van airco’s en strakke afwerking. Mocht jij graag een derde slaapkamer op deze verdieping willen is dat uiteraard mogelijk. De badkamer is voorzien van een douchecabine, ligbad, toilet. Via de vaste trap bereik je de derde slaapkamer, Ook deze kamer is voorzien van een fijne airco Extra handig: achter de schuifdeur vind je nog een bergruimte, waar je ook de wasmachine en droger vindt. Hier tref je ook een vaste trap naar de vliering. Heerlijke tuin met volop zon De tuin is 12 bij 5 meter, betegeld en voorzien van een stenen én houten berging. Dankzij de ligging op het noordoosten en het ontbreken van directe bebouwing rondom, heb je hier de hele dag zon. Zet een loungeset neer, hang een hangmat op, of bouw meerdere zitjes – hier kan het allemaal. Highlights op een rijtje: • Gelegen aan een fijn hofje • 100 m² woonoppervlak • 9 zonnepanelen en in elke kamer een airco, dus minder afhankelijk van stadsverwarming • Energielabel A • Keuken 3,5 jaar oud • airco’s verwarmen, koelen, zuiveren de lucht en ontvocht de ruimtes! Yes, dit is ‘m: jouw instapklare eindwoning met zonnige tuin én airco in elke kamer! Ben jij die jonge doorstromer of wil jij direct jouw woon carrière goed starten die op zoek is naar een modern en comfortabel huis met ruimte, rust en groen? Maak dan snel een afspraak voor een bezichtiging. Dit huis heeft het allemaal: 9 zonnepanelen, airco’s in elke kamer, een heerlijke zonnige tuin en een instapklare afwerking. Check vooral ook de woningvideo om alvast de sfeer te proeven. Tot snel aan de Bunderstraat!
In de Bunderstraat komt alles samen: ruimte, comfort én heel veel zon. Yes, dit is ‘m: jouw instapklare eindwoning met zonnige tuin én airco in elke kamer! Pak je spullen en trek erin, want deze woning aan de Bunderstraat is helemaal af. Elke kamer heeft een eigen airco die niet alleen koelt, maar ook verwarmt. Lekker comfortabel én minder afhankelijk van de stadsverwarming. De 9 zonnepanelen helpen daar natuurlijk ook flink bij. Geniet van de rust en privacy in de grote zonnige tuin, terwijl jij de voordelen van een eindwoning meepakt: meer licht, ruimte en vrijheid! Wonen in Purmer-Noord: groen, rustig en alles dichtbij Je woont hier in een rustige en groene buurt in Purmerend. Zin in een wandeling? Park De Uitvlugt ligt op een paar minuten lopen. Voor je dagelijkse boodschappen hoef je alleen de hoek om. Scholen, winkels en het Purmerbos zijn allemaal in de buurt. Even naar de stad? Je fietst zo naar het centrum! Binnenkomen maar! Via de entree en hal stap je de lichte woonkamer in. De laminaatvloer ligt er strak in en de muren zijn gestuukt. Dankzij het zijraam komt er extra veel licht binnen. De airco regel je makkelijk met je telefoon of afstandsbediening. De open L-vormige keuken is nog maar 3,5 jaar oud en voorzien van alle apparatuur: inductieplaat, oven, koelkast, vriezer en vaatwasser. Trap op naar boven De eerste verdieping telt twee slaapkamers, allemaal met een frisse laminaatvloer uit 2024. De slaapkamers zijn voorzien van airco’s en strakke afwerking. Mocht jij graag een derde slaapkamer op deze verdieping willen is dat uiteraard mogelijk. De badkamer is voorzien van een douchecabine, ligbad, toilet. Via de vaste trap bereik je de derde slaapkamer, Ook deze kamer is voorzien van een fijne airco Extra handig: achter de schuifdeur vind je nog een bergruimte, waar je ook de wasmachine en droger vindt. Hier tref je ook een vaste trap naar de vliering. Heerlijke tuin met volop zon De tuin is 12 bij 5 meter, betegeld en voorzien van een stenen én houten berging. Dankzij de ligging op het noordoosten en het ontbreken van directe bebouwing rondom, heb je hier de hele dag zon. Zet een loungeset neer, hang een hangmat op, of bouw meerdere zitjes – hier kan het allemaal. Highlights op een rijtje: • Gelegen aan een fijn hofje • 100 m² woonoppervlak • 9 zonnepanelen en in elke kamer een airco, dus minder afhankelijk van stadsverwarming • Energielabel A • Keuken 3,5 jaar oud • airco’s verwarmen, koelen, zuiveren de lucht en ontvocht de ruimtes! Yes, dit is ‘m: jouw instapklare eindwoning met zonnige tuin én airco in elke kamer! Ben jij die jonge doorstromer of wil jij direct jouw woon carrière goed starten die op zoek is naar een modern en comfortabel huis met ruimte, rust en groen? Maak dan snel een afspraak voor een bezichtiging. Dit huis heeft het allemaal: 9 zonnepanelen, airco’s in elke kamer, een heerlijke zonnige tuin en een instapklare afwerking. Check vooral ook de woningvideo om alvast de sfeer te proeven. Tot snel aan de Bunderstraat!