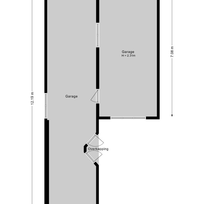
Hier koop je geen af huis, maar een huis vol potentie mét twee garages en een gloednieuwe badkamer En dat is precies wat dit huis zo interessant maakt. Je krijgt hier ruimte. Veel ruimte. Ruimte om te wonen, te werken, te klussen en vooral: om het helemaal naar je eigen hand te zetten. Met twee volwaardige garages, kunststof kozijnen en een nieuwe badkamer uit 2025 ligt de basis er al. De rest? Dat mag jij doen. En juist dát maakt dit huis zo leuk. Wonen in Kwadijk Jan Dignumszstraat 24 ligt in het gemoedelijke Kwadijk. Een dorpse sfeer met rust, ruimte en groen om je heen, terwijl Purmerend en Amsterdam verrassend dichtbij zijn. Ideaal als je graag rustig woont, maar wel snel onderweg wilt zijn. Hier groet je je buren nog en ervaar je het buitenleven, zonder afgelegen te zitten. Het park ligt om de hoek en aan het einde van de straat zit de basisschool ideaal dus! Laten we een kijkje gaan nemen! Je komt binnen via de entree met hal, waar je direct merkt dat dit een huis is met inhoud. Vanuit hier loop je door naar de royale woonkamer. Grote raampartijen zorgen voor veel licht en de afmetingen geven je alle vrijheid voor een fijne zithoek én een grote eettafel. De afwerking is gedateerd, maar dat zie je vooral als een kans: dit is een ruimte die vraagt om jouw ideeën. De keuken ligt apart en is eenvoudig van opzet. Ook hier geldt: functioneel, maar klaar voor een upgrade. Of je nu droomt van een open keuken, een kookeiland of juist een knusse leefkeuken de ruimte laat het toe. Het toilet op de begane grond is aanwezig en netjes, maar ouder. Eerste verdieping Op de eerste verdieping kom je uit op de overloop met toegang tot de slaapkamers en de badkamer. Er zijn momenteel twee slaapkamers, waarvan één bijzonder royaal. Deze kamer bestond eerder uit twee kamers en is eenvoudig weer terug te brengen naar drie slaapkamers op deze verdieping. Ideaal voor gezinnen of thuiswerkers. De badkamer is een groot pluspunt: deze is recent vernieuwd (2025) en voorzien van een inloopdouche, wastafel en toilet. Fris, modern en helemaal af. Hier hoef je voorlopig niets meer aan te doen. Tweede verdieping Via een vaste trap bereik je de tweede verdieping. Hier vind je de voorzolder met de cv-installatie (2012, in 2024 nog onderhouden) en extra bergruimte. De zolderkamer is ruim en praktisch, met grote bergkammen. De afwerking is eenvoudig en er zijn aandachtspunten zoals een ouder dakraam en zichtbare sporen van eerdere lekkage bij de dakkapel. Dit is typisch zo’n verdieping waar je met wat liefde en aandacht iets heel moois van kunt maken. Buitenruimte & garages En dan de garages. Twee stuks. Volwaardig en ruim. Perfect voor auto’s, motoren, opslag of een werkplaats aan huis. Dit is een zeldzaam voordeel dat je niet vaak tegenkomt zeker niet in combinatie met zoveel woonruimte. Of je nu hobbyist bent, ondernemer of gewoon graag ruimte hebt: hier zit je goed. Nog even alles op een rijtje: - Twee ruime garages - Nieuwe badkamer (2025) - Kunststof kozijnen - Veel woonruimte met flexibele indeling - Mogelijkheid tot 3 slaapkamers op de eerste verdieping - Kluswoning met volop potentie - 7 zonnepanelen 2024! Rustige, dorpse ligging met goede bereikbaarheid Dit huis is geen snelle instap, maar wel een ijzersterke basis. Voor wie door de huidige staat heen kan kijken en zin heeft om te creëren, ligt hier een kans met hoofdletter K. Zie jij jezelf hier al wonen, klussen en groeien? Plan dan snel een bezichtiging en bekijk ook zeker de woningvideo voor een nog beter beeld. Hier koop je geen af huis, maar een huis vol potentie mét twee garages en een gloednieuwe badkamer.

Kom in contact met Mariska Beentjes
Status
Verkocht
Vraagprijs
€ 400.000,-
Woonoppervlakte
113 m2
Perceeloppervlakte
255 m2
Externe bergruimte
66 m2
Gebouwgebonden buitenruimte
0 m2
Overige inpandige ruimte
0 m2
Inhoud
393 m3
Aantal kamers
4
Aantal slaapkamers
3
Vraagprijs: € 400.000,-
3 slaapkamers
Energielabel B
113 m2 woonoppervlak
255 m2 perceeloppervlak

Kom in contact met Mariska Beentjes
[toon_buurt_intro]
Lorem ipsum dolor sit amet, consetetur sadipscing elitr, sed diam nonumy eirmod tempor invidunt ut labore et dolore magna aliquyam erat, sed diam voluptua. At vero eos et accusam et justo duo dolores et ea rebum. Stet clita kasd gubergren, no sea takimata sanctus est Lorem ipsum dolor sit amet. Lorem ipsum
























































Hier koop je geen af huis, maar een huis vol potentie mét twee garages en een gloednieuwe badkamer En dat is precies wat dit huis zo interessant maakt. Je krijgt hier ruimte. Veel ruimte. Ruimte om te wonen, te werken, te klussen en vooral: om het helemaal naar je eigen hand te zetten. Met twee volwaardige garages, kunststof kozijnen en een nieuwe badkamer uit 2025 ligt de basis er al. De rest? Dat mag jij doen. En juist dát maakt dit huis zo leuk. Wonen in Kwadijk Jan Dignumszstraat 24 ligt in het gemoedelijke Kwadijk. Een dorpse sfeer met rust, ruimte en groen om je heen, terwijl Purmerend en Amsterdam verrassend dichtbij zijn. Ideaal als je graag rustig woont, maar wel snel onderweg wilt zijn. Hier groet je je buren nog en ervaar je het buitenleven, zonder afgelegen te zitten. Het park ligt om de hoek en aan het einde van de straat zit de basisschool ideaal dus! Laten we een kijkje gaan nemen! Je komt binnen via de entree met hal, waar je direct merkt dat dit een huis is met inhoud. Vanuit hier loop je door naar de royale woonkamer. Grote raampartijen zorgen voor veel licht en de afmetingen geven je alle vrijheid voor een fijne zithoek én een grote eettafel. De afwerking is gedateerd, maar dat zie je vooral als een kans: dit is een ruimte die vraagt om jouw ideeën. De keuken ligt apart en is eenvoudig van opzet. Ook hier geldt: functioneel, maar klaar voor een upgrade. Of je nu droomt van een open keuken, een kookeiland of juist een knusse leefkeuken de ruimte laat het toe. Het toilet op de begane grond is aanwezig en netjes, maar ouder. Eerste verdieping Op de eerste verdieping kom je uit op de overloop met toegang tot de slaapkamers en de badkamer. Er zijn momenteel twee slaapkamers, waarvan één bijzonder royaal. Deze kamer bestond eerder uit twee kamers en is eenvoudig weer terug te brengen naar drie slaapkamers op deze verdieping. Ideaal voor gezinnen of thuiswerkers. De badkamer is een groot pluspunt: deze is recent vernieuwd (2025) en voorzien van een inloopdouche, wastafel en toilet. Fris, modern en helemaal af. Hier hoef je voorlopig niets meer aan te doen. Tweede verdieping Via een vaste trap bereik je de tweede verdieping. Hier vind je de voorzolder met de cv-installatie (2012, in 2024 nog onderhouden) en extra bergruimte. De zolderkamer is ruim en praktisch, met grote bergkammen. De afwerking is eenvoudig en er zijn aandachtspunten zoals een ouder dakraam en zichtbare sporen van eerdere lekkage bij de dakkapel. Dit is typisch zo’n verdieping waar je met wat liefde en aandacht iets heel moois van kunt maken. Buitenruimte & garages En dan de garages. Twee stuks. Volwaardig en ruim. Perfect voor auto’s, motoren, opslag of een werkplaats aan huis. Dit is een zeldzaam voordeel dat je niet vaak tegenkomt zeker niet in combinatie met zoveel woonruimte. Of je nu hobbyist bent, ondernemer of gewoon graag ruimte hebt: hier zit je goed. Nog even alles op een rijtje: – Twee ruime garages – Nieuwe badkamer (2025) – Kunststof kozijnen – Veel woonruimte met flexibele indeling – Mogelijkheid tot 3 slaapkamers op de eerste verdieping – Kluswoning met volop potentie – 7 zonnepanelen 2024! Rustige, dorpse ligging met goede bereikbaarheid Dit huis is geen snelle instap, maar wel een ijzersterke basis. Voor wie door de huidige staat heen kan kijken en zin heeft om te creëren, ligt hier een kans met hoofdletter K. Zie jij jezelf hier al wonen, klussen en groeien? Plan dan snel een bezichtiging en bekijk ook zeker de woningvideo voor een nog beter beeld. Hier koop je geen af huis, maar een huis vol potentie mét twee garages en een gloednieuwe badkamer.
Hier koop je geen af huis, maar een huis vol potentie mét twee garages en een gloednieuwe badkamer En dat is precies wat dit huis zo interessant maakt. Je krijgt hier ruimte. Veel ruimte. Ruimte om te wonen, te werken, te klussen en vooral: om het helemaal naar je eigen hand te zetten. Met twee volwaardige garages, kunststof kozijnen en een nieuwe badkamer uit 2025 ligt de basis er al. De rest? Dat mag jij doen. En juist dát maakt dit huis zo leuk. Wonen in Kwadijk Jan Dignumszstraat 24 ligt in het gemoedelijke Kwadijk. Een dorpse sfeer met rust, ruimte en groen om je heen, terwijl Purmerend en Amsterdam verrassend dichtbij zijn. Ideaal als je graag rustig woont, maar wel snel onderweg wilt zijn. Hier groet je je buren nog en ervaar je het buitenleven, zonder afgelegen te zitten. Het park ligt om de hoek en aan het einde van de straat zit de basisschool ideaal dus! Laten we een kijkje gaan nemen! Je komt binnen via de entree met hal, waar je direct merkt dat dit een huis is met inhoud. Vanuit hier loop je door naar de royale woonkamer. Grote raampartijen zorgen voor veel licht en de afmetingen geven je alle vrijheid voor een fijne zithoek én een grote eettafel. De afwerking is gedateerd, maar dat zie je vooral als een kans: dit is een ruimte die vraagt om jouw ideeën. De keuken ligt apart en is eenvoudig van opzet. Ook hier geldt: functioneel, maar klaar voor een upgrade. Of je nu droomt van een open keuken, een kookeiland of juist een knusse leefkeuken de ruimte laat het toe. Het toilet op de begane grond is aanwezig en netjes, maar ouder. Eerste verdieping Op de eerste verdieping kom je uit op de overloop met toegang tot de slaapkamers en de badkamer. Er zijn momenteel twee slaapkamers, waarvan één bijzonder royaal. Deze kamer bestond eerder uit twee kamers en is eenvoudig weer terug te brengen naar drie slaapkamers op deze verdieping. Ideaal voor gezinnen of thuiswerkers. De badkamer is een groot pluspunt: deze is recent vernieuwd (2025) en voorzien van een inloopdouche, wastafel en toilet. Fris, modern en helemaal af. Hier hoef je voorlopig niets meer aan te doen. Tweede verdieping Via een vaste trap bereik je de tweede verdieping. Hier vind je de voorzolder met de cv-installatie (2012, in 2024 nog onderhouden) en extra bergruimte. De zolderkamer is ruim en praktisch, met grote bergkammen. De afwerking is eenvoudig en er zijn aandachtspunten zoals een ouder dakraam en zichtbare sporen van eerdere lekkage bij de dakkapel. Dit is typisch zo’n verdieping waar je met wat liefde en aandacht iets heel moois van kunt maken. Buitenruimte & garages En dan de garages. Twee stuks. Volwaardig en ruim. Perfect voor auto’s, motoren, opslag of een werkplaats aan huis. Dit is een zeldzaam voordeel dat je niet vaak tegenkomt zeker niet in combinatie met zoveel woonruimte. Of je nu hobbyist bent, ondernemer of gewoon graag ruimte hebt: hier zit je goed. Nog even alles op een rijtje: – Twee ruime garages – Nieuwe badkamer (2025) – Kunststof kozijnen – Veel woonruimte met flexibele indeling – Mogelijkheid tot 3 slaapkamers op de eerste verdieping – Kluswoning met volop potentie – 7 zonnepanelen 2024! Rustige, dorpse ligging met goede bereikbaarheid Dit huis is geen snelle instap, maar wel een ijzersterke basis. Voor wie door de huidige staat heen kan kijken en zin heeft om te creëren, ligt hier een kans met hoofdletter K. Zie jij jezelf hier al wonen, klussen en groeien? Plan dan snel een bezichtiging en bekijk ook zeker de woningvideo voor een nog beter beeld. Hier koop je geen af huis, maar een huis vol potentie mét twee garages en een gloednieuwe badkamer.