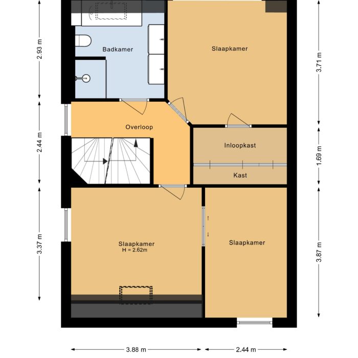
Bieden vanaf € 685.000,-- Wauw! Dat zijn ongetwijfeld je eerste gedachten wanneer je binnenstapt aan de Kollislaan 9 in Wijdenes. Deze twee-onder-een-kapwoning uit 2022 is niet alleen luxe en prachtig landelijk gelegen, maar ligt ook nog eens dicht bij diverse steden. Bovendien is de woning volledig energieneutraal! Nog een voordeel je hebt een eigen opgang naar de voormalige garage waardoor je hier een praktijk of werkplek aan huis kunt hebben. We vertellen je graag meer over dit fantastische huis én de fijne plek waar het staat. Wonen in Wijdenes – rust, ruimte en water dichtbij de stad Wijdenes is een charmant West-Fries dorp gelegen aan het prachtige Markermeer, tussen Hoorn en Enkhuizen. Hier geniet je van de rust van het buitenleven, met weidse uitzichten over het polderlandschap en het water op loop- of fietsafstand. Het dorp heeft een gemoedelijke sfeer en een actief verenigingsleven – ideaal voor wie houdt van dorps wonen met een warm gemeenschapsgevoel. Ondanks de landelijke ligging is de bereikbaarheid uitstekend: binnen ongeveer 10 minuten rijd je naar Hoorn, in 20 minuten sta je in Purmerend, en binnen 35 à 40 minuten bereik je Amsterdam. Zo combineer je het beste van twee werelden: de rust en ruimte van het platteland, met de stadse voorzieningen binnen handbereik. Wijdenes ligt bovendien vlak bij de dijk en het water van het Markermeer, waar je heerlijk kunt wandelen, fietsen of genieten van watersport. In de omgeving vind je diverse natuurgebieden, gezellige dorpen en historische stadjes die het leven hier extra bijzonder maken. Kortom: wonen in Wijdenes betekent wonen in een rustige, groene omgeving met de stad nooit ver weg – een plek waar je écht tot rust komt. Parkeren kan eenvoudig op eigen erf. Via de voordeur kom je binnen in de hal, met toegang tot het toilet, de trapopgang naar de eerste verdieping, de woonkamer en de woonkeuken. De woonkamer is ingedeeld in twee gezellige zitgedeeltes, zodat je altijd kunt kiezen waar je wilt ontspannen. Via de fraaie stalen deuren bereik je de woonkeuken – een echte blikvanger! Deze is voorzien van alle moderne gemakken, uitgevoerd in een luxe stijl en beschikt over veel opbergruimte. Aangrenzend vind je de bijkeuken, met aansluitingen voor de wasmachine en droger en extra bergruimte. Vanuit hier kom je in de voormalige garage, die is omgetoverd tot een stijlvol kantoor aan huis met een eigen entree. Ideaal voor een werkruimte of praktijk aan huis. Het gehele huis is voorzien van vloerverwarming én vloerkoeling. Op de eerste verdieping bevinden zich twee ruime slaapkamers en de badkamer. Oorspronkelijk waren dit drie slaapkamers, maar de huidige indeling biedt meer ruimte en comfort: de slaapkamer aan de voorzijde is extra groot gemaakt, terwijl de kamer aan de achterzijde is voorzien van een inloopkast. De luxe badkamer beschikt over een dubbele wastafel, douche, ligbad en toilet. Op de tweede verdieping is nog een ruime slaapkamer te vinden, met diverse leuke en speelse hoekjes. Buitenruimte: Aan de achterzijde van de woning is een fijne serre geplaatst waar je zowel in de zomer als in de koudere maanden heerlijk kunt zitten. De tuin ligt op het zuiden (tikkeltje westen), waardoor je de hele dag van de zon kunt genieten. Daarnaast is er een mooie pergola geplaatst en is er naast het huis een ruime houten schuur voor fietsen en tuingereedschap. Nog alles op een rij: - Bodemwarmtepomp met vloerverwarming en vloerkoeling - 22 zonnepanelen - Energieneutraal wonen is mogelijk, energielabel A+++ - Bijna 200m2 aan woonoppervlakte - Eigen werkplek/praktijk aan huis is mogelijk met een eigen opgang - Super luxe wonen Krijg jij het wauw effect al van Kollislaan 9? Maak dan snel met ons een afspraak voor een uitgebreide rondleiding.
De wijk is een hele sociale wijk waar een hele fijne en gezellige sfeer heerst tussen buren. Iedereen staat voor elkaar klaar. Daarnaast zijn er verschillende wandelgroepen. Ik zit er zelf ook bij een paar, bijvoorbeeld 1 daarvan is een wandelgroep van een paar vrouwen in de buurt.
Het is heel fijn om in Wijdenes te wonen met de mooie stranden in de buurt. Het strand in Wijdenes, Schellinkhout en het Hoornse stadsstrand. Het is hier heel stil en je wordt eigenlijk nooit gestoord door verkeersgeluiden. Je hoort hier paarden, koeien en schapen in de achtertuin. Ook is het hier heel veilig. Kortom wij hebben hier ontzettend genoten.

Kom in contact met Michael Snoey Kiewit-De Jong
Status
Verkocht
Vraagprijs
€ 685.000,-
Woonoppervlakte
194 m2
Perceeloppervlakte
358 m2
Externe bergruimte
0 m2
Gebouwgebonden buitenruimte
0 m2
Overige inpandige ruimte
13 m2
Inhoud
742 m3
Aantal kamers
5
Aantal slaapkamers
3
Vraagprijs: € 685.000,-
3 slaapkamers
Energielabel A+++
194 m2 woonoppervlak
358 m2 perceeloppervlak

Kom in contact met Michael Snoey Kiewit-De Jong
[toon_buurt_intro]
Lorem ipsum dolor sit amet, consetetur sadipscing elitr, sed diam nonumy eirmod tempor invidunt ut labore et dolore magna aliquyam erat, sed diam voluptua. At vero eos et accusam et justo duo dolores et ea rebum. Stet clita kasd gubergren, no sea takimata sanctus est Lorem ipsum dolor sit amet. Lorem ipsum


















































































































Bieden vanaf € 685.000,– Wauw! Dat zijn ongetwijfeld je eerste gedachten wanneer je binnenstapt aan de Kollislaan 9 in Wijdenes. Deze twee-onder-een-kapwoning uit 2022 is niet alleen luxe en prachtig landelijk gelegen, maar ligt ook nog eens dicht bij diverse steden. Bovendien is de woning volledig energieneutraal! Nog een voordeel je hebt een eigen opgang naar de voormalige garage waardoor je hier een praktijk of werkplek aan huis kunt hebben. We vertellen je graag meer over dit fantastische huis én de fijne plek waar het staat. Wonen in Wijdenes – rust, ruimte en water dichtbij de stad Wijdenes is een charmant West-Fries dorp gelegen aan het prachtige Markermeer, tussen Hoorn en Enkhuizen. Hier geniet je van de rust van het buitenleven, met weidse uitzichten over het polderlandschap en het water op loop- of fietsafstand. Het dorp heeft een gemoedelijke sfeer en een actief verenigingsleven – ideaal voor wie houdt van dorps wonen met een warm gemeenschapsgevoel. Ondanks de landelijke ligging is de bereikbaarheid uitstekend: binnen ongeveer 10 minuten rijd je naar Hoorn, in 20 minuten sta je in Purmerend, en binnen 35 à 40 minuten bereik je Amsterdam. Zo combineer je het beste van twee werelden: de rust en ruimte van het platteland, met de stadse voorzieningen binnen handbereik. Wijdenes ligt bovendien vlak bij de dijk en het water van het Markermeer, waar je heerlijk kunt wandelen, fietsen of genieten van watersport. In de omgeving vind je diverse natuurgebieden, gezellige dorpen en historische stadjes die het leven hier extra bijzonder maken. Kortom: wonen in Wijdenes betekent wonen in een rustige, groene omgeving met de stad nooit ver weg – een plek waar je écht tot rust komt. Parkeren kan eenvoudig op eigen erf. Via de voordeur kom je binnen in de hal, met toegang tot het toilet, de trapopgang naar de eerste verdieping, de woonkamer en de woonkeuken. De woonkamer is ingedeeld in twee gezellige zitgedeeltes, zodat je altijd kunt kiezen waar je wilt ontspannen. Via de fraaie stalen deuren bereik je de woonkeuken – een echte blikvanger! Deze is voorzien van alle moderne gemakken, uitgevoerd in een luxe stijl en beschikt over veel opbergruimte. Aangrenzend vind je de bijkeuken, met aansluitingen voor de wasmachine en droger en extra bergruimte. Vanuit hier kom je in de voormalige garage, die is omgetoverd tot een stijlvol kantoor aan huis met een eigen entree. Ideaal voor een werkruimte of praktijk aan huis. Het gehele huis is voorzien van vloerverwarming én vloerkoeling. Op de eerste verdieping bevinden zich twee ruime slaapkamers en de badkamer. Oorspronkelijk waren dit drie slaapkamers, maar de huidige indeling biedt meer ruimte en comfort: de slaapkamer aan de voorzijde is extra groot gemaakt, terwijl de kamer aan de achterzijde is voorzien van een inloopkast. De luxe badkamer beschikt over een dubbele wastafel, douche, ligbad en toilet. Op de tweede verdieping is nog een ruime slaapkamer te vinden, met diverse leuke en speelse hoekjes. Buitenruimte: Aan de achterzijde van de woning is een fijne serre geplaatst waar je zowel in de zomer als in de koudere maanden heerlijk kunt zitten. De tuin ligt op het zuiden (tikkeltje westen), waardoor je de hele dag van de zon kunt genieten. Daarnaast is er een mooie pergola geplaatst en is er naast het huis een ruime houten schuur voor fietsen en tuingereedschap. Nog alles op een rij: – Bodemwarmtepomp met vloerverwarming en vloerkoeling – 22 zonnepanelen – Energieneutraal wonen is mogelijk, energielabel A+++ – Bijna 200m2 aan woonoppervlakte – Eigen werkplek/praktijk aan huis is mogelijk met een eigen opgang – Super luxe wonen Krijg jij het wauw effect al van Kollislaan 9? Maak dan snel met ons een afspraak voor een uitgebreide rondleiding.
Bieden vanaf € 685.000,– Wauw! Dat zijn ongetwijfeld je eerste gedachten wanneer je binnenstapt aan de Kollislaan 9 in Wijdenes. Deze twee-onder-een-kapwoning uit 2022 is niet alleen luxe en prachtig landelijk gelegen, maar ligt ook nog eens dicht bij diverse steden. Bovendien is de woning volledig energieneutraal! Nog een voordeel je hebt een eigen opgang naar de voormalige garage waardoor je hier een praktijk of werkplek aan huis kunt hebben. We vertellen je graag meer over dit fantastische huis én de fijne plek waar het staat. Wonen in Wijdenes – rust, ruimte en water dichtbij de stad Wijdenes is een charmant West-Fries dorp gelegen aan het prachtige Markermeer, tussen Hoorn en Enkhuizen. Hier geniet je van de rust van het buitenleven, met weidse uitzichten over het polderlandschap en het water op loop- of fietsafstand. Het dorp heeft een gemoedelijke sfeer en een actief verenigingsleven – ideaal voor wie houdt van dorps wonen met een warm gemeenschapsgevoel. Ondanks de landelijke ligging is de bereikbaarheid uitstekend: binnen ongeveer 10 minuten rijd je naar Hoorn, in 20 minuten sta je in Purmerend, en binnen 35 à 40 minuten bereik je Amsterdam. Zo combineer je het beste van twee werelden: de rust en ruimte van het platteland, met de stadse voorzieningen binnen handbereik. Wijdenes ligt bovendien vlak bij de dijk en het water van het Markermeer, waar je heerlijk kunt wandelen, fietsen of genieten van watersport. In de omgeving vind je diverse natuurgebieden, gezellige dorpen en historische stadjes die het leven hier extra bijzonder maken. Kortom: wonen in Wijdenes betekent wonen in een rustige, groene omgeving met de stad nooit ver weg – een plek waar je écht tot rust komt. Parkeren kan eenvoudig op eigen erf. Via de voordeur kom je binnen in de hal, met toegang tot het toilet, de trapopgang naar de eerste verdieping, de woonkamer en de woonkeuken. De woonkamer is ingedeeld in twee gezellige zitgedeeltes, zodat je altijd kunt kiezen waar je wilt ontspannen. Via de fraaie stalen deuren bereik je de woonkeuken – een echte blikvanger! Deze is voorzien van alle moderne gemakken, uitgevoerd in een luxe stijl en beschikt over veel opbergruimte. Aangrenzend vind je de bijkeuken, met aansluitingen voor de wasmachine en droger en extra bergruimte. Vanuit hier kom je in de voormalige garage, die is omgetoverd tot een stijlvol kantoor aan huis met een eigen entree. Ideaal voor een werkruimte of praktijk aan huis. Het gehele huis is voorzien van vloerverwarming én vloerkoeling. Op de eerste verdieping bevinden zich twee ruime slaapkamers en de badkamer. Oorspronkelijk waren dit drie slaapkamers, maar de huidige indeling biedt meer ruimte en comfort: de slaapkamer aan de voorzijde is extra groot gemaakt, terwijl de kamer aan de achterzijde is voorzien van een inloopkast. De luxe badkamer beschikt over een dubbele wastafel, douche, ligbad en toilet. Op de tweede verdieping is nog een ruime slaapkamer te vinden, met diverse leuke en speelse hoekjes. Buitenruimte: Aan de achterzijde van de woning is een fijne serre geplaatst waar je zowel in de zomer als in de koudere maanden heerlijk kunt zitten. De tuin ligt op het zuiden (tikkeltje westen), waardoor je de hele dag van de zon kunt genieten. Daarnaast is er een mooie pergola geplaatst en is er naast het huis een ruime houten schuur voor fietsen en tuingereedschap. Nog alles op een rij: – Bodemwarmtepomp met vloerverwarming en vloerkoeling – 22 zonnepanelen – Energieneutraal wonen is mogelijk, energielabel A+++ – Bijna 200m2 aan woonoppervlakte – Eigen werkplek/praktijk aan huis is mogelijk met een eigen opgang – Super luxe wonen Krijg jij het wauw effect al van Kollislaan 9? Maak dan snel met ons een afspraak voor een uitgebreide rondleiding.