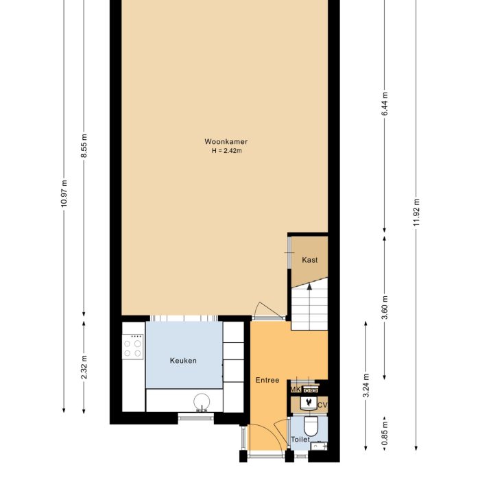
Aan ruimte geen gebrek! Op de Koperslagerstraat 30 zul je zeker geen ruimtegebrek hebben! Deze uitgebouwde tussenwoning in de wijk Purmer-Noord is maar liefst 123 m² groot en heeft veel te bieden – we vertellen je er graag alles over. We beginnen bij de wijk. De woning is gelegen in de wijk Purmer-Noord, een groene en ruim opgezette buurt uit de jaren 80. Alles wat je nodig hebt, is op loopafstand: het winkelcentrum Gildeplein voor de dagelijkse boodschappen, een bushalte waarmee je razendsnel in Amsterdam bent, en diverse scholen in de directe omgeving. Ook parkeren is geen probleem – rondom het huis is altijd voldoende plek. Bovendien ben je binnen enkele minuten fietsen bij het Leeghwaterpark en het zwembad. De auto parkeer je in de straat. Je parkeert de auto eenvoudig in de straat. Via de voordeur kom je binnen in de hal, met toegang tot het toilet, de trap naar de eerste verdieping en de woonkamer met open keuken. De keuken, in een praktische U-vorm, bevindt zich aan de voorzijde van het huis en beschikt over veel werkruimte en alle benodigde inbouwapparatuur. De uitgebouwde, tuingerichte woonkamer is heerlijk licht dankzij de grote lichtstraat en raampartijen. Openslaande deuren bieden toegang tot de achtertuin. Maar voordat we naar buiten gaan, nemen we eerst een kijkje boven. Op de eerste verdieping vind je twee ruime slaapkamers en de badkamer. Op de tweede verdieping zijn nog eens twee grote kamers. Eén daarvan wordt momenteel gebruikt als slaapkamer; in de andere bevinden zich de aansluitingen voor wasmachine en droger. Deze ruimte leent zich echter ook uitstekend voor gebruik als extra slaapkamer of werkkamer. De achtertuin is een fijne plek om tijdens zonnige dagen te genieten. Dankzij de ligging op het zuidoosten heb je veel zon. Achterin de tuin staat een stenen berging, ideaal voor het opbergen van fietsen en tuingereedschap. Nog alles op een rij: - Ruim 123m2 aan woonoppervlakte! - Uitgebouwde woonkamer - Kunststof kozijnen - Energielabel A Ben jij een ruimtezoeker? Stop dan met zoeken en maak met ons een afspraak voor de ruime tussenwoning aan Koperslagerstraat 30 in Purmerend.

Kom in contact met Michael Snoey Kiewit-De Jong
Status
Verkocht
Vraagprijs
€ 435.000,-
Woonoppervlakte
124 m2
Perceeloppervlakte
120 m2
Externe bergruimte
6 m2
Gebouwgebonden buitenruimte
0 m2
Overige inpandige ruimte
0 m2
Inhoud
416 m3
Aantal kamers
5
Aantal slaapkamers
4
Vraagprijs: € 435.000,-
4 slaapkamers
Energielabel A
124 m2 woonoppervlak
120 m2 perceeloppervlak

Kom in contact met Michael Snoey Kiewit-De Jong
[toon_buurt_intro]
Lorem ipsum dolor sit amet, consetetur sadipscing elitr, sed diam nonumy eirmod tempor invidunt ut labore et dolore magna aliquyam erat, sed diam voluptua. At vero eos et accusam et justo duo dolores et ea rebum. Stet clita kasd gubergren, no sea takimata sanctus est Lorem ipsum dolor sit amet. Lorem ipsum























































Aan ruimte geen gebrek! Op de Koperslagerstraat 30 zul je zeker geen ruimtegebrek hebben! Deze uitgebouwde tussenwoning in de wijk Purmer-Noord is maar liefst 123 m² groot en heeft veel te bieden – we vertellen je er graag alles over. We beginnen bij de wijk. De woning is gelegen in de wijk Purmer-Noord, een groene en ruim opgezette buurt uit de jaren 80. Alles wat je nodig hebt, is op loopafstand: het winkelcentrum Gildeplein voor de dagelijkse boodschappen, een bushalte waarmee je razendsnel in Amsterdam bent, en diverse scholen in de directe omgeving. Ook parkeren is geen probleem – rondom het huis is altijd voldoende plek. Bovendien ben je binnen enkele minuten fietsen bij het Leeghwaterpark en het zwembad. De auto parkeer je in de straat. Je parkeert de auto eenvoudig in de straat. Via de voordeur kom je binnen in de hal, met toegang tot het toilet, de trap naar de eerste verdieping en de woonkamer met open keuken. De keuken, in een praktische U-vorm, bevindt zich aan de voorzijde van het huis en beschikt over veel werkruimte en alle benodigde inbouwapparatuur. De uitgebouwde, tuingerichte woonkamer is heerlijk licht dankzij de grote lichtstraat en raampartijen. Openslaande deuren bieden toegang tot de achtertuin. Maar voordat we naar buiten gaan, nemen we eerst een kijkje boven. Op de eerste verdieping vind je twee ruime slaapkamers en de badkamer. Op de tweede verdieping zijn nog eens twee grote kamers. Eén daarvan wordt momenteel gebruikt als slaapkamer; in de andere bevinden zich de aansluitingen voor wasmachine en droger. Deze ruimte leent zich echter ook uitstekend voor gebruik als extra slaapkamer of werkkamer. De achtertuin is een fijne plek om tijdens zonnige dagen te genieten. Dankzij de ligging op het zuidoosten heb je veel zon. Achterin de tuin staat een stenen berging, ideaal voor het opbergen van fietsen en tuingereedschap. Nog alles op een rij: – Ruim 123m2 aan woonoppervlakte! – Uitgebouwde woonkamer – Kunststof kozijnen – Energielabel A Ben jij een ruimtezoeker? Stop dan met zoeken en maak met ons een afspraak voor de ruime tussenwoning aan Koperslagerstraat 30 in Purmerend.
Aan ruimte geen gebrek! Op de Koperslagerstraat 30 zul je zeker geen ruimtegebrek hebben! Deze uitgebouwde tussenwoning in de wijk Purmer-Noord is maar liefst 123 m² groot en heeft veel te bieden – we vertellen je er graag alles over. We beginnen bij de wijk. De woning is gelegen in de wijk Purmer-Noord, een groene en ruim opgezette buurt uit de jaren 80. Alles wat je nodig hebt, is op loopafstand: het winkelcentrum Gildeplein voor de dagelijkse boodschappen, een bushalte waarmee je razendsnel in Amsterdam bent, en diverse scholen in de directe omgeving. Ook parkeren is geen probleem – rondom het huis is altijd voldoende plek. Bovendien ben je binnen enkele minuten fietsen bij het Leeghwaterpark en het zwembad. De auto parkeer je in de straat. Je parkeert de auto eenvoudig in de straat. Via de voordeur kom je binnen in de hal, met toegang tot het toilet, de trap naar de eerste verdieping en de woonkamer met open keuken. De keuken, in een praktische U-vorm, bevindt zich aan de voorzijde van het huis en beschikt over veel werkruimte en alle benodigde inbouwapparatuur. De uitgebouwde, tuingerichte woonkamer is heerlijk licht dankzij de grote lichtstraat en raampartijen. Openslaande deuren bieden toegang tot de achtertuin. Maar voordat we naar buiten gaan, nemen we eerst een kijkje boven. Op de eerste verdieping vind je twee ruime slaapkamers en de badkamer. Op de tweede verdieping zijn nog eens twee grote kamers. Eén daarvan wordt momenteel gebruikt als slaapkamer; in de andere bevinden zich de aansluitingen voor wasmachine en droger. Deze ruimte leent zich echter ook uitstekend voor gebruik als extra slaapkamer of werkkamer. De achtertuin is een fijne plek om tijdens zonnige dagen te genieten. Dankzij de ligging op het zuidoosten heb je veel zon. Achterin de tuin staat een stenen berging, ideaal voor het opbergen van fietsen en tuingereedschap. Nog alles op een rij: – Ruim 123m2 aan woonoppervlakte! – Uitgebouwde woonkamer – Kunststof kozijnen – Energielabel A Ben jij een ruimtezoeker? Stop dan met zoeken en maak met ons een afspraak voor de ruime tussenwoning aan Koperslagerstraat 30 in Purmerend.