Woonkeuken, tuin op het zuiden en veel woonoppervlak? Deze tussenwoning in Purmer-Noord heeft het allemaal – en dat op loopafstand van het Leeghwaterpark. Je fietst zo naar winkels, scholen en het centrum, terwijl je thuis geniet van rust, ruimte en comfort. Instapklaar, licht, energiezuinig én ideaal voor starters of jonge gezinnen. Groen wonen met alles dichtbij Jouw nieuwe thuis ligt in een rustige, kindvriendelijke buurt met brede stoepen, groen en volop parkeergelegenheid. Het Leeghwaterpark ligt letterlijk om de hoek voor een wandeling, picknick of rondje hardlopen. Ook winkels, scholen, OV en uitvalswegen zijn allemaal goed bereikbaar. De ligging is dus top: rustig wonen, maar nergens ver vandaan. Welkom binnen Via de hal kom je in de lichte woonkamer. Dankzij de uitbouw is er volop leefruimte, met strak gestucte wanden, laminaatvloer en een handige trapkast en voorraadkast. De echte eyecatcher? De luxe Grando keuken met Siemens StudioLine apparatuur, inductiekookplaat, oven, vaatwasser, afzuigkap naar buiten, softclose kastjes, apothekerskast én een gezellige bar. Een heerlijke plek om te koken, borrelen en bij te praten. In de hal in het midden van de woonkamer vinden we het toilet en de trap naar de eerste verdieping! Hier zijn drie fijne slaapkamers met laminaatvloeren, behang en houten kozijnen met dubbel glas. De badkamer (2017) is slim ingedeeld met toilet, wastafel, bad met douchefunctie, afzuiging én een raam dat open kan. De zolderverdieping is recht opgetrokken aan de achterzijde en ingericht als vierde slaapkamer met laminaatvloer, houten kozijnen en dubbel glas. Op de voorzolder is volop bergruimte, de aansluiting voor wasmachine en droger én een wastafeltje. De achtertuin ligt op het zuiden, dus de zonliefhebber zit hier helemaal goed. Dankzij het zonnescherm van 3 meter creëer je ook gemakkelijk een schaduwplek. Achterin staat een ruime berging met achterom. En door de diepte van de tuin heb je plek genoeg voor een heerlijke loungeset én eettafel. Nog even alles op een rijtje: - Uitgebouwde woonkamer met luxe woonkeuken - Keuken met Siemens-apparatuur, bar, quooker en veel opbergruimte - Vier slaapkamers, allemaal met laminaatvloeren - Badkamer vernieuwd in 2017 - Achtertuin op het zuiden met zonnescherm en houten berging - Nieuwe groepenkast (2021), vloerisolatie aanwezig - Gevel opnieuw gevoegd in 2025 - Rustige ligging in Purmer-Noord, park om de hoek Zien of dit jouw nieuwe thuis is? Bekijk de woningvideo, kom kijken en laat je verrassen door de ruimte, het licht en de fijne sfeer. Van buiten bescheiden, van binnen verrassend ruim.
"Wat wij hier altijd heel fijn hebben gevonden, is dat de kinderen de poort uit liepen en meteen op het pleintje konden spelen. Ze hadden daar veel aanspraak en leuke contacten. Ook het park is dichtbij, waardoor we – als er wat reuring nodig was – er lopend naartoe konden. "Alle faciliteiten zijn hier binnen handbereik. Zo is er een zwembad in de buurt waar zwemlessen worden gegeven en waar je ook recreatief kunt zwemmen. Daarnaast zijn er meerdere speeltuinen en zelfs een kinderboerderij met een houten speeltuin. De basisscholen zijn lopend te bereiken, en ook de supermarkt is op loopafstand. Je bent bovendien zo in de stad en de bushalte richting Amsterdam ligt op slechts 200 meter. "Wat we ook altijd als heel waardevol hebben ervaren, is het fijne contact met de buren. In 2018 hebben we de woning verbouwd, waardoor we het helemaal naar onze wensen konden inrichten. Dat heeft ons woongenot enorm vergroot. Lange avonden met vrienden aan de keukentafel, terwijl anderen aan de bar bij het kookeiland zaten – dat zijn herinneringen die we hier koesteren."

Kom in contact met Mariska Beentjes
Status
Verkocht
Vraagprijs
€ 469.000,-
Woonoppervlakte
122 m2
Perceeloppervlakte
115 m2
Externe bergruimte
7 m2
Gebouwgebonden buitenruimte
0 m2
Overige inpandige ruimte
0 m2
Inhoud
410 m3
Aantal kamers
5
Aantal slaapkamers
4
Vraagprijs: € 469.000,-
4 slaapkamers
Energielabel A
122 m2 woonoppervlak
115 m2 perceeloppervlak

Kom in contact met Mariska Beentjes
[toon_buurt_intro]
Lorem ipsum dolor sit amet, consetetur sadipscing elitr, sed diam nonumy eirmod tempor invidunt ut labore et dolore magna aliquyam erat, sed diam voluptua. At vero eos et accusam et justo duo dolores et ea rebum. Stet clita kasd gubergren, no sea takimata sanctus est Lorem ipsum dolor sit amet. Lorem ipsum

























































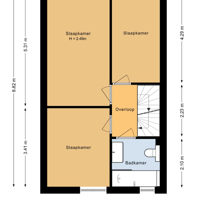
Woonkeuken, tuin op het zuiden en veel woonoppervlak? Deze tussenwoning in Purmer-Noord heeft het allemaal – en dat op loopafstand van het Leeghwaterpark. Je fietst zo naar winkels, scholen en het centrum, terwijl je thuis geniet van rust, ruimte en comfort. Instapklaar, licht, energiezuinig én ideaal voor starters of jonge gezinnen. Groen wonen met alles dichtbij Jouw nieuwe thuis ligt in een rustige, kindvriendelijke buurt met brede stoepen, groen en volop parkeergelegenheid. Het Leeghwaterpark ligt letterlijk om de hoek voor een wandeling, picknick of rondje hardlopen. Ook winkels, scholen, OV en uitvalswegen zijn allemaal goed bereikbaar. De ligging is dus top: rustig wonen, maar nergens ver vandaan. Welkom binnen Via de hal kom je in de lichte woonkamer. Dankzij de uitbouw is er volop leefruimte, met strak gestucte wanden, laminaatvloer en een handige trapkast en voorraadkast. De echte eyecatcher? De luxe Grando keuken met Siemens StudioLine apparatuur, inductiekookplaat, oven, vaatwasser, afzuigkap naar buiten, softclose kastjes, apothekerskast én een gezellige bar. Een heerlijke plek om te koken, borrelen en bij te praten. In de hal in het midden van de woonkamer vinden we het toilet en de trap naar de eerste verdieping! Hier zijn drie fijne slaapkamers met laminaatvloeren, behang en houten kozijnen met dubbel glas. De badkamer (2017) is slim ingedeeld met toilet, wastafel, bad met douchefunctie, afzuiging én een raam dat open kan. De zolderverdieping is recht opgetrokken aan de achterzijde en ingericht als vierde slaapkamer met laminaatvloer, houten kozijnen en dubbel glas. Op de voorzolder is volop bergruimte, de aansluiting voor wasmachine en droger én een wastafeltje. De achtertuin ligt op het zuiden, dus de zonliefhebber zit hier helemaal goed. Dankzij het zonnescherm van 3 meter creëer je ook gemakkelijk een schaduwplek. Achterin staat een ruime berging met achterom. En door de diepte van de tuin heb je plek genoeg voor een heerlijke loungeset én eettafel. Nog even alles op een rijtje: – Uitgebouwde woonkamer met luxe woonkeuken – Keuken met Siemens-apparatuur, bar, quooker en veel opbergruimte – Vier slaapkamers, allemaal met laminaatvloeren – Badkamer vernieuwd in 2017 – Achtertuin op het zuiden met zonnescherm en houten berging – Nieuwe groepenkast (2021), vloerisolatie aanwezig – Gevel opnieuw gevoegd in 2025 – Rustige ligging in Purmer-Noord, park om de hoek Zien of dit jouw nieuwe thuis is? Bekijk de woningvideo, kom kijken en laat je verrassen door de ruimte, het licht en de fijne sfeer. Van buiten bescheiden, van binnen verrassend ruim.
Woonkeuken, tuin op het zuiden en veel woonoppervlak? Deze tussenwoning in Purmer-Noord heeft het allemaal – en dat op loopafstand van het Leeghwaterpark. Je fietst zo naar winkels, scholen en het centrum, terwijl je thuis geniet van rust, ruimte en comfort. Instapklaar, licht, energiezuinig én ideaal voor starters of jonge gezinnen. Groen wonen met alles dichtbij Jouw nieuwe thuis ligt in een rustige, kindvriendelijke buurt met brede stoepen, groen en volop parkeergelegenheid. Het Leeghwaterpark ligt letterlijk om de hoek voor een wandeling, picknick of rondje hardlopen. Ook winkels, scholen, OV en uitvalswegen zijn allemaal goed bereikbaar. De ligging is dus top: rustig wonen, maar nergens ver vandaan. Welkom binnen Via de hal kom je in de lichte woonkamer. Dankzij de uitbouw is er volop leefruimte, met strak gestucte wanden, laminaatvloer en een handige trapkast en voorraadkast. De echte eyecatcher? De luxe Grando keuken met Siemens StudioLine apparatuur, inductiekookplaat, oven, vaatwasser, afzuigkap naar buiten, softclose kastjes, apothekerskast én een gezellige bar. Een heerlijke plek om te koken, borrelen en bij te praten. In de hal in het midden van de woonkamer vinden we het toilet en de trap naar de eerste verdieping! Hier zijn drie fijne slaapkamers met laminaatvloeren, behang en houten kozijnen met dubbel glas. De badkamer (2017) is slim ingedeeld met toilet, wastafel, bad met douchefunctie, afzuiging én een raam dat open kan. De zolderverdieping is recht opgetrokken aan de achterzijde en ingericht als vierde slaapkamer met laminaatvloer, houten kozijnen en dubbel glas. Op de voorzolder is volop bergruimte, de aansluiting voor wasmachine en droger én een wastafeltje. De achtertuin ligt op het zuiden, dus de zonliefhebber zit hier helemaal goed. Dankzij het zonnescherm van 3 meter creëer je ook gemakkelijk een schaduwplek. Achterin staat een ruime berging met achterom. En door de diepte van de tuin heb je plek genoeg voor een heerlijke loungeset én eettafel. Nog even alles op een rijtje: – Uitgebouwde woonkamer met luxe woonkeuken – Keuken met Siemens-apparatuur, bar, quooker en veel opbergruimte – Vier slaapkamers, allemaal met laminaatvloeren – Badkamer vernieuwd in 2017 – Achtertuin op het zuiden met zonnescherm en houten berging – Nieuwe groepenkast (2021), vloerisolatie aanwezig – Gevel opnieuw gevoegd in 2025 – Rustige ligging in Purmer-Noord, park om de hoek Zien of dit jouw nieuwe thuis is? Bekijk de woningvideo, kom kijken en laat je verrassen door de ruimte, het licht en de fijne sfeer. Van buiten bescheiden, van binnen verrassend ruim.