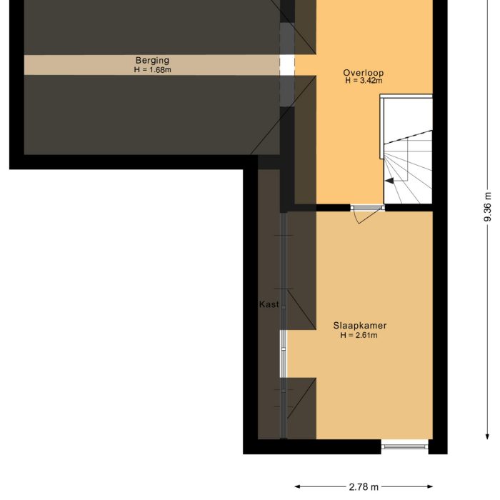
Rust, ruimte en een fantastische ligging. Wanneer je woont aan Timmermanswerf 12 in Oosthuizen, dan heb je het allemaal. Je woont hier op een rustig stukje waar uitsluitend bestemmingsverkeer komt. Deze twee-onder-een-kapwoning met een uitgebouwde woonkeuken, een opbouw op de (voormalige) garage, beschikt over maar liefst 162 m² woonoppervlakte. Je auto parkeer je lekker op je eigen erf én je hebt een prachtig vrij uitzicht aan de voorzijde. En het huis is ook nog eens keurig netjes afgewerkt en instap klaar, wat wil je nog meer?! We vertellen je graag eerst iets meer over de omgeving. Je woont hier in het gezellige dorp Oosthuizen, met alle voorzieningen op loop- en fietsafstand. Zo kunnen de kinderen lopend naar basisschool De Koningsspil en doe je je dagelijkse boodschappen in de Raadhuisstraat. Hier vind je onder andere een supermarkt die zeven dagen per week geopend is, een bakker en een slager. Daarnaast woon je op korte afstand van steden als Purmerend en Hoorn. Ook Amsterdam is uitstekend bereikbaar; met de bus sta je met 30 minuten in onze hoofdstad. Parkeren doe je op eigen erf. Via de voordeur kom je in de hal, die toegang biedt tot het moderne toilet, de trapopgang naar de eerste verdieping en de woonkamer met woonkeuken. De woonkamer is gelegen aan de voorzijde van het huis. De vele raampartijen zorgen niet alleen voor een heerlijk lichte ruimte, maar bieden ook een prachtig uitzicht over het groen en het water. Aan de achterzijde bevindt zich de ruime woonkeuken. Dit is een hele fijne plek waar je met familie en/of vrienden gezellig kunt tafelen. De L-vormige keuken is ruim opgezet en van alle gemakken voorzien. De voormalige garage is omgetoverd tot een praktische bijkeuken met ruimte voor de wasmachine. Het voorste gedeelte is in gebruik als berging, ideaal voor bijvoorbeeld fietsen. Op de eerste verdieping zijn drie slaapkamers en de badkamer te vinden. De slaapkamer aan de voorzijde waren oorspronkelijk twee slaapkamers. Deze kamer is dan ook lekker ruim en beschikt over een vaste kastenwand. De tweede slaapkamer is ook zeer riant en ligt boven de voormalige garage in de dakopbouw. De derde slaapkamer is een ideale werkkamer. De badkamer is helemaal compleet en voorzien van vloerverwarming, een ligbad, douche, toilet en wastafel. De tweede verdieping beschikt over een ruime overloop en een vierde grote slaapkamer. Ook is er extra bergruimte door de gerealiseerde dakopbouw. Tot slot nemen we je graag mee naar de prachtig aangelegde achtertuin. De tuin is ruim opgezet, waardoor je altijd wel een plekje in de zon of schaduw kunt vinden. Nog alles op een rij: - Uitgebouwd twee-onder-een-kapwoning - Dakopbouw boven de garage - Volledig geïsoleerd - Energielabel A - Parkeren op eigen erf - Garage deels omgebouwd tot bijkeuken - Prachtige ligging met uitzicht over groen en water aan de voorzijde - Op loopafstand van de school en voorzieningen Rust, ruimte en een prachtig uitzicht. Je vindt het allemaal aan Timmermanswerf 12 in Oosthuizen. Maak snel een afspraak voor een uitgebreide rondleiding en dan kun je direct ervaren hoe netjes alles is afgewerkt.

Kom in contact met Richard Herlé-Ruys
Status
Beschikbaar
Vraagprijs
€ 650.000,-
Woonoppervlakte
162 m2
Perceeloppervlakte
255 m2
Externe bergruimte
0 m2
Gebouwgebonden buitenruimte
8 m2
Overige inpandige ruimte
5 m2
Inhoud
627 m3
Aantal kamers
5
Aantal slaapkamers
4
Vraagprijs: € 650.000,-
4 slaapkamers
Energielabel A
162 m2 woonoppervlak
255 m2 perceeloppervlak

Kom in contact met Richard Herlé-Ruys
[toon_buurt_intro]
Lorem ipsum dolor sit amet, consetetur sadipscing elitr, sed diam nonumy eirmod tempor invidunt ut labore et dolore magna aliquyam erat, sed diam voluptua. At vero eos et accusam et justo duo dolores et ea rebum. Stet clita kasd gubergren, no sea takimata sanctus est Lorem ipsum dolor sit amet. Lorem ipsum




































































Rust, ruimte en een fantastische ligging. Wanneer je woont aan Timmermanswerf 12 in Oosthuizen, dan heb je het allemaal. Je woont hier op een rustig stukje waar uitsluitend bestemmingsverkeer komt. Deze twee-onder-een-kapwoning met een uitgebouwde woonkeuken, een opbouw op de (voormalige) garage, beschikt over maar liefst 162 m² woonoppervlakte. Je auto parkeer je lekker op je eigen erf én je hebt een prachtig vrij uitzicht aan de voorzijde. En het huis is ook nog eens keurig netjes afgewerkt en instap klaar, wat wil je nog meer?! We vertellen je graag eerst iets meer over de omgeving. Je woont hier in het gezellige dorp Oosthuizen, met alle voorzieningen op loop- en fietsafstand. Zo kunnen de kinderen lopend naar basisschool De Koningsspil en doe je je dagelijkse boodschappen in de Raadhuisstraat. Hier vind je onder andere een supermarkt die zeven dagen per week geopend is, een bakker en een slager. Daarnaast woon je op korte afstand van steden als Purmerend en Hoorn. Ook Amsterdam is uitstekend bereikbaar; met de bus sta je met 30 minuten in onze hoofdstad. Parkeren doe je op eigen erf. Via de voordeur kom je in de hal, die toegang biedt tot het moderne toilet, de trapopgang naar de eerste verdieping en de woonkamer met woonkeuken. De woonkamer is gelegen aan de voorzijde van het huis. De vele raampartijen zorgen niet alleen voor een heerlijk lichte ruimte, maar bieden ook een prachtig uitzicht over het groen en het water. Aan de achterzijde bevindt zich de ruime woonkeuken. Dit is een hele fijne plek waar je met familie en/of vrienden gezellig kunt tafelen. De L-vormige keuken is ruim opgezet en van alle gemakken voorzien. De voormalige garage is omgetoverd tot een praktische bijkeuken met ruimte voor de wasmachine. Het voorste gedeelte is in gebruik als berging, ideaal voor bijvoorbeeld fietsen. Op de eerste verdieping zijn drie slaapkamers en de badkamer te vinden. De slaapkamer aan de voorzijde waren oorspronkelijk twee slaapkamers. Deze kamer is dan ook lekker ruim en beschikt over een vaste kastenwand. De tweede slaapkamer is ook zeer riant en ligt boven de voormalige garage in de dakopbouw. De derde slaapkamer is een ideale werkkamer. De badkamer is helemaal compleet en voorzien van vloerverwarming, een ligbad, douche, toilet en wastafel. De tweede verdieping beschikt over een ruime overloop en een vierde grote slaapkamer. Ook is er extra bergruimte door de gerealiseerde dakopbouw. Tot slot nemen we je graag mee naar de prachtig aangelegde achtertuin. De tuin is ruim opgezet, waardoor je altijd wel een plekje in de zon of schaduw kunt vinden. Nog alles op een rij: – Uitgebouwd twee-onder-een-kapwoning – Dakopbouw boven de garage – Volledig geïsoleerd – Energielabel A – Parkeren op eigen erf – Garage deels omgebouwd tot bijkeuken – Prachtige ligging met uitzicht over groen en water aan de voorzijde – Op loopafstand van de school en voorzieningen Rust, ruimte en een prachtig uitzicht. Je vindt het allemaal aan Timmermanswerf 12 in Oosthuizen. Maak snel een afspraak voor een uitgebreide rondleiding en dan kun je direct ervaren hoe netjes alles is afgewerkt.
Rust, ruimte en een fantastische ligging. Wanneer je woont aan Timmermanswerf 12 in Oosthuizen, dan heb je het allemaal. Je woont hier op een rustig stukje waar uitsluitend bestemmingsverkeer komt. Deze twee-onder-een-kapwoning met een uitgebouwde woonkeuken, een opbouw op de (voormalige) garage, beschikt over maar liefst 162 m² woonoppervlakte. Je auto parkeer je lekker op je eigen erf én je hebt een prachtig vrij uitzicht aan de voorzijde. En het huis is ook nog eens keurig netjes afgewerkt en instap klaar, wat wil je nog meer?! We vertellen je graag eerst iets meer over de omgeving. Je woont hier in het gezellige dorp Oosthuizen, met alle voorzieningen op loop- en fietsafstand. Zo kunnen de kinderen lopend naar basisschool De Koningsspil en doe je je dagelijkse boodschappen in de Raadhuisstraat. Hier vind je onder andere een supermarkt die zeven dagen per week geopend is, een bakker en een slager. Daarnaast woon je op korte afstand van steden als Purmerend en Hoorn. Ook Amsterdam is uitstekend bereikbaar; met de bus sta je met 30 minuten in onze hoofdstad. Parkeren doe je op eigen erf. Via de voordeur kom je in de hal, die toegang biedt tot het moderne toilet, de trapopgang naar de eerste verdieping en de woonkamer met woonkeuken. De woonkamer is gelegen aan de voorzijde van het huis. De vele raampartijen zorgen niet alleen voor een heerlijk lichte ruimte, maar bieden ook een prachtig uitzicht over het groen en het water. Aan de achterzijde bevindt zich de ruime woonkeuken. Dit is een hele fijne plek waar je met familie en/of vrienden gezellig kunt tafelen. De L-vormige keuken is ruim opgezet en van alle gemakken voorzien. De voormalige garage is omgetoverd tot een praktische bijkeuken met ruimte voor de wasmachine. Het voorste gedeelte is in gebruik als berging, ideaal voor bijvoorbeeld fietsen. Op de eerste verdieping zijn drie slaapkamers en de badkamer te vinden. De slaapkamer aan de voorzijde waren oorspronkelijk twee slaapkamers. Deze kamer is dan ook lekker ruim en beschikt over een vaste kastenwand. De tweede slaapkamer is ook zeer riant en ligt boven de voormalige garage in de dakopbouw. De derde slaapkamer is een ideale werkkamer. De badkamer is helemaal compleet en voorzien van vloerverwarming, een ligbad, douche, toilet en wastafel. De tweede verdieping beschikt over een ruime overloop en een vierde grote slaapkamer. Ook is er extra bergruimte door de gerealiseerde dakopbouw. Tot slot nemen we je graag mee naar de prachtig aangelegde achtertuin. De tuin is ruim opgezet, waardoor je altijd wel een plekje in de zon of schaduw kunt vinden. Nog alles op een rij: – Uitgebouwd twee-onder-een-kapwoning – Dakopbouw boven de garage – Volledig geïsoleerd – Energielabel A – Parkeren op eigen erf – Garage deels omgebouwd tot bijkeuken – Prachtige ligging met uitzicht over groen en water aan de voorzijde – Op loopafstand van de school en voorzieningen Rust, ruimte en een prachtig uitzicht. Je vindt het allemaal aan Timmermanswerf 12 in Oosthuizen. Maak snel een afspraak voor een uitgebreide rondleiding en dan kun je direct ervaren hoe netjes alles is afgewerkt.