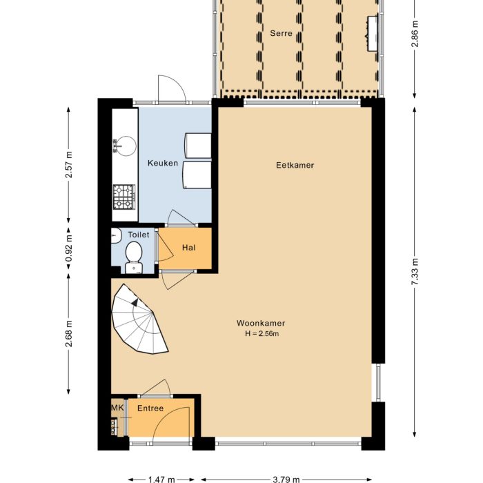
Pak jij de handschoen op? Gezocht? Handige Harry of Harriët die van een fijne hoekwoning, waar de tijd wat heeft stilgestaan, een paleisje wil maken dat garant staat voor weer jaren woonplezier. Twee rechterhanden, wat doorzettingsvermogen, a little help from your friends of gewoon een goed voorstellingsvermogen, dat moet je wel hebben als je een kijkje komt nemen op van IJsendijkstraat 231 in Purmerend. Deze hoekwoning is lekker ruim en heeft een extra grote tuin. De eigenaar heeft hier ruim 60 jaar gewoond dus het moet wel een fantastische plek zijn. Even kort wat over de wijk Overwhere. Steeds meer mensen weten de weg te vinden naar deze wijk. Niet zo gek ook, je hebt hier alles bij de hand. Zo fiets je in no-time naar het Makado winkelcentrum en het Wormerplein voor je dagelijkse boodschappen. Daarnaast zijn verschillende basisscholen in de omgeving te vinden. Voor de sportievelingen onder ons; of je nu wilt voetballen, padellen, tennissen of honkballen, de sportvelden van verschillende verenigingen zijn op loopafstand van je huis. Met de fiets sta je overigens binnen 10 minuten in het centrum van Purmerend. Ook heb je de bushalte en het treinstation op loopafstand. Indeling: Vanaf de doorgaande weg kom je het rustige hofje in gereden waar je de auto kunt parkeren. Wanneer je de voordeur binnen gaat heb je een klein halletje met een moderne meterkast. We lopen door naar de doorzonwoonkamer. De grote raampartijen aan weerskanten en het zijraam zorgen ervoor dat dit een heerlijke fijne en lichte kamer is. Via een tussenhal, met toilet, loop je door naar de dichte keuken. Groot pluspunt is de aangebouwde aluminium serre waar je vanaf het vroege voorjaar al lekker buiten kunt zitten. Als het wat kouder is dan schuif je de glazen wanden dicht en zit je lekker beschut. Lekker plekkie hoor! Aangekomen op de eerste verdieping heb je toegang tot 2 slaapkamers en twee bergkasten. De derde slaapkamer is ooit omgebouwd tot grote badkamer en die is compleet met ligbad, douche, toilet en wastafelmeubel. Tweede verdieping: Deze verdieping is in gebruik als bergvliering en is bereikbaar via een vlizotrap. Indien gewenst kan hier op eenvoudige wijze een extra kamer inclusief een vast trap worden gerealiseerd. Maar het ‘unique selling point’ van deze woning is de heerlijke tuin. Met zijn ligging op het Noorden (klein beetje west) heb je hier verrassend veel zon. Die gaat namelijk aan de zijkant onder waardoor je het laatste zonnestraaltje nog mee kunt pakken Een ideale ontspan-plek voor in de lente, zomer en herfst. Zie je jezelf al zitten, na een lange dag (klussen) met een drankje en de krant in de avondzon?! Nog even kort samengevat: - Hoekwoning - Helemaal te maken zoals je zelf wilt - 8 zonnepanelen - Energielabel C - Deels kunststof kozijnen - Aangebouwde aluminium serre - perceel van 217 m2 - Gelegen in een hofje - Airco aanwezig Gaan jouw handen jeuken nu je dit gelezen hebt en de foto's hebt gezien? Wacht dan niet langer en plan snel een bezichtiging in bij van IJsendijkstraat 231 in Purmerend. Ben je nog niet uitgekeken? Vergeet dan niet ook de woningvideo die Mariska hier heeft opgenomen nog even te bekijken en droom alvast lekker van al het moois dat jij hier gaat realiseren.

Kom in contact met Richard Herlé-Ruys
Status
Beschikbaar
Vraagprijs
€ 400.000,-
Woonoppervlakte
86 m2
Perceeloppervlakte
217 m2
Externe bergruimte
11 m2
Gebouwgebonden buitenruimte
10 m2
Overige inpandige ruimte
15 m2
Inhoud
396 m3
Aantal kamers
4
Aantal slaapkamers
3
Vraagprijs: € 400.000,-
3 slaapkamers
Energielabel C
86 m2 woonoppervlak
217 m2 perceeloppervlak

Kom in contact met Richard Herlé-Ruys
[toon_buurt_intro]
Lorem ipsum dolor sit amet, consetetur sadipscing elitr, sed diam nonumy eirmod tempor invidunt ut labore et dolore magna aliquyam erat, sed diam voluptua. At vero eos et accusam et justo duo dolores et ea rebum. Stet clita kasd gubergren, no sea takimata sanctus est Lorem ipsum dolor sit amet. Lorem ipsum














































Pak jij de handschoen op? Gezocht? Handige Harry of Harriët die van een fijne hoekwoning, waar de tijd wat heeft stilgestaan, een paleisje wil maken dat garant staat voor weer jaren woonplezier. Twee rechterhanden, wat doorzettingsvermogen, a little help from your friends of gewoon een goed voorstellingsvermogen, dat moet je wel hebben als je een kijkje komt nemen op van IJsendijkstraat 231 in Purmerend. Deze hoekwoning is lekker ruim en heeft een extra grote tuin. De eigenaar heeft hier ruim 60 jaar gewoond dus het moet wel een fantastische plek zijn. Even kort wat over de wijk Overwhere. Steeds meer mensen weten de weg te vinden naar deze wijk. Niet zo gek ook, je hebt hier alles bij de hand. Zo fiets je in no-time naar het Makado winkelcentrum en het Wormerplein voor je dagelijkse boodschappen. Daarnaast zijn verschillende basisscholen in de omgeving te vinden. Voor de sportievelingen onder ons; of je nu wilt voetballen, padellen, tennissen of honkballen, de sportvelden van verschillende verenigingen zijn op loopafstand van je huis. Met de fiets sta je overigens binnen 10 minuten in het centrum van Purmerend. Ook heb je de bushalte en het treinstation op loopafstand. Indeling: Vanaf de doorgaande weg kom je het rustige hofje in gereden waar je de auto kunt parkeren. Wanneer je de voordeur binnen gaat heb je een klein halletje met een moderne meterkast. We lopen door naar de doorzonwoonkamer. De grote raampartijen aan weerskanten en het zijraam zorgen ervoor dat dit een heerlijke fijne en lichte kamer is. Via een tussenhal, met toilet, loop je door naar de dichte keuken. Groot pluspunt is de aangebouwde aluminium serre waar je vanaf het vroege voorjaar al lekker buiten kunt zitten. Als het wat kouder is dan schuif je de glazen wanden dicht en zit je lekker beschut. Lekker plekkie hoor! Aangekomen op de eerste verdieping heb je toegang tot 2 slaapkamers en twee bergkasten. De derde slaapkamer is ooit omgebouwd tot grote badkamer en die is compleet met ligbad, douche, toilet en wastafelmeubel. Tweede verdieping: Deze verdieping is in gebruik als bergvliering en is bereikbaar via een vlizotrap. Indien gewenst kan hier op eenvoudige wijze een extra kamer inclusief een vast trap worden gerealiseerd. Maar het ‘unique selling point’ van deze woning is de heerlijke tuin. Met zijn ligging op het Noorden (klein beetje west) heb je hier verrassend veel zon. Die gaat namelijk aan de zijkant onder waardoor je het laatste zonnestraaltje nog mee kunt pakken Een ideale ontspan-plek voor in de lente, zomer en herfst. Zie je jezelf al zitten, na een lange dag (klussen) met een drankje en de krant in de avondzon?! Nog even kort samengevat: – Hoekwoning – Helemaal te maken zoals je zelf wilt – 8 zonnepanelen – Energielabel C – Deels kunststof kozijnen – Aangebouwde aluminium serre – perceel van 217 m2 – Gelegen in een hofje – Airco aanwezig Gaan jouw handen jeuken nu je dit gelezen hebt en de foto’s hebt gezien? Wacht dan niet langer en plan snel een bezichtiging in bij van IJsendijkstraat 231 in Purmerend. Ben je nog niet uitgekeken? Vergeet dan niet ook de woningvideo die Mariska hier heeft opgenomen nog even te bekijken en droom alvast lekker van al het moois dat jij hier gaat realiseren.
Pak jij de handschoen op? Gezocht? Handige Harry of Harriët die van een fijne hoekwoning, waar de tijd wat heeft stilgestaan, een paleisje wil maken dat garant staat voor weer jaren woonplezier. Twee rechterhanden, wat doorzettingsvermogen, a little help from your friends of gewoon een goed voorstellingsvermogen, dat moet je wel hebben als je een kijkje komt nemen op van IJsendijkstraat 231 in Purmerend. Deze hoekwoning is lekker ruim en heeft een extra grote tuin. De eigenaar heeft hier ruim 60 jaar gewoond dus het moet wel een fantastische plek zijn. Even kort wat over de wijk Overwhere. Steeds meer mensen weten de weg te vinden naar deze wijk. Niet zo gek ook, je hebt hier alles bij de hand. Zo fiets je in no-time naar het Makado winkelcentrum en het Wormerplein voor je dagelijkse boodschappen. Daarnaast zijn verschillende basisscholen in de omgeving te vinden. Voor de sportievelingen onder ons; of je nu wilt voetballen, padellen, tennissen of honkballen, de sportvelden van verschillende verenigingen zijn op loopafstand van je huis. Met de fiets sta je overigens binnen 10 minuten in het centrum van Purmerend. Ook heb je de bushalte en het treinstation op loopafstand. Indeling: Vanaf de doorgaande weg kom je het rustige hofje in gereden waar je de auto kunt parkeren. Wanneer je de voordeur binnen gaat heb je een klein halletje met een moderne meterkast. We lopen door naar de doorzonwoonkamer. De grote raampartijen aan weerskanten en het zijraam zorgen ervoor dat dit een heerlijke fijne en lichte kamer is. Via een tussenhal, met toilet, loop je door naar de dichte keuken. Groot pluspunt is de aangebouwde aluminium serre waar je vanaf het vroege voorjaar al lekker buiten kunt zitten. Als het wat kouder is dan schuif je de glazen wanden dicht en zit je lekker beschut. Lekker plekkie hoor! Aangekomen op de eerste verdieping heb je toegang tot 2 slaapkamers en twee bergkasten. De derde slaapkamer is ooit omgebouwd tot grote badkamer en die is compleet met ligbad, douche, toilet en wastafelmeubel. Tweede verdieping: Deze verdieping is in gebruik als bergvliering en is bereikbaar via een vlizotrap. Indien gewenst kan hier op eenvoudige wijze een extra kamer inclusief een vast trap worden gerealiseerd. Maar het ‘unique selling point’ van deze woning is de heerlijke tuin. Met zijn ligging op het Noorden (klein beetje west) heb je hier verrassend veel zon. Die gaat namelijk aan de zijkant onder waardoor je het laatste zonnestraaltje nog mee kunt pakken Een ideale ontspan-plek voor in de lente, zomer en herfst. Zie je jezelf al zitten, na een lange dag (klussen) met een drankje en de krant in de avondzon?! Nog even kort samengevat: – Hoekwoning – Helemaal te maken zoals je zelf wilt – 8 zonnepanelen – Energielabel C – Deels kunststof kozijnen – Aangebouwde aluminium serre – perceel van 217 m2 – Gelegen in een hofje – Airco aanwezig Gaan jouw handen jeuken nu je dit gelezen hebt en de foto’s hebt gezien? Wacht dan niet langer en plan snel een bezichtiging in bij van IJsendijkstraat 231 in Purmerend. Ben je nog niet uitgekeken? Vergeet dan niet ook de woningvideo die Mariska hier heeft opgenomen nog even te bekijken en droom alvast lekker van al het moois dat jij hier gaat realiseren.