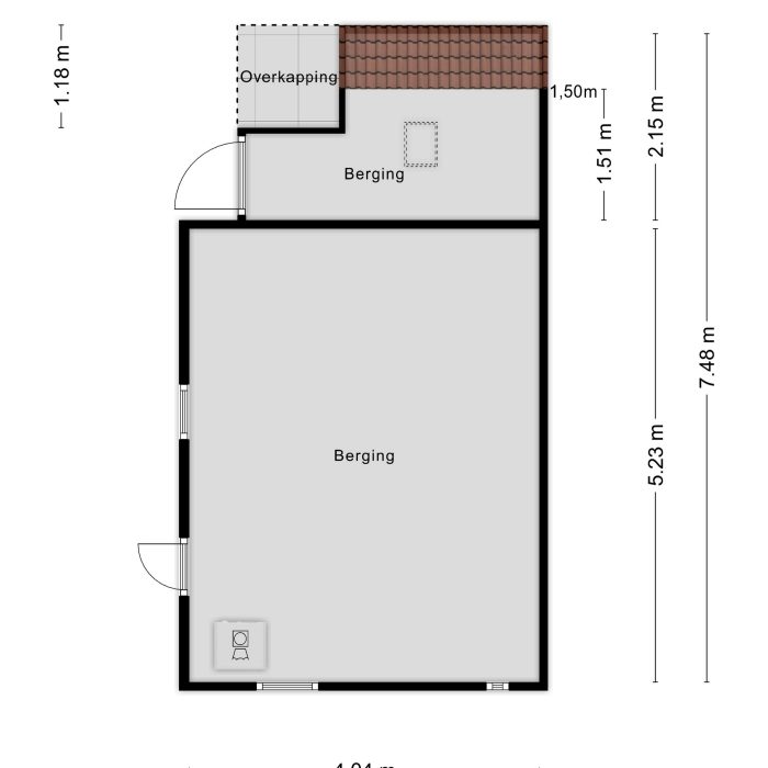
Vrijstaand wonen met karakter ruimte en toekomstmogelijkheden Dit zijn van die woningen die je niet vaak tegenkomt. Vrijstaand, vol karakter en met precies die sfeer die je zoekt als je iets bijzonders wilt. Een huis dat een prachtige basis biedt en tegelijkertijd alle ruimte geeft om het helemaal naar je eigen smaak verder te brengen. Deze charmante vrijstaande woning uit 1886 is zo’n huis. Een plek waar historie en mogelijkheden samenkomen. Waar je geniet van vrijheid, privacy en groen, maar toch dichtbij de levendigheid van Purmerend woont. Met een royaal perceel van 478 m², een vrijstaande ligging en een fijne tuin rondom voelt dit als een plek waar je echt thuis kunt komen. Buiten leven zoals het bedoeld is De diepe tuin rondom de woning zorgt ervoor dat je hier ieder moment van de dag een fijne plek kunt vinden. Een kop koffie in de ochtendzon, lange zomeravonden met vrienden of gewoon genieten van de rust en het groen om je heen. De voortuin biedt bovendien volop mogelijkheden. Niet alleen voor een mooie landelijke voortuin, maar ook voor het realiseren van meerdere parkeerplaatsen op eigen terrein. De vrije ligging en het volwassen groen zorgen voor een prettig gevoel van privacy dat je bij veel woningen tegenwoordig mist. Rustig wonen met alles dichtbij Zuid-oost Beemster is geliefd bij mensen die de combinatie zoeken tussen rust en bereikbaarheid. Hier woon je landelijk, met ruimte en groen om je heen, maar zonder concessies te doen aan voorzieningen. Binnen enkele minuten sta je in het centrum van Purmerend met winkels, horeca en supermarkten. Ook scholen, sportverenigingen en kinderopvang liggen dichtbij. De bushalte bevindt zich praktisch om de hoek en via de NS-stations bereik je eenvoudig Amsterdam en Zaandam. Met de auto zit je bovendien zo op de A7. De sfeer van toen met het comfort van nu De woning zelf heeft een warme en authentieke uitstraling. De karakteristieke gevel, de karakteristieke voordeur en het metselwerk geven het huis direct een eigen identiteit. Binnen valt vooral de hoogte van de woonkamer op. De plafonds van 2,87 meter in combinatie met de grote ramen zorgen voor een ruimtelijk en licht gevoel. De keuken staat in open verbinding met de woonkamer, waardoor een fijne leefruimte is ontstaan. Via de openslaande deuren loopt het binnenleven hier moeiteloos over in het buitenleven. Wat deze woning extra interessant maakt is dat er nog volop mogelijkheden zijn om verder te optimaliseren of uit te breiden. Je koopt hier niet alleen een huis zoals het nu is, maar ook de potentie die erin zit. De indeling Via de entree kom je binnen in de hal met trapopgang naar de eerste verdieping. Vanuit hier bereik je de woonkamer en de open keuken. De begane grond beschikt daarnaast over een moderne badkamer met douche, wastafelmeubel en toilet. Op de eerste verdieping bevinden zich twee slaapkamers, waarbij de grootste kamer beschikt over een dakkapel voor extra ruimte en licht. Ook vind je hier een tweede badkamer met ligbad, wastafel en toilet. Verder zijn er een wasruimte, een inloopkast en praktische bergruimtes aanwezig. Een huis voor nu én later Dit is een woning voor mensen die charme kunnen waarderen en mogelijkheden zien. Voor kopers die niet alleen kijken naar vierkante meters, maar ook naar sfeer, ligging en potentie. Een vrijstaand huis met karakter, ruimte en een verhaal klaar voor een nieuwe eigenaar die er zijn of haar eigen hoofdstuk aan toevoegt. Bijzonderheden • Vrijstaande woning uit 1886 • Naast het centrum van Purmerend • Perceel van 478 m² • Circa 102 m² woonoppervlakte • Twee badkamers • Hoge plafonds in de woonkamer (2,87 m) • Veel authentieke details • Diepe tuin met veel privacy • Goede bereikbaarheid richting Amsterdam Nieuwsgierig geworden? Neem contact op met HR Home voor een bezichtiging. We laten je deze woning graag persoonlijk ervaren.

Kom in contact met Richard Herlé-Ruys
Status
Beschikbaar
Vraagprijs
€ 700.000,-
Woonoppervlakte
102 m2
Perceeloppervlakte
395 m2
Externe bergruimte
478 m2
Gebouwgebonden buitenruimte
26 m2
Overige inpandige ruimte
0 m2
Inhoud
362 m3
Aantal kamers
3
Aantal slaapkamers
2
Vraagprijs: € 700.000,-
2 slaapkamers
Energielabel E
102 m2 woonoppervlak
395 m2 perceeloppervlak

Kom in contact met Richard Herlé-Ruys
[toon_buurt_intro]
Lorem ipsum dolor sit amet, consetetur sadipscing elitr, sed diam nonumy eirmod tempor invidunt ut labore et dolore magna aliquyam erat, sed diam voluptua. At vero eos et accusam et justo duo dolores et ea rebum. Stet clita kasd gubergren, no sea takimata sanctus est Lorem ipsum dolor sit amet. Lorem ipsum































































Vrijstaand wonen met karakter ruimte en toekomstmogelijkheden Dit zijn van die woningen die je niet vaak tegenkomt. Vrijstaand, vol karakter en met precies die sfeer die je zoekt als je iets bijzonders wilt. Een huis dat een prachtige basis biedt en tegelijkertijd alle ruimte geeft om het helemaal naar je eigen smaak verder te brengen. Deze charmante vrijstaande woning uit 1886 is zo’n huis. Een plek waar historie en mogelijkheden samenkomen. Waar je geniet van vrijheid, privacy en groen, maar toch dichtbij de levendigheid van Purmerend woont. Met een royaal perceel van 478 m², een vrijstaande ligging en een fijne tuin rondom voelt dit als een plek waar je echt thuis kunt komen. Buiten leven zoals het bedoeld is De diepe tuin rondom de woning zorgt ervoor dat je hier ieder moment van de dag een fijne plek kunt vinden. Een kop koffie in de ochtendzon, lange zomeravonden met vrienden of gewoon genieten van de rust en het groen om je heen. De voortuin biedt bovendien volop mogelijkheden. Niet alleen voor een mooie landelijke voortuin, maar ook voor het realiseren van meerdere parkeerplaatsen op eigen terrein. De vrije ligging en het volwassen groen zorgen voor een prettig gevoel van privacy dat je bij veel woningen tegenwoordig mist. Rustig wonen met alles dichtbij Zuid-oost Beemster is geliefd bij mensen die de combinatie zoeken tussen rust en bereikbaarheid. Hier woon je landelijk, met ruimte en groen om je heen, maar zonder concessies te doen aan voorzieningen. Binnen enkele minuten sta je in het centrum van Purmerend met winkels, horeca en supermarkten. Ook scholen, sportverenigingen en kinderopvang liggen dichtbij. De bushalte bevindt zich praktisch om de hoek en via de NS-stations bereik je eenvoudig Amsterdam en Zaandam. Met de auto zit je bovendien zo op de A7. De sfeer van toen met het comfort van nu De woning zelf heeft een warme en authentieke uitstraling. De karakteristieke gevel, de karakteristieke voordeur en het metselwerk geven het huis direct een eigen identiteit. Binnen valt vooral de hoogte van de woonkamer op. De plafonds van 2,87 meter in combinatie met de grote ramen zorgen voor een ruimtelijk en licht gevoel. De keuken staat in open verbinding met de woonkamer, waardoor een fijne leefruimte is ontstaan. Via de openslaande deuren loopt het binnenleven hier moeiteloos over in het buitenleven. Wat deze woning extra interessant maakt is dat er nog volop mogelijkheden zijn om verder te optimaliseren of uit te breiden. Je koopt hier niet alleen een huis zoals het nu is, maar ook de potentie die erin zit. De indeling Via de entree kom je binnen in de hal met trapopgang naar de eerste verdieping. Vanuit hier bereik je de woonkamer en de open keuken. De begane grond beschikt daarnaast over een moderne badkamer met douche, wastafelmeubel en toilet. Op de eerste verdieping bevinden zich twee slaapkamers, waarbij de grootste kamer beschikt over een dakkapel voor extra ruimte en licht. Ook vind je hier een tweede badkamer met ligbad, wastafel en toilet. Verder zijn er een wasruimte, een inloopkast en praktische bergruimtes aanwezig. Een huis voor nu én later Dit is een woning voor mensen die charme kunnen waarderen en mogelijkheden zien. Voor kopers die niet alleen kijken naar vierkante meters, maar ook naar sfeer, ligging en potentie. Een vrijstaand huis met karakter, ruimte en een verhaal klaar voor een nieuwe eigenaar die er zijn of haar eigen hoofdstuk aan toevoegt. Bijzonderheden • Vrijstaande woning uit 1886 • Naast het centrum van Purmerend • Perceel van 478 m² • Circa 102 m² woonoppervlakte • Twee badkamers • Hoge plafonds in de woonkamer (2,87 m) • Veel authentieke details • Diepe tuin met veel privacy • Goede bereikbaarheid richting Amsterdam Nieuwsgierig geworden? Neem contact op met HR Home voor een bezichtiging. We laten je deze woning graag persoonlijk ervaren.
Vrijstaand wonen met karakter ruimte en toekomstmogelijkheden Dit zijn van die woningen die je niet vaak tegenkomt. Vrijstaand, vol karakter en met precies die sfeer die je zoekt als je iets bijzonders wilt. Een huis dat een prachtige basis biedt en tegelijkertijd alle ruimte geeft om het helemaal naar je eigen smaak verder te brengen. Deze charmante vrijstaande woning uit 1886 is zo’n huis. Een plek waar historie en mogelijkheden samenkomen. Waar je geniet van vrijheid, privacy en groen, maar toch dichtbij de levendigheid van Purmerend woont. Met een royaal perceel van 478 m², een vrijstaande ligging en een fijne tuin rondom voelt dit als een plek waar je echt thuis kunt komen. Buiten leven zoals het bedoeld is De diepe tuin rondom de woning zorgt ervoor dat je hier ieder moment van de dag een fijne plek kunt vinden. Een kop koffie in de ochtendzon, lange zomeravonden met vrienden of gewoon genieten van de rust en het groen om je heen. De voortuin biedt bovendien volop mogelijkheden. Niet alleen voor een mooie landelijke voortuin, maar ook voor het realiseren van meerdere parkeerplaatsen op eigen terrein. De vrije ligging en het volwassen groen zorgen voor een prettig gevoel van privacy dat je bij veel woningen tegenwoordig mist. Rustig wonen met alles dichtbij Zuid-oost Beemster is geliefd bij mensen die de combinatie zoeken tussen rust en bereikbaarheid. Hier woon je landelijk, met ruimte en groen om je heen, maar zonder concessies te doen aan voorzieningen. Binnen enkele minuten sta je in het centrum van Purmerend met winkels, horeca en supermarkten. Ook scholen, sportverenigingen en kinderopvang liggen dichtbij. De bushalte bevindt zich praktisch om de hoek en via de NS-stations bereik je eenvoudig Amsterdam en Zaandam. Met de auto zit je bovendien zo op de A7. De sfeer van toen met het comfort van nu De woning zelf heeft een warme en authentieke uitstraling. De karakteristieke gevel, de karakteristieke voordeur en het metselwerk geven het huis direct een eigen identiteit. Binnen valt vooral de hoogte van de woonkamer op. De plafonds van 2,87 meter in combinatie met de grote ramen zorgen voor een ruimtelijk en licht gevoel. De keuken staat in open verbinding met de woonkamer, waardoor een fijne leefruimte is ontstaan. Via de openslaande deuren loopt het binnenleven hier moeiteloos over in het buitenleven. Wat deze woning extra interessant maakt is dat er nog volop mogelijkheden zijn om verder te optimaliseren of uit te breiden. Je koopt hier niet alleen een huis zoals het nu is, maar ook de potentie die erin zit. De indeling Via de entree kom je binnen in de hal met trapopgang naar de eerste verdieping. Vanuit hier bereik je de woonkamer en de open keuken. De begane grond beschikt daarnaast over een moderne badkamer met douche, wastafelmeubel en toilet. Op de eerste verdieping bevinden zich twee slaapkamers, waarbij de grootste kamer beschikt over een dakkapel voor extra ruimte en licht. Ook vind je hier een tweede badkamer met ligbad, wastafel en toilet. Verder zijn er een wasruimte, een inloopkast en praktische bergruimtes aanwezig. Een huis voor nu én later Dit is een woning voor mensen die charme kunnen waarderen en mogelijkheden zien. Voor kopers die niet alleen kijken naar vierkante meters, maar ook naar sfeer, ligging en potentie. Een vrijstaand huis met karakter, ruimte en een verhaal klaar voor een nieuwe eigenaar die er zijn of haar eigen hoofdstuk aan toevoegt. Bijzonderheden • Vrijstaande woning uit 1886 • Naast het centrum van Purmerend • Perceel van 478 m² • Circa 102 m² woonoppervlakte • Twee badkamers • Hoge plafonds in de woonkamer (2,87 m) • Veel authentieke details • Diepe tuin met veel privacy • Goede bereikbaarheid richting Amsterdam Nieuwsgierig geworden? Neem contact op met HR Home voor een bezichtiging. We laten je deze woning graag persoonlijk ervaren.